ALLURE Apartments in Calpe: Elegance, Comfort and Sea Views
size
117 m²
Bedrooms
3
Bathrooms
2
terrace
25 m²
price
698,000 €
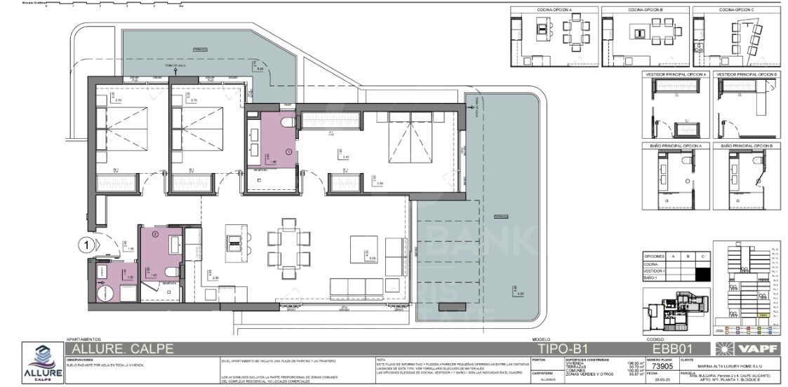
The ALLURE apartments in Calpe offer a modern and functional design, with three bedrooms and two bathrooms, ideal for enjoying the comfort and tranquillity of the Costa Blanca. According to the TYPE-B1 model plan, the distribution is as follows:
Main entrance located at the bottom left of the map.
First bathroom, equipped with sink, toilet and shower, located on the left as you enter.
First bedroom, with two single beds and built-in wardrobe.
Second bedroom, also with two single beds and built-in wardrobe, located next to the first.
Second bathroom, with sink, toilet and bathtub, located between the second and third bedrooms.
Third bedroom, the main one, with a double bed and built-in wardrobe.
Kitchen, located in the centre of the flat, with direct access from the living-dining room.
Spacious and bright living-dining room, located on the right side of the flat, with access to an outdoor terrace.
Outdoor terrace, which surrounds the flat in an L shape, providing additional outdoor space.
In addition, the ALLURE apartments stand out for their innovative and sustainable design, surrounded by more than 3,500 m² of green areas and exclusive community services, such as a heated swimming pool, gym, sauna and relaxation areas2. Its privileged location in Calpe allows you to enjoy views of the sea and the Natural Park of Las Salinas.
#ref:CBS496
Main entrance located at the bottom left of the map.
First bathroom, equipped with sink, toilet and shower, located on the left as you enter.
First bedroom, with two single beds and built-in wardrobe.
Second bedroom, also with two single beds and built-in wardrobe, located next to the first.
Second bathroom, with sink, toilet and bathtub, located between the second and third bedrooms.
Third bedroom, the main one, with a double bed and built-in wardrobe.
Kitchen, located in the centre of the flat, with direct access from the living-dining room.
Spacious and bright living-dining room, located on the right side of the flat, with access to an outdoor terrace.
Outdoor terrace, which surrounds the flat in an L shape, providing additional outdoor space.
In addition, the ALLURE apartments stand out for their innovative and sustainable design, surrounded by more than 3,500 m² of green areas and exclusive community services, such as a heated swimming pool, gym, sauna and relaxation areas2. Its privileged location in Calpe allows you to enjoy views of the sea and the Natural Park of Las Salinas.
#ref:CBS496
Property details
zone
Costa Blanca
area
Alicante
location
Calpe / Calp
district
Zona Levante - Playa Fossa
Property type
flat
sale
698.000 €
Reference
CBS496
Bedrooms
3
Bathrooms
2
Surface
89 m2
Builded surface
117 m2
Property features
gym
terrace
Energy certificate
-
A
92-100 -
B
81-91 -
C
69-80 -
D
55-68 -
E
39-54 -
F
21-38 -
G
1-20
About Calpe / Calp
Calpe, located on the coast of the province of Alicante, in the Valencian Community of Spain, is a charming tourist destination known for its stunning coastal landscape, iconic Ifach rock, and relaxed Mediterranean atmosphere.
The town of Calpe offers its residents and visitors a unique combination of historical charm and modernity. With its picturesque old town and cobbled streets, as well as modern amenities and services, Calpe is a place where tradition and contemporary life meet.


























