Apartamentos ALLURE en Calpe: Elegancia, Confort y Vistas al Mar, Torre B - Apartamento 1, Planta 1
tamaño
117 m²
Habitaciones
3
Baños
2
terraza
25 m²
precio
698.000 €
Los apartamentos ALLURE en Calpe ofrecen un diseño moderno y funcional, con tres habitaciones y dos baños, ideales para disfrutar del confort y la tranquilidad de la Costa Blanca. Se trata de un edificio de nueva planta, que incluye pisos, áticos y dúplex con 2 y 3 habitaciones, adaptándose a distintas necesidades y estilos de vida.
PRECIOS DISPONIBLES: Los apartamentos tienen un rango de precios que oscila entre 587.000€, 605.000€, 740.000€, 960.000€ y 1.672.000€, dependiendo del tipo de vivienda y sus características.
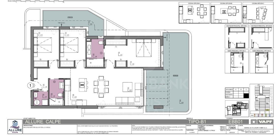
Ubicación: PLANTA 1
Según el plano, la distribución es la siguiente:
Entrada principal ubicada en la parte inferior izquierda del plano.
Primer baño, equipado con lavabo, inodoro y ducha, situado a la izquierda al entrar.
Primera y segunda habitación, ambas con armarios empotrados y espacio para dos camas individuales.
Baño principal, con lavabo, inodoro y bañera, ubicado entre las habitaciones secundarias y la habitación principal.
Habitación principal, más amplia, con cama doble y armario empotrado.
Cocina, en el centro del apartamento, con acceso directo desde el salón-comedor.
Salón-comedor, espacioso y luminoso, con acceso a una terraza exterior de 24,50 m², en forma de L.
Caseta de ventas a pie de obra, donde se pueden obtener detalles y asesoramiento sobre las viviendas disponibles.
Además, los apartamentos ALLURE destacan por su diseño innovador y sostenible, rodeados de más de 3.500 m² de áreas verdes y servicios comunitarios exclusivos, como piscina climatizada, gimnasio, sauna y zonas de relax. Su ubicación privilegiada en Calpe permite disfrutar de vistas al mar y al Parque Natural de las Salinas. Cada vivienda cuenta con calefacción individual mediante bomba de frío/calor, garantizando confort en cualquier estación del año.
#ref:CBS496
PRECIOS DISPONIBLES: Los apartamentos tienen un rango de precios que oscila entre 587.000€, 605.000€, 740.000€, 960.000€ y 1.672.000€, dependiendo del tipo de vivienda y sus características.
Ubicación: PLANTA 1
Según el plano, la distribución es la siguiente:
Entrada principal ubicada en la parte inferior izquierda del plano.
Primer baño, equipado con lavabo, inodoro y ducha, situado a la izquierda al entrar.
Primera y segunda habitación, ambas con armarios empotrados y espacio para dos camas individuales.
Baño principal, con lavabo, inodoro y bañera, ubicado entre las habitaciones secundarias y la habitación principal.
Habitación principal, más amplia, con cama doble y armario empotrado.
Cocina, en el centro del apartamento, con acceso directo desde el salón-comedor.
Salón-comedor, espacioso y luminoso, con acceso a una terraza exterior de 24,50 m², en forma de L.
Caseta de ventas a pie de obra, donde se pueden obtener detalles y asesoramiento sobre las viviendas disponibles.
Además, los apartamentos ALLURE destacan por su diseño innovador y sostenible, rodeados de más de 3.500 m² de áreas verdes y servicios comunitarios exclusivos, como piscina climatizada, gimnasio, sauna y zonas de relax. Su ubicación privilegiada en Calpe permite disfrutar de vistas al mar y al Parque Natural de las Salinas. Cada vivienda cuenta con calefacción individual mediante bomba de frío/calor, garantizando confort en cualquier estación del año.
#ref:CBS496
Detalles de la propiedad
zona
Costa Blanca
área
Alicante
localización
Calpe / Calp
distrito
Zona Levante - Playa Fossa
Tipo de inmueble
piso
venta
698.000 €
Referencia
CBS496
Habitaciones
3
Baños
2
Superficie
89 m2
Superficie construida
117 m2
Características de la propiedad
gimnasio
terraza
Certificación energética
-
A
92-100 -
B
81-91 -
C
69-80 -
D
55-68 -
E
39-54 -
F
21-38 -
G
1-20
Acerca de Calpe / Calp
Calpe, situado en la costa de la provincia de Alicante, en la Comunidad Valenciana de España, es un encantador destino turístico conocido por su impresionante paisaje costero, su emblemático peñón de Ifach y su ambiente mediterráneo relajado.
La ciudad de Calpe ofrece a sus residentes y visitantes una combinación única de encanto histórico y modernidad. Con su casco antiguo pintoresco y calles empedradas, así como modernas comodidades y servicios, Calpe es un lugar donde lo tradicional y lo contemporáneo se encuentran.















