Appartements ALLURE à Calpe : élégance, confort et vue sur la mer
taille
117 m²
Chambres
3
Salles de bain
2
terrasse
25 m²
prix
698.000 €
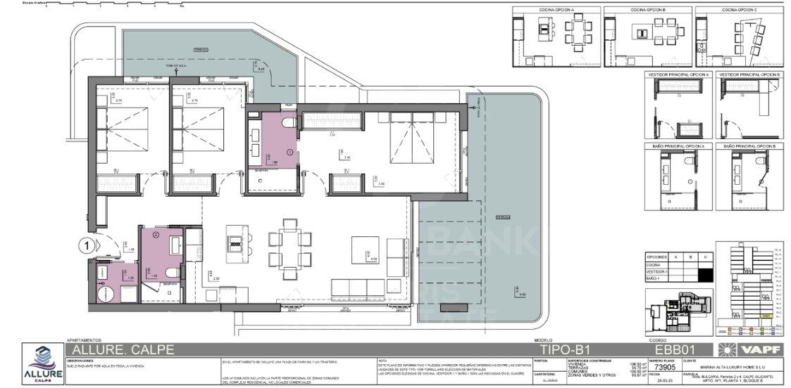
Les appartements ALLURE à Calpe offrent un design moderne et fonctionnel, avec trois chambres et deux salles de bains, idéales pour profiter du confort et de la tranquillité de la Costa Blanca. Selon le plan modèle TYPE-B1, la répartition est la suivante :
L'entrée principale située en bas à gauche de la carte.
Première salle de bain, équipée d'un lavabo, de toilettes et d'une douche, située sur la gauche en entrant.
Première chambre, avec deux lits simples et armoire intégrée.
Deuxième chambre, également avec deux lits simples et une armoire intégrée, située à côté de la première.
Deuxième salle de bain, avec lavabo, toilettes et baignoire, située entre la deuxième et la troisième chambre.
Troisième chambre, la principale, avec un lit double et une armoire intégrée.
Cuisine, située au centre de l'appartement, avec accès direct depuis le salon-salle à manger.
Salon-salle à manger spacieux et lumineux, situé sur le côté droit de l'appartement, avec accès à une terrasse extérieure.
Terrasse extérieure, qui entoure l'appartement en forme de L, offrant un espace extérieur supplémentaire.
De plus, les appartements ALLURE se distinguent par leur design innovant et durable, entourés de plus de 3 500 m² d'espaces verts et de services communautaires exclusifs, tels qu'une piscine chauffée, une salle de sport, un sauna et des espaces de détente2. Son emplacement privilégié à Calpe vous permet de profiter d'une vue sur la mer et le parc naturel de Las Salinas.
#ref:CBS496
L'entrée principale située en bas à gauche de la carte.
Première salle de bain, équipée d'un lavabo, de toilettes et d'une douche, située sur la gauche en entrant.
Première chambre, avec deux lits simples et armoire intégrée.
Deuxième chambre, également avec deux lits simples et une armoire intégrée, située à côté de la première.
Deuxième salle de bain, avec lavabo, toilettes et baignoire, située entre la deuxième et la troisième chambre.
Troisième chambre, la principale, avec un lit double et une armoire intégrée.
Cuisine, située au centre de l'appartement, avec accès direct depuis le salon-salle à manger.
Salon-salle à manger spacieux et lumineux, situé sur le côté droit de l'appartement, avec accès à une terrasse extérieure.
Terrasse extérieure, qui entoure l'appartement en forme de L, offrant un espace extérieur supplémentaire.
De plus, les appartements ALLURE se distinguent par leur design innovant et durable, entourés de plus de 3 500 m² d'espaces verts et de services communautaires exclusifs, tels qu'une piscine chauffée, une salle de sport, un sauna et des espaces de détente2. Son emplacement privilégié à Calpe vous permet de profiter d'une vue sur la mer et le parc naturel de Las Salinas.
#ref:CBS496
Détails de la propriété
région
Costa Blanca
zone
Alicante
localité
Calpe / Calp
district
Zona Levante - Playa Fossa
Type de propriété
appartement
vente
698.000 €
Référence
CBS496
Chambres
3
Salles de bain
2
Surface
89 m2
Surface construite
117 m2
Caractéristiques de l'établissement
salle de sport
terrasse
Certificat énergétique
-
A
92-100 -
B
81-91 -
C
69-80 -
D
55-68 -
E
39-54 -
F
21-38 -
G
1-20
à propos de Calpe / Calp
Calpe, située sur la côte de la province d'Alicante, dans la Communauté valencienne en Espagne, est une charmante destination touristique réputée pour son paysage côtier magnifique, son rocher emblématique d'Ifach et son atmosphère méditerranéenne décontractée.
La ville de Calpe offre à ses résidents et visiteurs une combinaison unique de charme historique et de modernité. Avec son vieux centre pittoresque et ses rues pavées, ainsi que des commodités et services modernes, Calpe est un lieu où tradition et vie contemporaine se rencontrent.







