Villa with sea views in Canyelles with structural works fully completed
The house will be delivered with the shell completely finished, including drainage and perimeter waterproofing. The buyer can carry out the finishing work with the contractors of his choice, or with the current builder. The cost of finishing the house, including the elevator and a top-of-the-range finish, is approximately €350,000.
It's important to note that she has developer's insurance and that taxes for the necessary connections have been paid. Installation of water and electricity meters and connection to the regulated sewage system are also included.
Just a 10-minute walk from Canyelles Petites beach, restaurants and local shops, you can enjoy the villa of your dreams, custom-designed to make the most of your home.
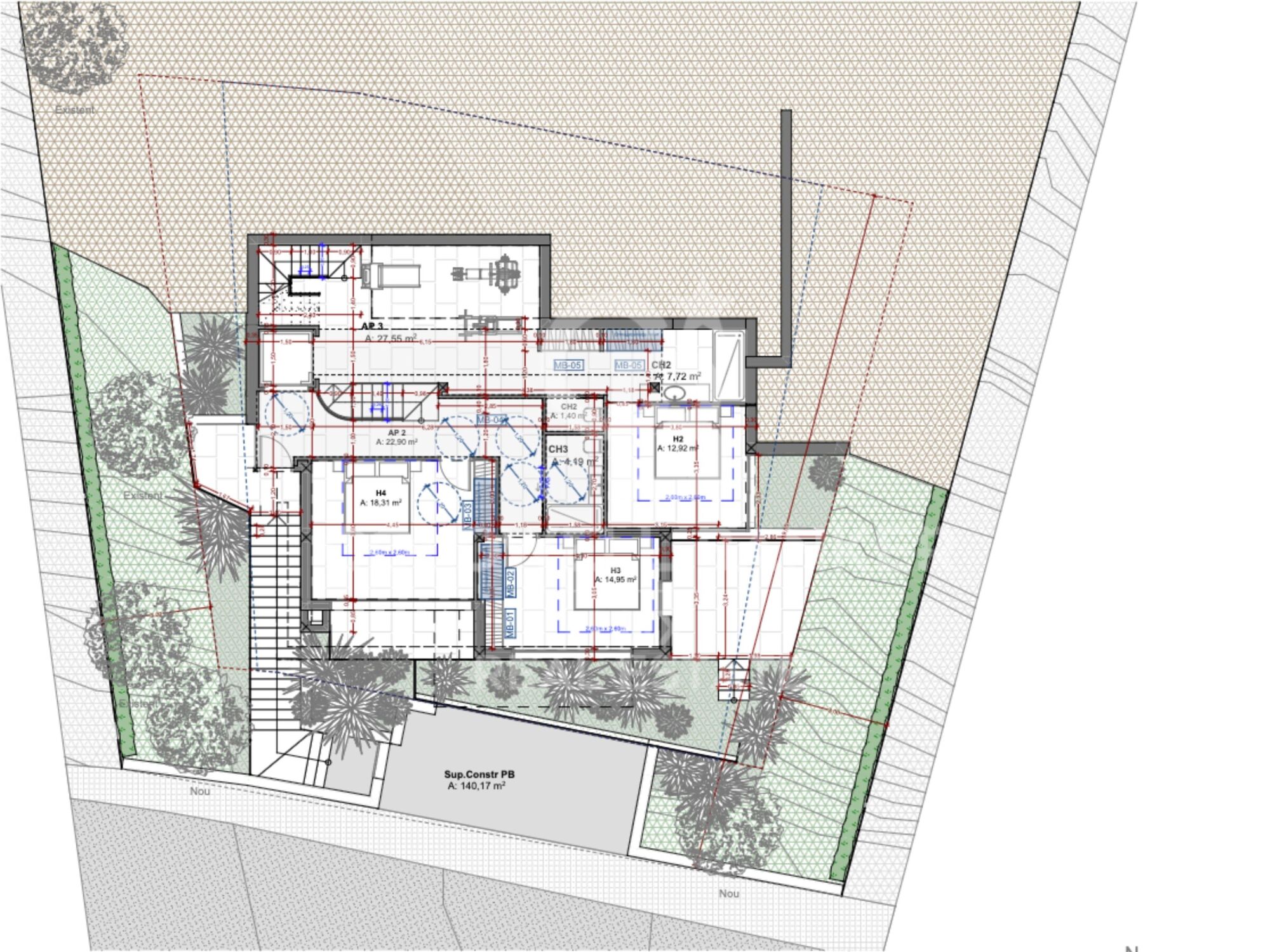
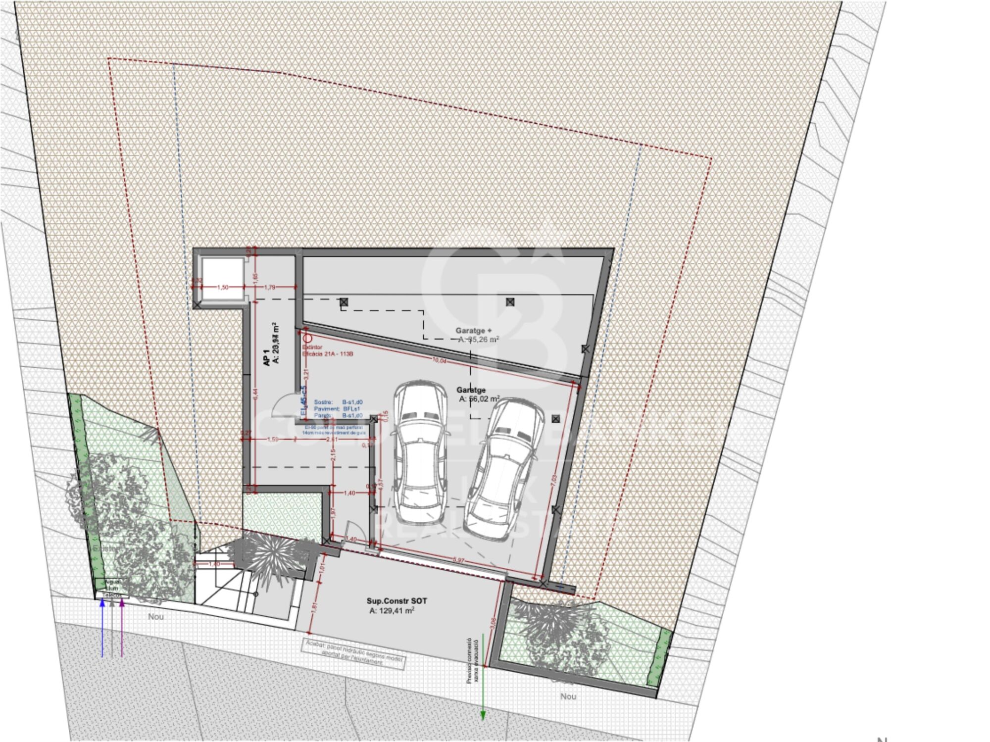
Set on a 918 m² plot, the plot with construction of the villa underway boasts 344 m² of living space, plus terraces.
The property offers incredible views of the sea and Canyelles beach, and with a southern exposure, you'll be able to enjoy the sun all day long.
We look forward to welcoming you to your luxury sea-view home on the Costa Brava.
#ref:CBLX02920
Property details
Property features
- Pending
About Roses
Located on the Spanish Costa Brava, the city of Roses benefits from a privileged location on the shores of the Mediterranean Sea. Nestled in a spectacular bay surrounded by green hills, the geography of Roses is picturesque and diverse. The city itself is built on gently sloping terrain, offering panoramic views of the sea from many points.
The heart of Roses lies in its historic center, which still retains the charm of its medieval past. Its narrow, winding streets are filled with colorful buildings, shops, restaurants, and cafes. Strolling through its alleyways, you can discover a welcoming atmosphere.
Roses is also famous for its magnificent sandy beaches. The beaches stretch for several kilometers along the coast, offering visitors an ideal place to relax, swim, and enjoy a wide variety of water sports. Whether you want to sunbathe, go scuba diving, water skiing, or simply take a stroll along the shore, Roses' beaches have something for everyone.
In terms of construction, Roses has a combination of traditional architecture and more modern developments. The newer buildings are generally located outside the city center and offer residential complexes, hotels, and tourist facilities. The city has managed to preserve its identity while meeting the needs of visitors and residents, creating a harmonious balance between the past and the present.

























