Villa avec vue sur la mer à Canyelles avec gros oeuvre entièrement achevé
La maison sera livrée gros oeuvre totalement terminé ainsi que le drainage et l'étanchéité périphérique réalisés. L'acheteur pourra réaliser les travaux de second oeuvre avec les entrepreneurs de son choix ou avec le constructeur actuel. Le montant des travaux pour la finition de la maison en incluant l'ascenseur ainsi qu'une finition haut de gamme est approximativement de 350 000 €.
Il est important de noter qu'elle dispose d'une assurance promoteur et que les taxes pour les raccordements nécessaires sont payées. L'installation des compteurs d'eau, d'électricité et le raccordement au système d'égout réglementé sont également inclus.
À seulement 10 minutes à pied de la plage de Canyelles Petites, des restaurants et des commerces de la région, vous pourrez profiter de la villa de vos rêves, conçue sur mesure pour profiter pleinement de votre maison.
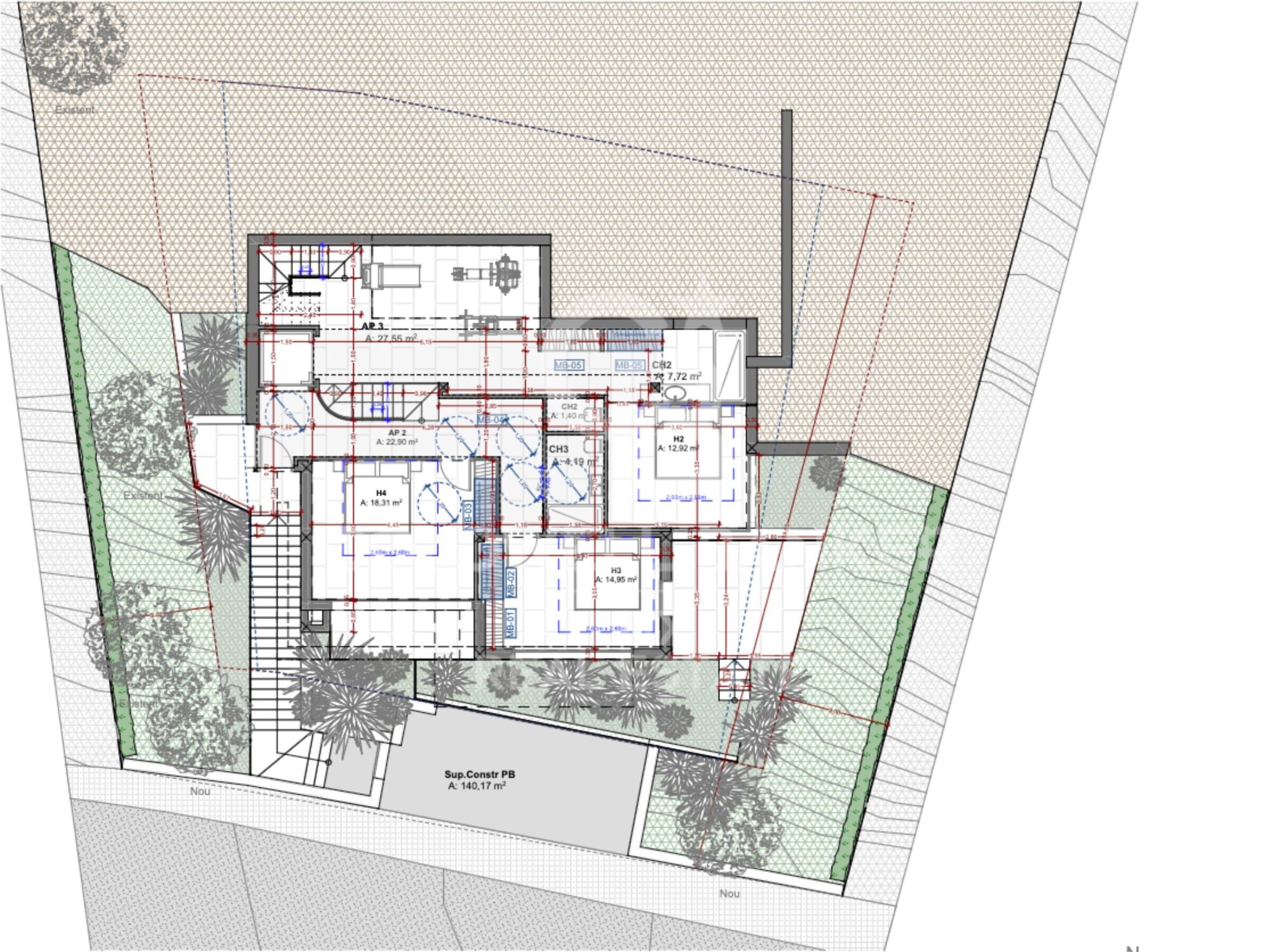
Sur un terrain de 918 m², la parcelle avec la construction de la villa commencée dispose d'une surface habitable de 344 m², en plus des terrasses.
La propriété offre des vues incroyables sur la mer et la plage de Canyelles, et avec une exposition sud, vous pourrez profiter du soleil toute la journée.
Nous vous attendons pour découvrir votre maison de luxe avec vue sur la mer sur la Costa Brava.
#ref:CBLX02920
Détails de la propriété
Caractéristiques de l'établissement
- En attente
à propos de Roses
Située sur la Costa Brava espagnole, la ville de Roses bénéficie d'un emplacement privilégié en bord de mer Méditerranée. Nichée dans une spectaculaire baie entourée de collines verdoyantes, la géographie de Roses est pittoresque et diversifiée. La ville elle-même est construite sur un terrain en pente douce, offrant des vues panoramiques sur la mer depuis de nombreux points.
Le cœur de Roses se trouve dans son centre historique, qui conserve encore le charme de son passé médiéval. Ses ruelles étroites et sinueuses sont remplies de bâtiments colorés, de boutiques, de restaurants et de cafés. En vous promenant dans ses ruelles, vous découvrirez une ambiance chaleureuse.
Roses est également réputée pour ses magnifiques plages de sable. Les plages s'étendent sur plusieurs kilomètres le long de la côte, offrant aux visiteurs un endroit idéal pour se détendre, nager et pratiquer une grande variété de sports nautiques. Que vous souhaitiez bronzer, faire de la plongée sous-marine, du ski nautique ou simplement vous promener sur le rivage, les plages de Roses ont quelque chose pour tous les goûts.
En termes d'architecture, Roses présente un mélange d'architecture traditionnelle et de développements plus modernes. Les bâtiments les plus récents se situent généralement en dehors du centre-ville et comprennent des complexes résidentiels, des hôtels et des installations touristiques. La ville a su préserver son identité tout en répondant aux besoins des visiteurs et des résidents, créant un équilibre harmonieux entre passé et présent.











































