Terraced house for sale on Carrer del Foc Follet, Bon Pastor, Sant Andreu
Why you'll love it:
Recently fully renovated, including updated electrical wiring, plumbing, heating and thermal insulation.
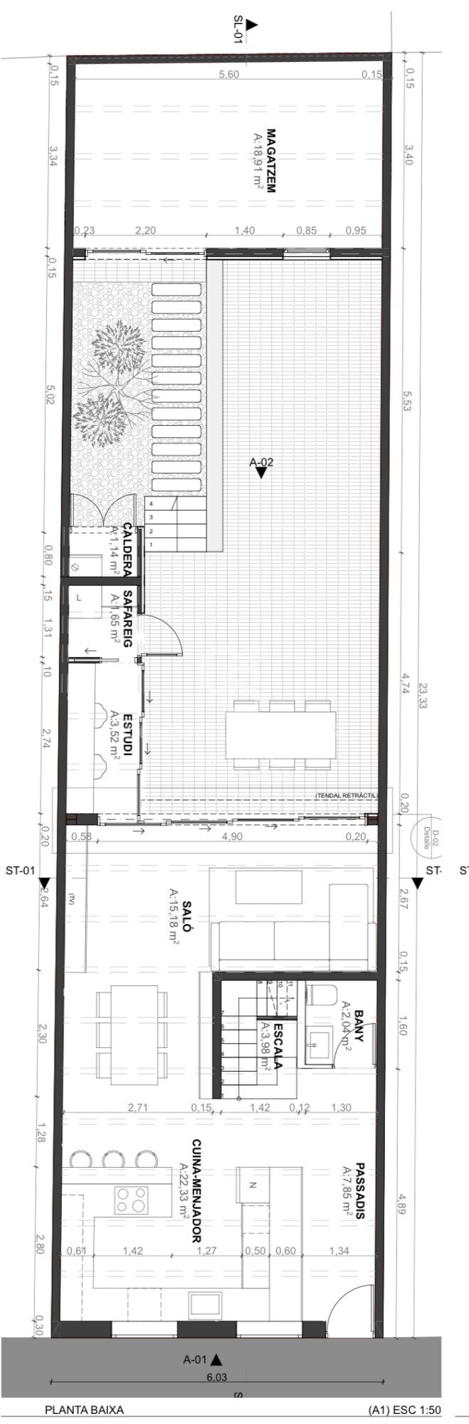
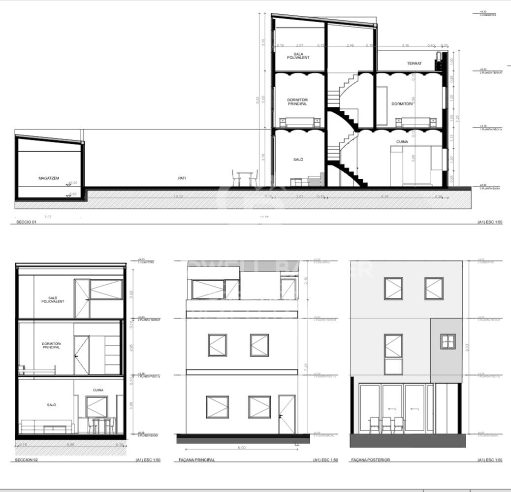
Spread across three spacious, comfortable and well-utilised floors.
Sunny 35m² terrace, perfect for outdoor dining, relaxing or setting up your own chill-out area.
Versatile room ideal as a home office, gym, games room or studio.
Large outdoor patio with laundry area and storage room, designed to make your everyday life easier.
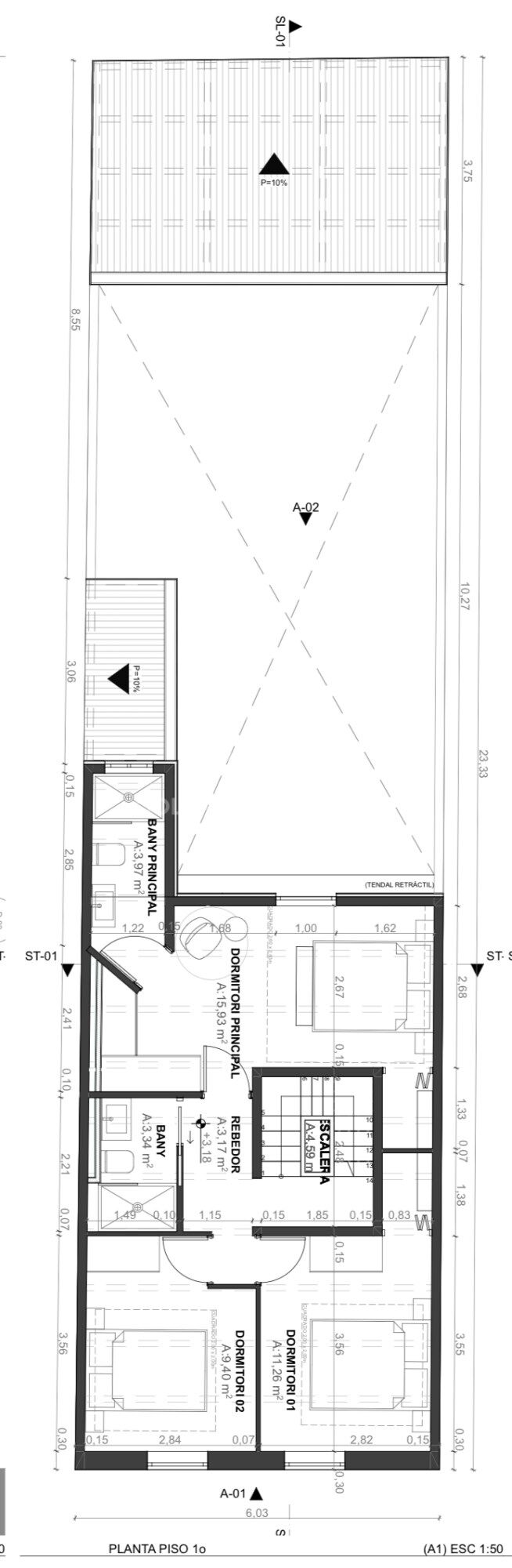
Master suite with walk-in closet and private bathroom, plus two bright double bedrooms.
Modern, fully equipped kitchen and open-concept living-dining area to enjoy with family and friends.
Prime location:
Situated in a quiet residential area of Bon Pastor, close to green spaces and with all services nearby.
Just minutes from metro lines L9, L10 and L2 (with future direct connection to the airport).
Supermarket 1 minute away, pharmacy 3', schools and library 5', and La Maquinista shopping centre just 12'. Public parking just steps away.
Highlight:
The property includes air rights, allowing the construction of an additional floor in accordance with current regulations.
The images in this listing are renders, showing final colours, materials and textures for walls and floors. The furniture is an example for decorative purposes.
Delivery is scheduled for August, so you can enjoy your new home before the summer ends.
#ref:CBES2663
Property details
Property features
- Pending
About Sant Andreu de Palomar
Sant Andreu de Palomar is the oldest part of the Sant Andreu district in Barcelona, preserving a charming village feel within the city. Its identity is shaped by local shops, pedestrian streets, plazas, and a strong sense of community.
Its location is advantageous: northeast Barcelona, with excellent public transport links via Metro L1, suburban trains, buses, and the upcoming La Sagrera intermodal station enhancing its connectivity.
The quality of life here is enriched by its lifestyle: a cozy, traditional urban fabric, green spaces like the Maquinista Park, vibrant associations, and plazas that foster family-friendly daily life.
Regarding the real estate market, Sant Andreu stands out as one of the most promising areas in Barcelona: prices rising steadily, healthy growth outlook, with a mix of new developments and traditional housing offering value compared to more central neighborhoods.














