Villa 6 Bedrooms Sale Moraira
plot
814 m²
Bedrooms
6
Bathrooms
5
price
2,175,000 €
Este encantador proyecto residencial ubicado en Benifairó representa una excelente oportunidad para quienes buscan una vivienda moderna, funcional y acogedora en un entorno tranquilo y natural. Se trata de una casa unifamiliar de dos plantas, diseñada con atención al detalle y una clara apuesta por la calidad de vida, el confort y el diseño contemporáneo.
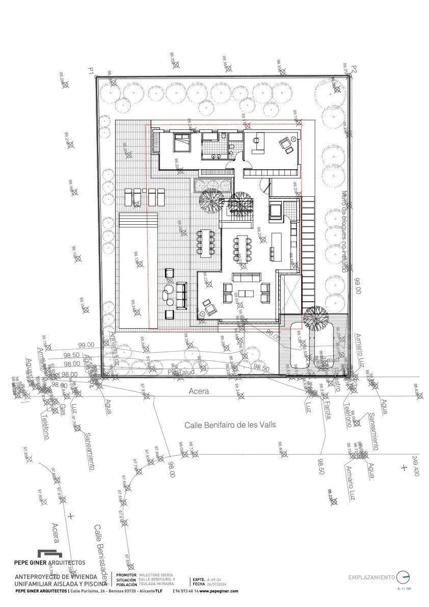
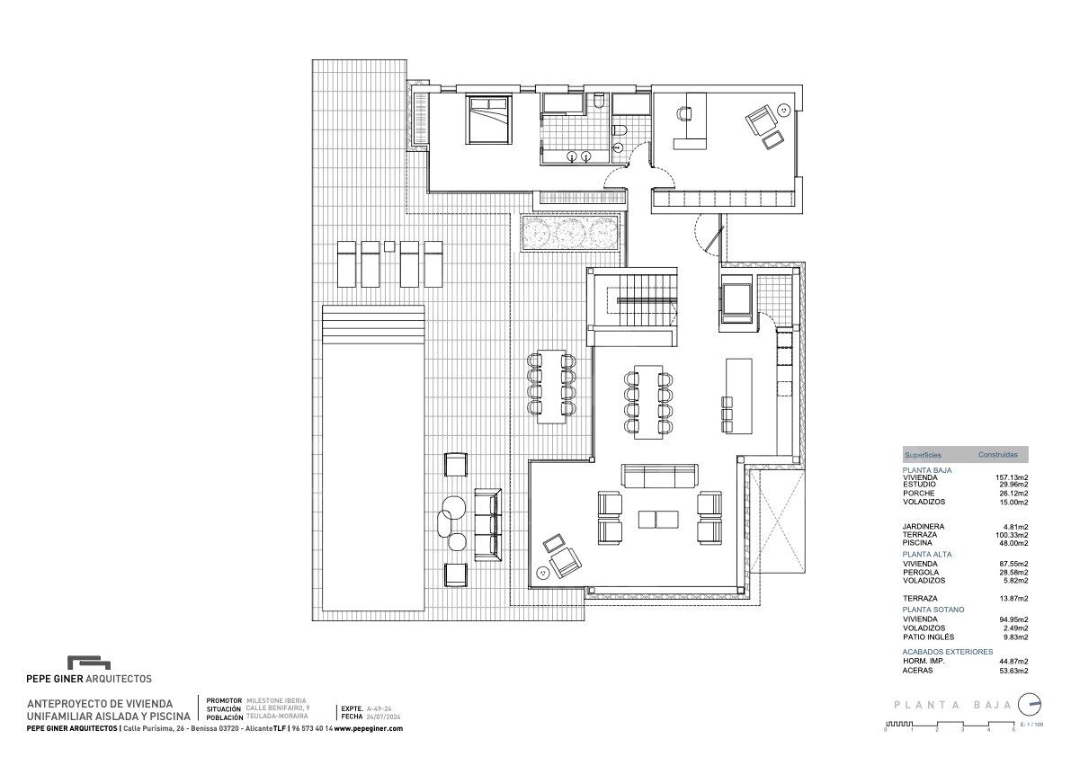
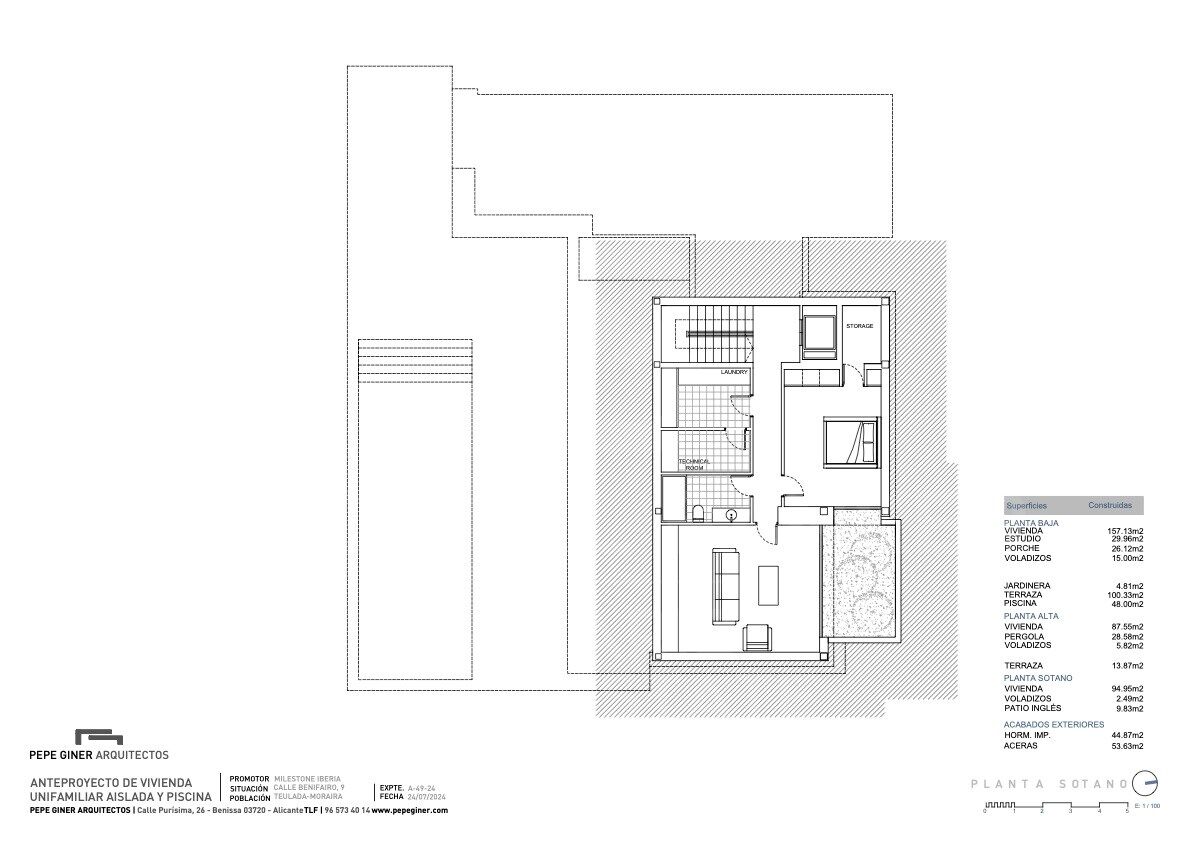
Con una superficie construida total de 395,71 m², la vivienda ha sido cuidadosamente distribuida para ofrecer estancias amplias, luminosas y bien conectadas. En la planta baja se encuentran las zonas comunes, concebidas como espacios abiertos y versátiles que fomentan la convivencia y el bienestar. Aquí se sitúan el salón, el comedor, una cocina moderna y funcional con acceso directo al exterior, así como una habitación que puede utilizarse como dormitorio de invitados, despacho o sala de estar adicional, según las necesidades del propietario.
La planta superior está destinada a la zona de descanso, con varios dormitorios que gozan de privacidad, luz natural y, en muchos casos, vistas privilegiadas al entorno. Los baños han sido diseñados con materiales de calidad y una estética actual, combinando funcionalidad y estilo. Además, se ha tenido en cuenta la eficiencia energética y el aprovechamiento de la orientación solar, lo que se traduce en una vivienda más sostenible y agradable durante todo el año.
El proyecto destaca no solo por su diseño arquitectónico armonioso, que combina líneas modernas con acabados cálidos y naturales, sino también por su ubicación en una zona residencial tranquila, ideal para quienes valoran la paz sin renunciar a la proximidad de servicios, naturaleza y buenas comunicaciones.
En definitiva, esta vivienda es mucho más que una casa: es un lugar pensado para disfrutar del día a día con comodidad, estilo y calidad. Una oportunidad ideal tanto como residencia habitual como segunda vivienda para desconectar del ritmo urbano. ¡Un hogar perfecto para vivir, disfrutar y crear nuevos recuerdos!
#ref:CBSJ687
Con una superficie construida total de 395,71 m², la vivienda ha sido cuidadosamente distribuida para ofrecer estancias amplias, luminosas y bien conectadas. En la planta baja se encuentran las zonas comunes, concebidas como espacios abiertos y versátiles que fomentan la convivencia y el bienestar. Aquí se sitúan el salón, el comedor, una cocina moderna y funcional con acceso directo al exterior, así como una habitación que puede utilizarse como dormitorio de invitados, despacho o sala de estar adicional, según las necesidades del propietario.
La planta superior está destinada a la zona de descanso, con varios dormitorios que gozan de privacidad, luz natural y, en muchos casos, vistas privilegiadas al entorno. Los baños han sido diseñados con materiales de calidad y una estética actual, combinando funcionalidad y estilo. Además, se ha tenido en cuenta la eficiencia energética y el aprovechamiento de la orientación solar, lo que se traduce en una vivienda más sostenible y agradable durante todo el año.
El proyecto destaca no solo por su diseño arquitectónico armonioso, que combina líneas modernas con acabados cálidos y naturales, sino también por su ubicación en una zona residencial tranquila, ideal para quienes valoran la paz sin renunciar a la proximidad de servicios, naturaleza y buenas comunicaciones.
En definitiva, esta vivienda es mucho más que una casa: es un lugar pensado para disfrutar del día a día con comodidad, estilo y calidad. Una oportunidad ideal tanto como residencia habitual como segunda vivienda para desconectar del ritmo urbano. ¡Un hogar perfecto para vivir, disfrutar y crear nuevos recuerdos!
#ref:CBSJ687
Property details
zone
Costa Blanca
area
Alicante
location
Moraira
district
Benimeit - Tabaira
Property type
house
sale
2.175.000 €
Reference
CBSJ687
Bedrooms
6
Bathrooms
5
Surface
395 m2
Energy certificate
- Pending
About Moraira
Moraira, located on the coast of Alicante, is a charming coastal town known for its natural beauty, crystal-clear beaches, and relaxed atmosphere. Situated in the Marina Alta region on the Costa Blanca, this tourist destination attracts visitors and residents alike with its Mediterranean climate, picturesque landscapes, and rich culinary offerings.
Life in Moraira offers a perfect blend of seaside serenity and the convenience of cosmopolitan living. Its cobbled streets and old town retain the charm of yesteryears, while modern facilities and services provide all the comforts necessary for contemporary living.

















