Exterior apartment to renovate with terrace in Bernabéu, Madrid
size
589 m²
parking
price
5,000,000 €
Coldwell Banker Unique presents this exclusive property located in the heart of Chamartín, in the sought-after Bernabéu area, on the emblematic Paseo de la Castellana, strategically positioned between Plaza de Lima and Nuevos Ministerios.
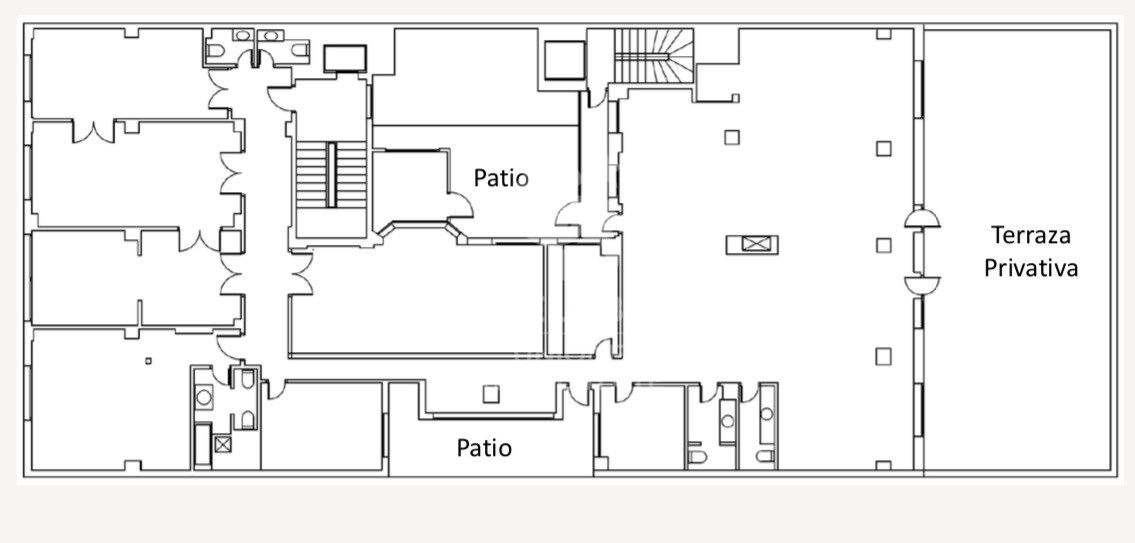
The property occupies the entire first floor of the building and offers a total surface area of 589 m², of which 450 m² correspond to residential space, 125 m² to a spectacular private terrace, and 14 m² to covered communal patios.
An exceptional configuration that combines generous interior space with valuable outdoor living in one of Madrid's most representative avenues.
A parking space and a storage room within the same building are included in the sale price, adding convenience and functionality to a property of this scale.
Currently, the property is presented as a true blank canvas, offering endless possibilities for redistribution and design. Its size and structure allow for the development of a fully customized project, tailored to the needs and lifestyle of the future owner, whether as a grand family residence, a representative home, or a combination of high-end private and social spaces.
The images shown are renders of a proposed renovation illustrating the potential of the space, while the floor plans reflect both the current layout and a possible redesign, clearly showcasing the scope and opportunities offered by this unique property.
#ref:CBUQ1307
The property occupies the entire first floor of the building and offers a total surface area of 589 m², of which 450 m² correspond to residential space, 125 m² to a spectacular private terrace, and 14 m² to covered communal patios.
An exceptional configuration that combines generous interior space with valuable outdoor living in one of Madrid's most representative avenues.
A parking space and a storage room within the same building are included in the sale price, adding convenience and functionality to a property of this scale.
Currently, the property is presented as a true blank canvas, offering endless possibilities for redistribution and design. Its size and structure allow for the development of a fully customized project, tailored to the needs and lifestyle of the future owner, whether as a grand family residence, a representative home, or a combination of high-end private and social spaces.
The images shown are renders of a proposed renovation illustrating the potential of the space, while the floor plans reflect both the current layout and a possible redesign, clearly showcasing the scope and opportunities offered by this unique property.
#ref:CBUQ1307
Property details
zone
Madrid provincia
area
Madrid ciudad
location
Madrid
district
Hispanoamérica - Bernabéu
Property type
flat
sale
5.000.000 €
Reference
CBUQ1307
Builded surface
589 m2
Condition / conservation
for renovation
Property features
storage
lift
parking
Energy certificate
- Pending
About Madrid
Madrid, the vibrant capital of Spain, is a city that pulsates with energy and cultural richness. From the iconic Puerta del Sol to the majestic Royal Palace, Madrid offers a blend of historic charm and modern vitality. With world-class museums like the Prado and vibrant neighborhoods such as Malasaña, the city captivates residents and visitors alike.






