Exterior apartment to be renovated with 11 balconies in Goya, Madrid
size
199 m²
price
3,100,000 €
Coldwell Banker Unique presents this magnificent property located on Calle Alcalá, in the very heart of the Goya neighborhood, one of Madrid's most iconic and sought-after areas.
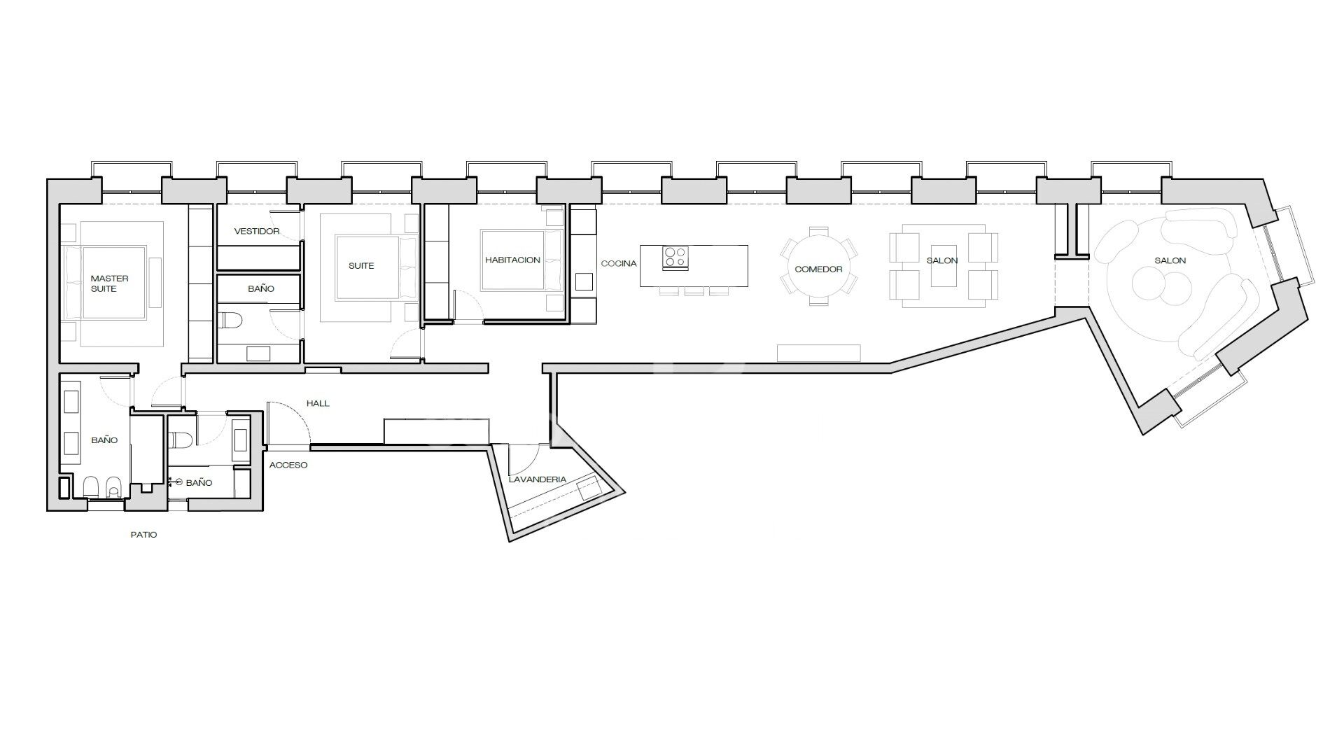
Situated on the fourth floor, the property enjoys extraordinary natural light thanks to its eleven street-facing balconies, which provide character and a truly unique presence.
With a surface area of 199 m², the property is currently in need of renovation and benefits from an approved refurbishment project, allowing the spaces to be adapted to a contemporary style without losing the charm of the original architecture.
This is an excellent opportunity both for those seeking a representative home in a prime location and for investors looking to enhance the value of a unique property in the Salamanca district.
#ref:CBUQ1215
Situated on the fourth floor, the property enjoys extraordinary natural light thanks to its eleven street-facing balconies, which provide character and a truly unique presence.
With a surface area of 199 m², the property is currently in need of renovation and benefits from an approved refurbishment project, allowing the spaces to be adapted to a contemporary style without losing the charm of the original architecture.
This is an excellent opportunity both for those seeking a representative home in a prime location and for investors looking to enhance the value of a unique property in the Salamanca district.
#ref:CBUQ1215
Property details
zone
Madrid provincia
area
Madrid ciudad
location
Madrid
district
Goya
Property type
flat
sale
3.100.000 €
Reference
CBUQ1215
Builded surface
199 m2
Condition / conservation
new
Property features
lift
balcony
Energy certificate
- Pending
About Goya
Discover Goya: An Emblematic Neighborhood in Madrid
Welcome to Goya, a historic and dynamic district in the heart of Madrid. Coldwell Banker invites you to explore this area that seamlessly combines classic elegance with modern conveniences, making it an ideal place to live and enjoy an exceptional lifestyle in the Spanish capital.
Advantages of Living in Goya:
Privileged Location: Goya stands out for its central location, providing residents with immediate access to Madrid's iconic landmarks. Surrounded by shops, cultural centers, and leisure areas, this neighborhood offers an unparalleled living experience.




























