Magnificent flat to be renovated in the best area of Castellana, in Madrid
size
241 m²
Bedrooms
4
Bathrooms
4
price
2,960,000 €
Exclusive property to renovate in the heart of Barrio de Salamanca - 241 sqm with endless design possibilities
Coldwell Banker Unique presents this magnificent residence located between the iconic streets of Serrano and Hermanos Bécquer, in one of the most distinguished areas of the Salamanca district, within the prestigious Castellana neighborhood. Situated next to El Viso and surrounded by exclusive hotels, restaurants, and high-end boutiques, this property offers a unique opportunity to invest or create your dream home.
Set in an elegant classical building, the property boasts 241 sqm according to the land registry, with three-meter-high ceilings and south-facing orientation, ensuring abundant natural light throughout the day. The absence of load-bearing walls provides total flexibility to redesign the layout according to your needs.
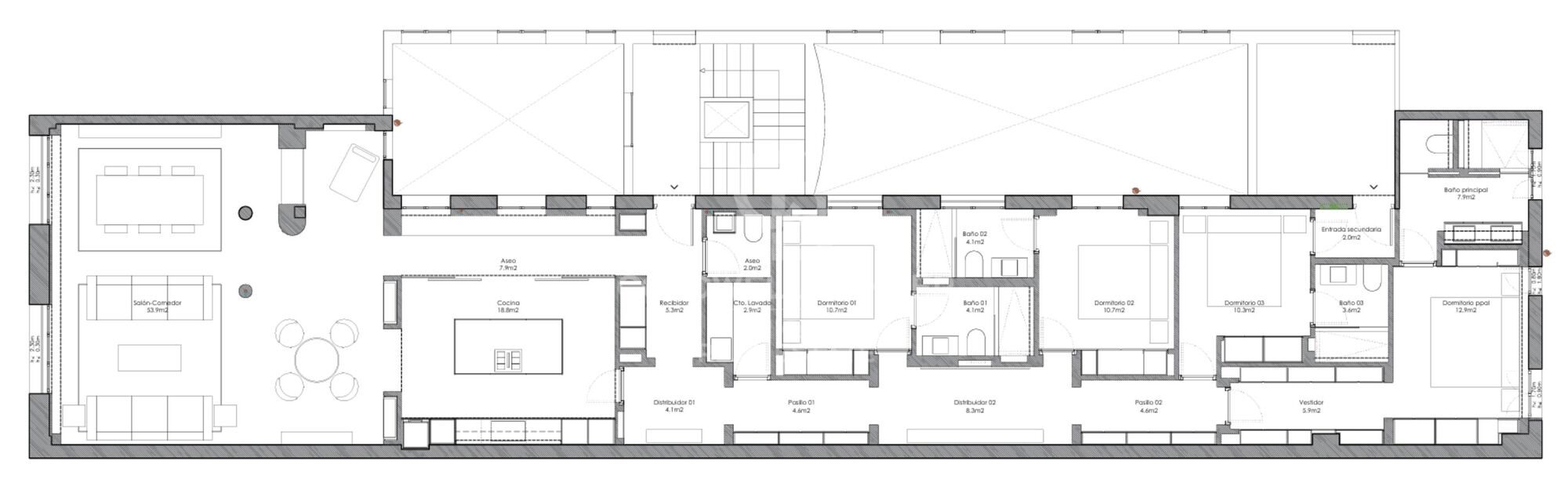
The renovation project, designed by SO Arquitectura, proposes a refined and functional distribution with three spacious double bedrooms, each with an en-suite bathroom, in addition to a service bedroom with its own bathroom. The social area is conceived as an open, bright, and welcoming space, perfect for everyday living and entertaining. The kitchen, thoughtfully designed, can be integrated with the living area or kept separate. The living-dining room includes a cozy reading corner for moments of relaxation.
The layout centers around a striking dome-lit hallway, adding character and sophistication. The master bedroom features a large walk-in closet and a bathroom with both shower and bathtub, while the secondary bedrooms share a spacious bathroom with separate shower and toilet areas. There is also a separate laundry area.
The materials and finishes have been carefully selected to ensure aesthetic and functional harmony, reflecting the philosophy of Sophiq, which blends elegance, craftsmanship, and modern luxury. Beyond its unbeatable location next to the Lázaro Galdiano Museum and just steps from Calle Serrano, this home has the potential to become an architectural and personal gem.
A secure investment and an exceptional opportunity in one of Madrid's most coveted areas. Contact us for more information and come discover this one-of-a-kind property.
#ref:CBUQ629
Coldwell Banker Unique presents this magnificent residence located between the iconic streets of Serrano and Hermanos Bécquer, in one of the most distinguished areas of the Salamanca district, within the prestigious Castellana neighborhood. Situated next to El Viso and surrounded by exclusive hotels, restaurants, and high-end boutiques, this property offers a unique opportunity to invest or create your dream home.
Set in an elegant classical building, the property boasts 241 sqm according to the land registry, with three-meter-high ceilings and south-facing orientation, ensuring abundant natural light throughout the day. The absence of load-bearing walls provides total flexibility to redesign the layout according to your needs.
The renovation project, designed by SO Arquitectura, proposes a refined and functional distribution with three spacious double bedrooms, each with an en-suite bathroom, in addition to a service bedroom with its own bathroom. The social area is conceived as an open, bright, and welcoming space, perfect for everyday living and entertaining. The kitchen, thoughtfully designed, can be integrated with the living area or kept separate. The living-dining room includes a cozy reading corner for moments of relaxation.
The layout centers around a striking dome-lit hallway, adding character and sophistication. The master bedroom features a large walk-in closet and a bathroom with both shower and bathtub, while the secondary bedrooms share a spacious bathroom with separate shower and toilet areas. There is also a separate laundry area.
The materials and finishes have been carefully selected to ensure aesthetic and functional harmony, reflecting the philosophy of Sophiq, which blends elegance, craftsmanship, and modern luxury. Beyond its unbeatable location next to the Lázaro Galdiano Museum and just steps from Calle Serrano, this home has the potential to become an architectural and personal gem.
A secure investment and an exceptional opportunity in one of Madrid's most coveted areas. Contact us for more information and come discover this one-of-a-kind property.
#ref:CBUQ629
Property details
zone
Madrid provincia
area
Madrid ciudad
location
Madrid
district
Castellana
Property type
flat
sale
2.960.000 €
Reference
CBUQ629
Bedrooms
4
Bathrooms
4
Builded surface
241 m2
Condition / conservation
for renovation
Property features
lift
Energy certificate
- Pending
About Castellana
Paseo de la Castellana: An Emblematic Neighborhood in Madrid
Paseo de la Castellana is a distinguished district in Madrid, characterized by its architectural splendor, central location, and exclusive lifestyle. This area, nestled in the heart of the Spanish capital, offers an exceptional blend of urban conveniences and sophistication.
Lifestyle
Living in Paseo de la Castellana is synonymous with elegance and convenience. With majestic architecture and a vibrant urban life, this neighborhood offers a luxurious and cosmopolitan living experience. Residents enjoy a wide range of high-quality services such as gourmet restaurants, exclusive boutiques, theaters, museums, and an exciting nightlife.





















