Apartment to be renovated in the heart of Almagro, Madrid
Surrounded by palaces, embassies, prestigious art galleries and cultural centres, this property offers an unbeatable location and an environment of the highest prestige.
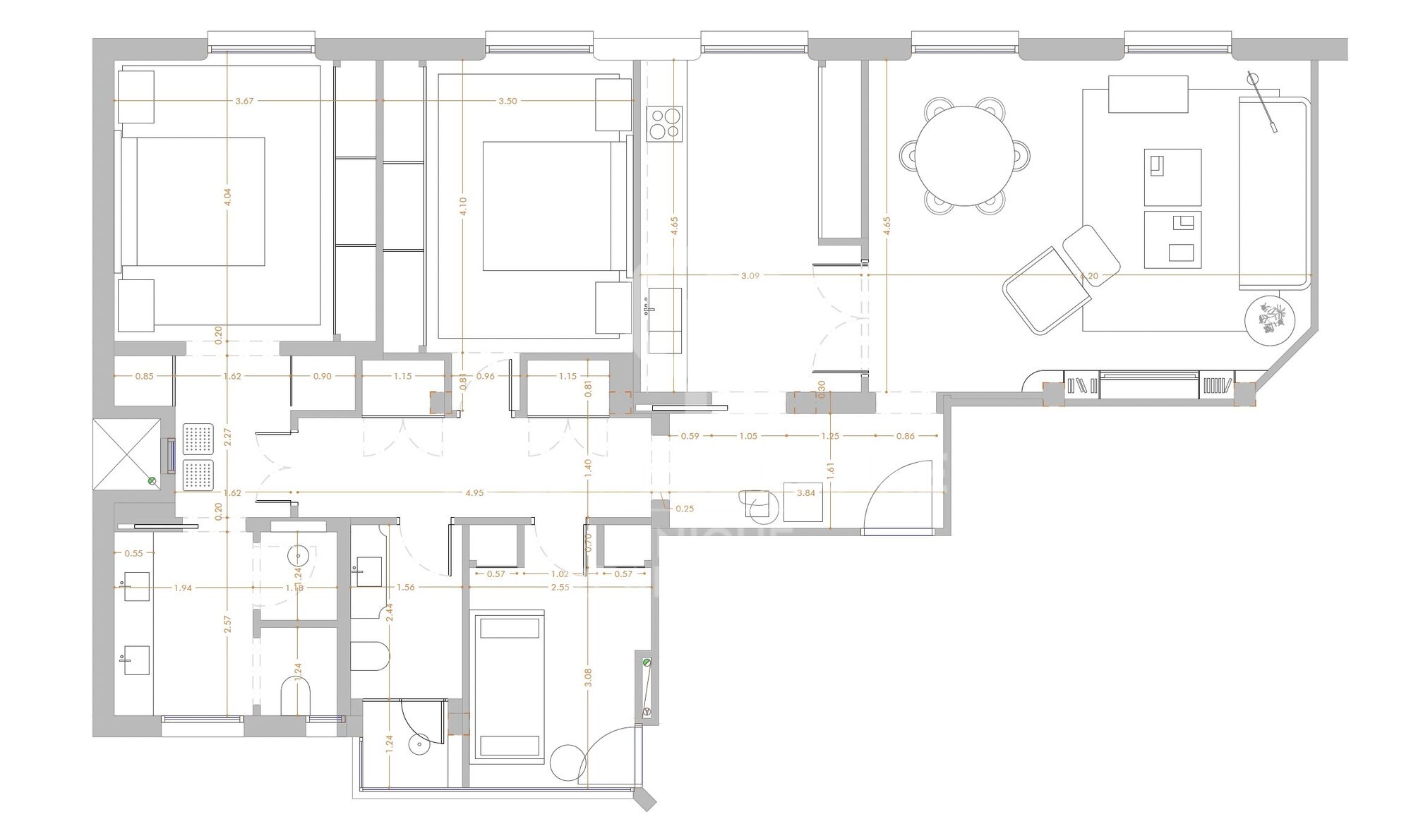
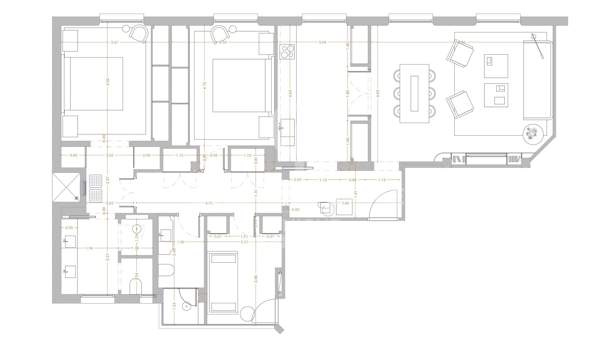
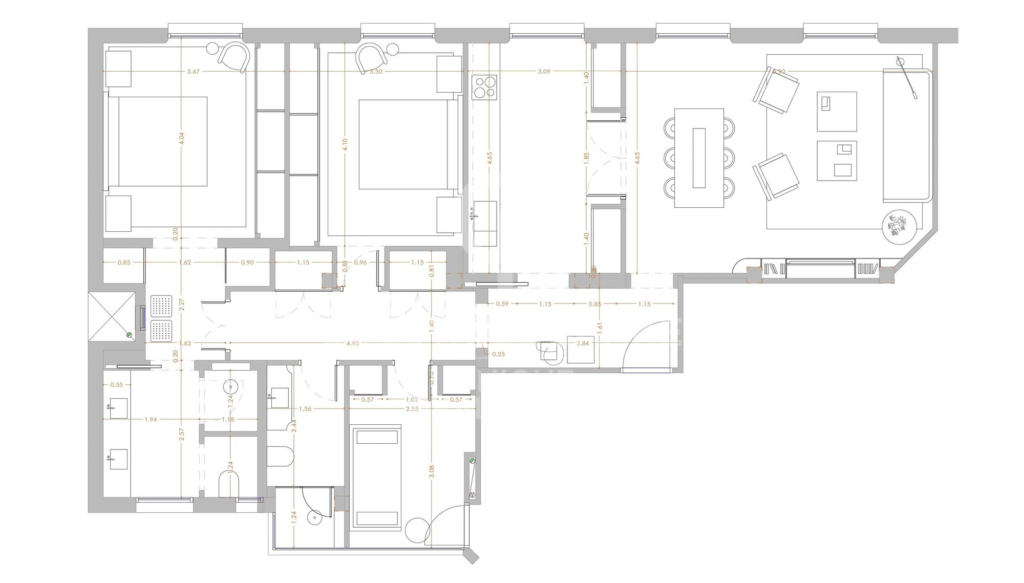
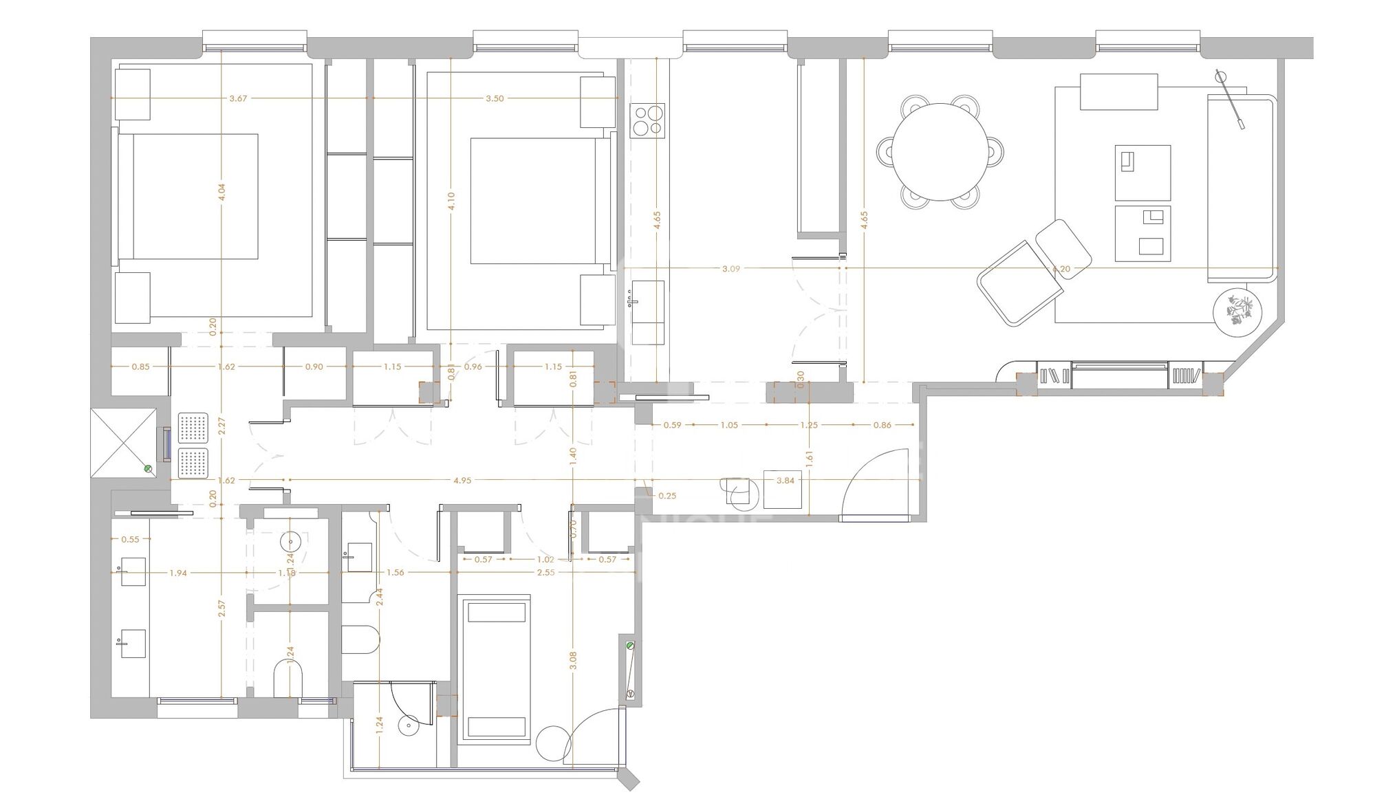
With an area of 165 m² and completely exterior, the flat stands out for its classic façade with five windows that open onto Monte Esquinza street, providing excellent natural light. In addition, it has direct access to a large garden terrace with charming views of the Villa de París and the Plaza de Colón, a real privilege in this area.
The property is currently being renovated, with several possible distribution proposals, offering the possibility of configuring two or three bedrooms and two or three bathrooms, thus adapting to the needs and tastes of the buyer.
A unique opportunity to live or invest in one of the most exclusive areas of the capital.
#ref:CBUQ890
Property details
Property features
- Pending
About Almagro
The Almagro neighborhood, located in the Chamberí district, is one of the most exclusive and representative areas of Madrid. Known for its stately architecture, embassies, and peaceful atmosphere, Almagro combines history, culture, and an उत्कृष्ट location in the heart of the capital. If you are looking for information about living in Almagro, investing in Almagro, or discovering what to see in this Madrid neighborhood, here you will find everything you need to know.
Prime Location in Central Madrid
The Almagro neighborhood lies between Paseo de la Castellana and Plaza de Alonso Martínez, giving it a strategic connection to the rest of the city. Thanks to its proximity to areas such as Salamanca and Justicia, as well as its excellent public transport network (metro and buses), Almagro is an ideal option for both residents and professionals working in Madrid’s financial district.
Stately Architecture and Historic Buildings
One of Almagro’s main attractions is its impressive architecture. Walking through its streets means admiring 19th-century mansions, modernist façades, and beautifully preserved classical buildings. Many of these properties now house embassies, professional offices, and institutional headquarters such as the Supreme Court.
This architectural richness makes Almagro one of the most elegant and distinguished areas of Madrid, highly valued in the luxury real estate market.
Culture and Museums in Almagro
The neighborhood also stands out for its cultural offerings. Among its main landmarks is the Sorolla Museum, the former residence of painter Joaquín Sorolla. This museum is one of the city’s most charming cultural spaces, featuring an Andalusian-style garden and a permanent collection that attracts both tourists and locals.
In addition, the proximity to art galleries, cultural centers, and theaters enhances the sophisticated character of the area.
Living in Almagro: Quality of Life and Exclusivity
Living in Almagro means enjoying wide, quiet streets, historic buildings, and a refined culinary scene. It is especially sought after by families, diplomats, and senior executives looking for security, prestige, and proximity to the city center.
The real estate market in Almagro is characterized by spacious properties, high ceilings, classic balconies, and grand entrances. Buying or renting in this area is considered a solid investment due to strong demand and price stability.
Restaurants and Services in the Neighborhood
Although it is a residential and elegant area, Almagro offers a carefully curated selection of restaurants, cafés, and gourmet shops. It is not a mass tourism area, allowing residents to enjoy a more relaxed and exclusive atmosphere compared to other central parts of Madrid.
The neighborhood also offers schools, private clinics, professional offices, and all essential daily services, making it one of the best areas to live in Madrid.



































