Land with project for sale in Major del Rectoret
The plot is buildable and the project has been submitted to the town hall, currently awaiting the building permit.
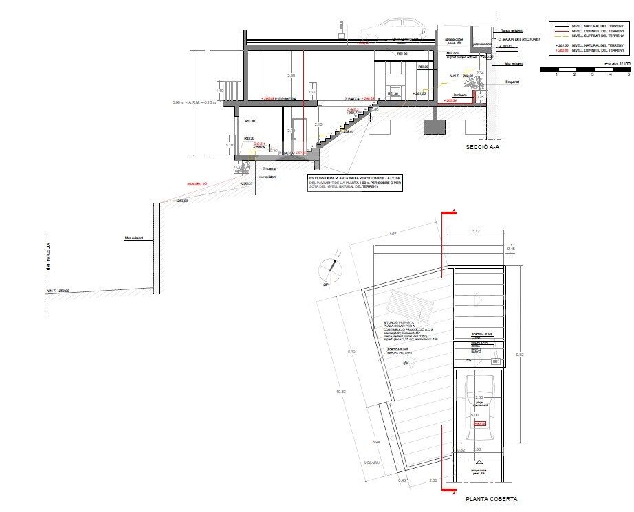
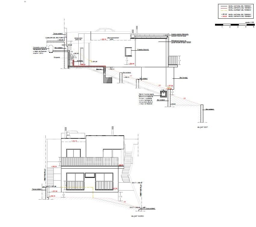
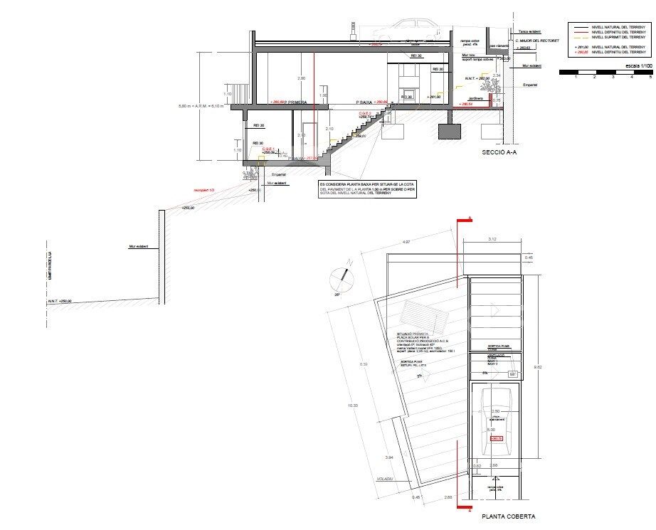
It has a project specifically designed to adapt to the characteristics of the terrain, ready to be presented. The proposal includes a two-storey single-family home that includes 3 bedrooms and 2 bathrooms, offering a functional and comfortable layout for family life.
Can Rectoret: Barcelona's natural refuge
The neighbourhood of Can Rectoret is known for its quiet and familiar atmosphere, surrounded by nature and with a mountain atmosphere that offers a unique living experience within the city. Located in the district of Sarrià-Sant Gervasi, it is a residential area appreciated by those looking for peace and privacy without giving up the urban connection. Its proximity to Collserola makes this place a true oasis, perfect for those who want to escape the metropolitan hustle and bustle while remaining well connected to the heart of Barcelona.
Nearby connectivity and services
The location is another of its strengths. A short walk from the grounds is bus stop number 128, which connects conveniently to the rest of the city. In addition, the Baixador de Vallvidrera station, located just 750 metres away, offers easy access to the railway network, ensuring efficient and hassle-free mobility.
A natural refuge just minutes from the city
The grounds are surrounded by lush greenery, providing a haven of tranquillity in the middle of vibrant Barcelona. This privileged location allows you to enjoy the best of both worlds: the calm of a natural environment and the proximity to essential urban services.
Don't miss this unique opportunity to build your dream home in one of the city's most unique neighbourhoods.
The sale price does not include taxes or expenses, which are payable by the buyer under current regulations: ITP for previously transferred land, VAT and AJD for newly developed land or urban projects, as well as notary and registry fees and administrative costs if contracted. Availability to be agreed. The offer is subject to price changes or withdrawal without notice. Areas and boundaries are indicative. Brokerage fees shall be borne according to the agreement. Detailed information will be provided before any deposit is paid.
#ref:CB2105LL
Property details
- Pending
About Vallvidrera - Tibidabo - Les Planes
Vallvidrera, Tibidabo, and Les Planes are three neighborhoods in Barcelona, located in the Catalonia region, within the Sarrià-Sant Gervasi district, known for their prime location on the Collserola hills. These neighborhoods offer a peaceful atmosphere surrounded by nature, just minutes away from the bustling city center. Living in Vallvidrera, Tibidabo, and Les Planes means enjoying a high quality of life, with expansive views of the city and an ideal natural environment for those seeking tranquility without being far from urban amenities.
The area is perfect for outdoor enthusiasts, with the Collserola Natural Park right at its doorstep, where you can hike, bike, or enjoy panoramic views from Tibidabo. In terms of the real estate market, Vallvidrera, Tibidabo, and Les Planes offer a wide range of single-family homes, luxury villas, and quiet apartments with an exclusive touch, making them an excellent choice for those seeking a more relaxed residential setting, yet well-connected to the city center.























