Land with project for sale in Major del Rectoret
The plot is buildable and the project has been submitted to the town hall, currently awaiting the building permit.
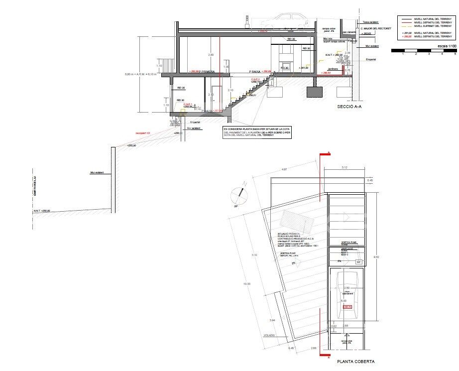
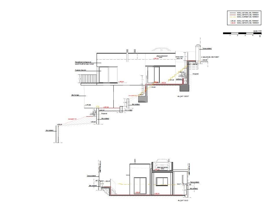
It has a project specifically designed to adapt to the characteristics of the terrain, ready to be presented. The proposal includes a two-storey single-family home that includes 3 bedrooms and 2 bathrooms, offering a functional and comfortable layout for family life.
Can Rectoret: Barcelona's natural refuge
The neighbourhood of Can Rectoret is known for its quiet and familiar atmosphere, surrounded by nature and with a mountain atmosphere that offers a unique living experience within the city. Located in the district of Sarrià-Sant Gervasi, it is a residential area appreciated by those looking for peace and privacy without giving up the urban connection. Its proximity to Collserola makes this place a true oasis, perfect for those who want to escape the metropolitan hustle and bustle while remaining well connected to the heart of Barcelona.
Nearby connectivity and services
The location is another of its strengths. A short walk from the grounds is bus stop number 128, which connects conveniently to the rest of the city. In addition, the Baixador de Vallvidrera station, located just 750 metres away, offers easy access to the railway network, ensuring efficient and hassle-free mobility.
A natural refuge just minutes from the city
The grounds are surrounded by lush greenery, providing a haven of tranquillity in the middle of vibrant Barcelona. This privileged location allows you to enjoy the best of both worlds: the calm of a natural environment and the proximity to essential urban services.
Don't miss this unique opportunity to build your dream home in one of the city's most unique neighbourhoods.
The sale price does not include taxes or expenses, which are payable by the buyer under current regulations: ITP for previously transferred land, VAT and AJD for newly developed land or urban projects, as well as notary and registry fees and administrative costs if contracted. Availability to be agreed. The offer is subject to price changes or withdrawal without notice. Areas and boundaries are indicative. Brokerage fees shall be borne according to the agreement. Detailed information will be provided before any deposit is paid.
#ref:CB2105LL
Immobilieninformationen
- Ausstehend
über Vallvidrera - Tibidabo - Les Planes
Vallvidrera, Tibidabo und Les Planes sind drei Stadtteile in Barcelona, gelegen in der Region Katalonien, im Stadtbezirk Sarrià-Sant Gervasi, bekannt für ihre erstklassige Lage auf den Collserola-Hügeln. Diese Stadtteile bieten eine ruhige Atmosphäre, umgeben von Natur, und sind nur wenige Minuten vom lebhaften Stadtzentrum entfernt. Das Leben in Vallvidrera, Tibidabo und Les Planes bedeutet, eine hohe Lebensqualität zu genießen, mit weiten Blicken auf die Stadt und einer idealen natürlichen Umgebung für diejenigen, die Ruhe suchen, ohne weit von städtischen Annehmlichkeiten entfernt zu sein.
Die Gegend ist ideal für Outdoor-Enthusiasten, mit dem Collserola Naturpark direkt vor der Tür, wo man wandern, Rad fahren oder die Panoramaaussicht vom Tibidabo genießen kann. Auf dem Immobilienmarkt bieten Vallvidrera, Tibidabo und Les Planes eine große Auswahl an Einzelhäusern, Luxusvillen und ruhigen Wohnungen, was sie zu einer ausgezeichneten Wahl für diejenigen macht, die eine entspannte Wohngegend suchen, aber dennoch gut mit dem Stadtzentrum verbunden sind.














