Reihenhaus zum Verkauf in der Carrer del Foc Follet, Bon Pastor, Sant Andreu
Warum Sie es lieben werden:
Umfassende Renovierung mit Erneuerung der gesamten Elektro-, Sanitär-, Heizungs- und Dämmtechnik.
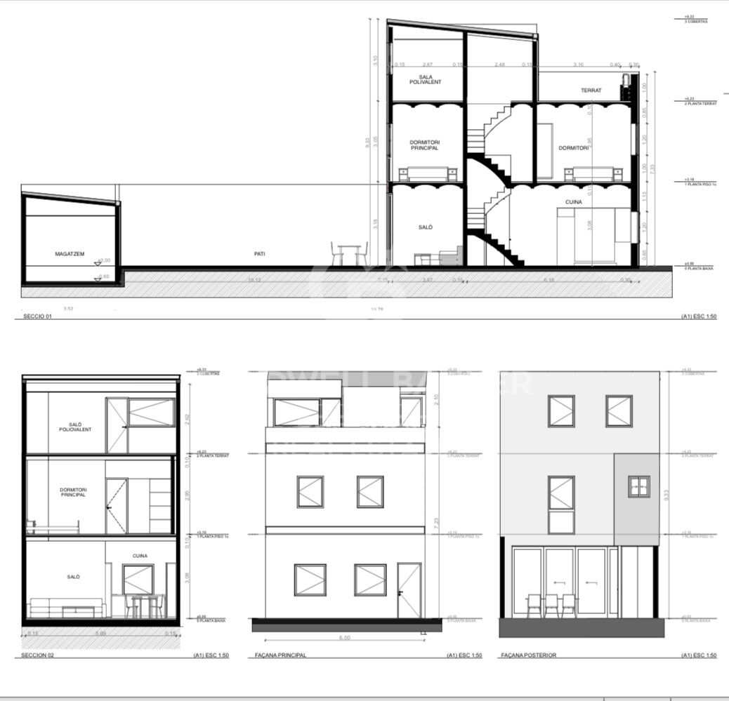
Auf drei großzügige, gut genutzte Etagen verteilt.
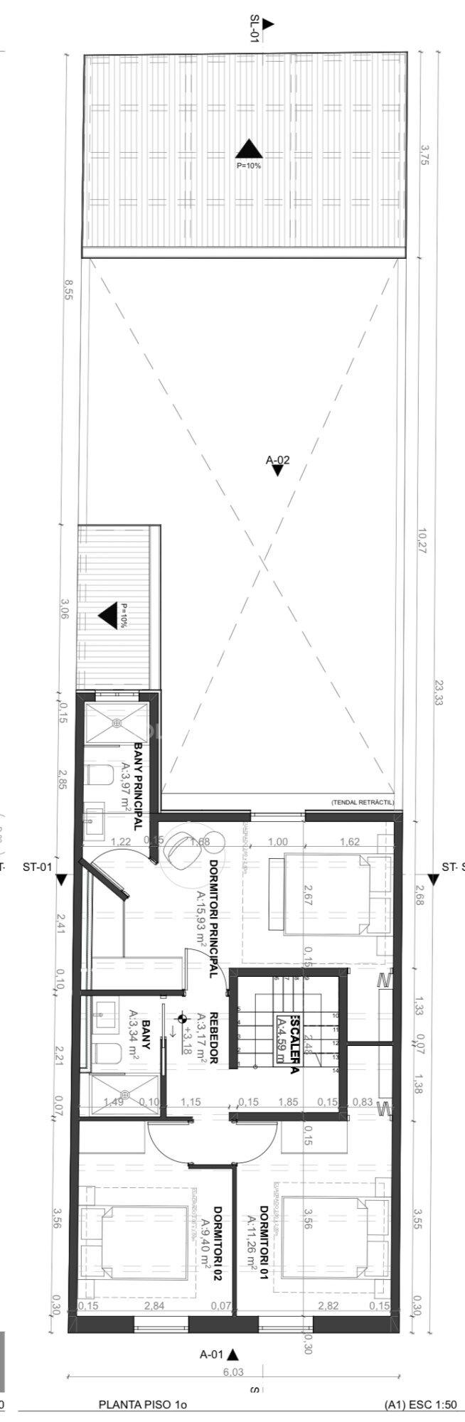
35m² große Sonnenterrasse - ideal für Grillabende, zum Entspannen oder als Chill-out-Bereich.
Multifunktionaler Raum - perfekt als Homeoffice, Fitnessraum, Spielzimmer oder Atelier.
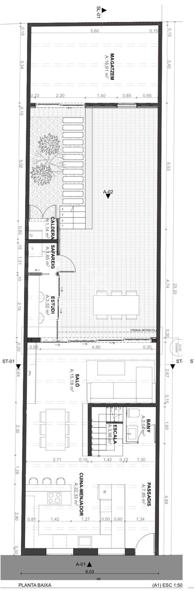
Großer Außenhof mit Waschbereich und Abstellraum - durchdacht für den Alltag.
Hauptschlafzimmer mit Ankleide und eigenem Bad, dazu zwei helle Doppelschlafzimmer.
Moderne, voll ausgestattete Küche und offener Wohn-Essbereich - ideal für Familie und Gäste.
Tolle Lage:
In einem ruhigen Wohnviertel des Stadtteils Bon Pastor gelegen, mit Grünflächen in der Nähe und allen Dienstleistungen in Reichweite.
Nur wenige Minuten zu den U-Bahn-Linien L9, L10 und L2 (zukünftige Direktverbindung zum Flughafen).
Supermarkt in 1 Minute, Apotheke in 3', Schulen und Bibliothek in 5', Einkaufszentrum La Maquinista in 12'. Öffentlicher Parkplatz in unmittelbarer Nähe.
Besonderes Extra:
Die Immobilie verfügt über ein Bau- und Luftrecht, das laut aktueller Vorschrift den Bau eines zusätzlichen Stockwerks ermöglicht.
Die Bilder in diesem Inserat sind Visualisierungen (Renderings) mit den endgültigen Farben, Materialien und Oberflächen für Wände und Böden. Die Möbel dienen als Beispiel zur Dekoration.
Die Fertigstellung ist für August geplant - perfekt, um Ihr neues Zuhause noch vor dem Ende des Sommers zu genießen.
Der Verkaufspreis enthält keine Steuern oder mit dem Kauf verbundenen Kosten, die gemäß den geltenden Vorschriften vom Käufer zu tragen sind: (i) bei Gebrauchtimmobilien die Grunderwerbsteuer (ITP) in der in der jeweiligen Autonomen Gemeinschaft geltenden Höhe; (ii) bei Neubauwohnungen die Mehrwertsteuer und die Stempelsteuer (AJD) gemäß den geltenden Vorschriften; (iii) Notar- und Registergebühren; und (iv) Verwaltungsgebühren, falls diese in Anspruch genommen werden. Verfügbarkeit nach Vereinbarung. Das Angebot unterliegt Preisänderungen oder einer Rücknahme vom Markt ohne vorherige Ankündigung. Die angegebenen Daten, einschließlich der Flächenangaben, dienen lediglich als Anhaltspunkt. Die Maklergebühren werden von der entsprechenden Partei gemäß dem unterzeichneten Auftrag übernommen. Jedem Interessenten werden vor der Leistung einer Anzahlung detaillierte und individuelle Informationen gemäß den geltenden staatlichen und autonomen Vorschriften zur Verfügung gestellt.
#ref:CBES2663
Immobilieninformationen
In der Nähe des Strandes / Meeres
- Ausstehend
über Sant Andreu de Palomar
Sant Andreu de Palomar ist der älteste Teil des Bezirks Sant Andreu in Barcelona, der trotz Stadtnähe das Flair eines kleinen Dorfes bewahrt. Charakteristisch sind lokale Geschäfte, Fußgängerstraßen, lebendige Plätze und ein starkes Gemeinschaftsgefühl.
Die Lage ist äußerst günstig: im Nordosten Barcelonas gelegen, gut angebunden durch die Metrolinie L1, S‑Bahnen, Buslinien und mit dem geplanten La Sagrera‑Bahnhof als zukünftigem Mobilitätsknoten.
Die Lebensqualität zeichnet sich durch traditionelle Wohnstrukturen, grüne Oasen wie den Maquinista‑Park, ein aktives Vereinsleben und zentrale Plätze aus, die besonders familienfreundlich sind.
Im Immobilienmarkt gilt Sant Andreu als zunehmend begehrte Wohngegend: stetige Preissteigerung, gute Zukunftsaussichten, mit sowohl Neubauten als auch klassischen Wohnungen zu attraktiven Preisen im Vergleich zur Innenstadt.


















