Charming Apartment next to Oliva Beach
Coldwell Banker Excellence Real Estate exclusively presents this cozy apartment located in the renowned Oliva Beach, representing an excellent opportunity to enjoy the Mediterranean lifestyle all year round or to make a highly profitable investment.
Living just 100 meters from the sea allows you to fully embrace the coastal way of life: sunrise walks, sunset terraces, and the convenience of having the beach only a few steps away.
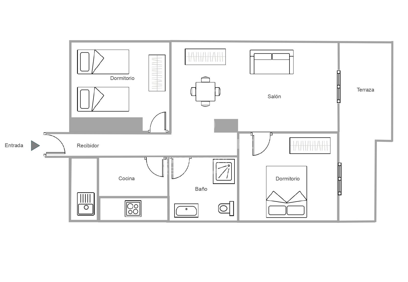
Situated on the second floor (no elevator) and in good condition, the property offers 67 m² perfectly distributed. It features two spacious double bedrooms, a fully equipped kitchen, a complete bathroom, and a bright living-dining room with access to an east-facing outdoor terrace that guarantees natural light and pleasant open views. Its orientation and natural ventilation provide freshness and comfort throughout the year.
Main features:
- 100 meters from the sea
- 67 m² built area
- 2 double bedrooms with built-in wardrobes
- 1 full bathroom
- Fully equipped kitchen
- Living-dining room with access to outdoor terrace
- East-facing orientation with open views
- Installed ceiling fans
- Rotating communal parking
- Second floor without elevator
- Valid tourist license
Its location in the heart of Oliva Beach allows access to all essential services supermarkets, pharmacy, and restaurants without the need for a vehicle. In addition, it holds a valid tourist license, making it especially attractive for holiday or seasonal rentals in one of the most sought-after areas of the Valencian coast.
Don't miss the opportunity to enjoy the authentic Mediterranean lifestyle, where comfort, light, and well-being come together every day by the sea!
#CBEX2616
#ref:CBEX2616
Property details
Property features
-
A
92-100 -
B
81-91 -
C
69-80 -
D
55-68 -
E
39-54 -
F
21-38 -
G
1-20
About Oliva
Oliva, located in the Valencia region, is a charming coastal town known for its prime location, high quality of life, and vibrant range of activities. Positioned along the Costa Blanca, Oliva offers golden sandy beaches, crystal-clear waters, and a Mediterranean climate, ideal for those seeking a relaxed lifestyle by the sea.
The location of Oliva provides easy access to a variety of recreational activities, including water sports, golf, and hiking in nearby hills. Its proximity to Valencia city adds the advantage of enjoying cultural events, festivals, and rich local cuisine.
Quality of life in Oliva is exceptional, with a safe environment, clean streets, and a friendly community. The town has all essential services, such as healthcare and educational facilities, ensuring a comfortable and pleasant living experience.
The real estate market in Oliva is diverse and appealing, offering everything from modern sea-view apartments to cozy country houses. The growing demand for properties in this area makes Oliva an excellent choice for both living and investing.
Discover Oliva for a unique lifestyle in the Valencia region, with an expanding real estate market and unmatched natural surroundings.





































