Brand new flat for sale in Calle Muntaner
Brand-new renovated 224 m² apartment for sale on Muntaner Street, featuring 5 bedrooms and 4 bathrooms, in a 1940s period building.
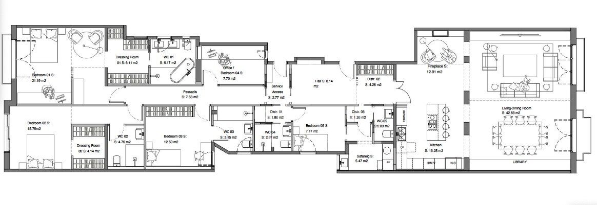
This spacious and bright property stands out for its excellent layout and generous volumes. The living area comprises a large living-dining room overlooking an interior courtyard with a garden, providing abundant natural light and a pleasant sense of openness. The modern kitchen, fully equipped with high-quality Miele appliances, integrates seamlessly into the space, making it ideal for both everyday living and entertaining.
The night area offers a total of 5 bedrooms, designed to ensure comfort and privacy. Notably, there are 2 double bedrooms with en-suite bathrooms and walk-in wardrobes, as well as additional versatile spaces that can be used as an office, study area or guest rooms. The property also features a separate laundry room and smart storage solutions. High-quality finishes, high ceilings and air conditioning complete a home ready to move into.
The apartment is located in a building of strong architectural presence, well maintained and with classic features that add distinction. The property includes a lift and concierge service, ensuring comfort and security in a well-established residential setting.
Situated on Muntaner Street, in the heart of Sarrià-Sant Gervasi, one of Barcelona's most exclusive and sought-after districts, the area perfectly combines residential tranquillity with a wide range of shops, schools, restaurants and services. Excellent transport connections provide quick access to the city centre, making it an ideal location for families and those seeking a high quality of life.
The sale price does not include taxes or expenses derived from the transaction, which, according to current regulations, are borne by the buyer: (i) for resale properties, Property Transfer Tax (ITP) at the applicable regional rate; (ii) for new-build properties, VAT and Stamp Duty (AJD); (iii) notary and land registry fees; and (iv) administrative costs if applicable. Availability to be agreed. The offer is subject to price changes or withdrawal from the market without prior notice. The information provided, including surface areas, is for guidance only. Real estate agency fees will be borne by the corresponding party according to the signed agreement. Detailed and personalised information will be provided to any interested party prior to the payment of any deposit, in accordance with applicable regulations.
#ref:CBES29001
This spacious and bright property stands out for its excellent layout and generous volumes. The living area comprises a large living-dining room overlooking an interior courtyard with a garden, providing abundant natural light and a pleasant sense of openness. The modern kitchen, fully equipped with high-quality Miele appliances, integrates seamlessly into the space, making it ideal for both everyday living and entertaining.
The night area offers a total of 5 bedrooms, designed to ensure comfort and privacy. Notably, there are 2 double bedrooms with en-suite bathrooms and walk-in wardrobes, as well as additional versatile spaces that can be used as an office, study area or guest rooms. The property also features a separate laundry room and smart storage solutions. High-quality finishes, high ceilings and air conditioning complete a home ready to move into.
The apartment is located in a building of strong architectural presence, well maintained and with classic features that add distinction. The property includes a lift and concierge service, ensuring comfort and security in a well-established residential setting.
Situated on Muntaner Street, in the heart of Sarrià-Sant Gervasi, one of Barcelona's most exclusive and sought-after districts, the area perfectly combines residential tranquillity with a wide range of shops, schools, restaurants and services. Excellent transport connections provide quick access to the city centre, making it an ideal location for families and those seeking a high quality of life.
The sale price does not include taxes or expenses derived from the transaction, which, according to current regulations, are borne by the buyer: (i) for resale properties, Property Transfer Tax (ITP) at the applicable regional rate; (ii) for new-build properties, VAT and Stamp Duty (AJD); (iii) notary and land registry fees; and (iv) administrative costs if applicable. Availability to be agreed. The offer is subject to price changes or withdrawal from the market without prior notice. The information provided, including surface areas, is for guidance only. Real estate agency fees will be borne by the corresponding party according to the signed agreement. Detailed and personalised information will be provided to any interested party prior to the payment of any deposit, in accordance with applicable regulations.
#ref:CBES29001
Property details
zone
Barcelona provincia
area
Barcelona ciudad
location
Barcelona
district
Sant Gervasi- Galvany
Property type
flat
sale
2.150.000 €
Reference
CBES29001
Bedrooms
5
Bathrooms
5
Surface
196 m2
Builded surface
224 m2
Condition / conservation
new
Property features
storage
lift
parking
built in closets
Energy certificate
-
A
92-100 -
B
81-91 -
C
69-80 -
D
55-68 -
E
39-54 -
F
21-38 -
G
1-20
About Sant Gervasi - Galvany
Sant Gervasi-Galvany, a hidden gem in the heart of Barcelona, stands out for its rich cultural heritage and the vibrant life it offers to its residents. This residential district has achieved a harmonious fusion of historical elegance and modernity, becoming a sought-after place for those seeking a sophisticated and balanced living experience.
With wide avenues and tree-lined streets, Sant Gervasi-Galvany provides a serene and pleasant environment. From modern apartments to majestic manor houses, the real estate market offers diverse options for different lifestyles and preferences.












































