Flat in a modernist building in l'Antiga Esquerra de l'Eixample, Barcelona
size
115 m²
Bedrooms
3
Bathrooms
2
price
765,000 €
Coldwell Banker Prestige presents this property located in a stately modernist building at the intersection of Carrer de València and Carrer de Muntaner, in the heart of Barcelona's Eixample Izquierdo. Situated on the real 6th floor of a building with a lift, it features security systems including video surveillance and a double entry door.
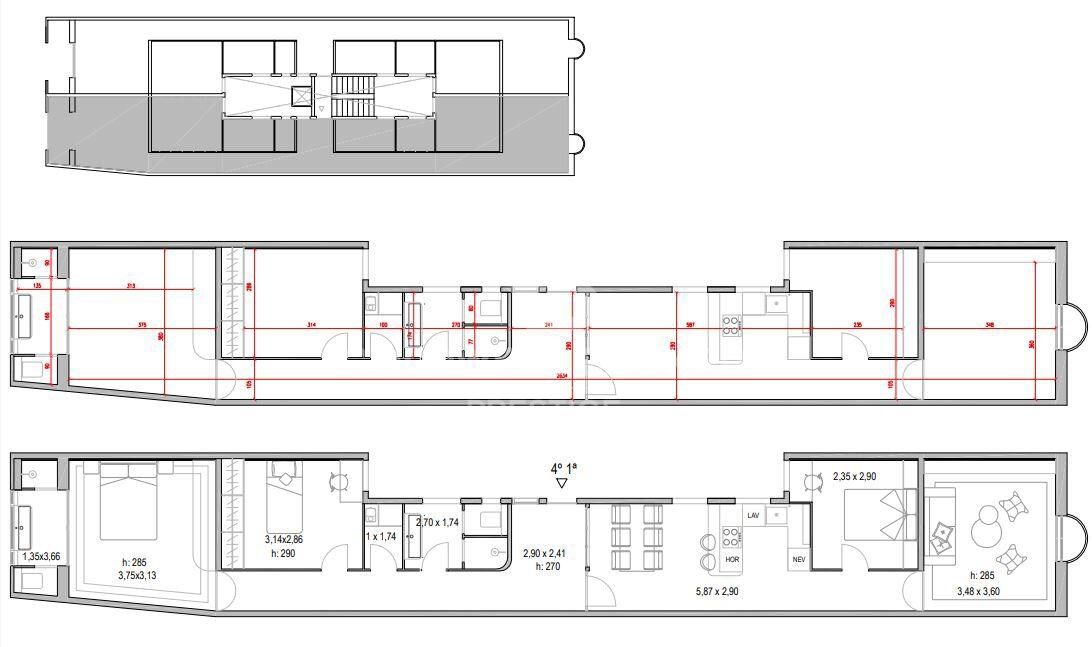
The flat, with 115 m² built, has been designed by an architect specialised in high-end residential projects. It stands out for its functional layout, quality finishes, and refined lightingboth direct and indirectthroughout the home.
The day area includes a bright, open-plan kitchen and dining space. The kitchen is equipped with modern appliances and optimised for everyday efficiency. The living room opens to a south-facing balcony with views over Carrer de València, providing abundant natural light.
The property features three double bedrooms. One includes a fold-down bed, ideal as an office or multipurpose room. The other two are full double bedrooms: one en-suite, exterior, with bespoke wardrobes; the other with built-in wardrobes.
There are two full bathroomsone with a shower in the hallwayand an independent laundry area. The flat is fully insulated, both from the exterior and neighbouring units, with new carpentry and double-glazed windows with thermal break.
Restored original hydraulic flooring preserves the charm of the building's heritage. The renovation has followed high standards of quality and sustainability, maximising energy efficiency, acoustic comfort, and natural light, thanks to its south-facing orientation.
For more information or to arrange a viewing, please do not hesitate to contact us.
#ref:CBES2649
The flat, with 115 m² built, has been designed by an architect specialised in high-end residential projects. It stands out for its functional layout, quality finishes, and refined lightingboth direct and indirectthroughout the home.
The day area includes a bright, open-plan kitchen and dining space. The kitchen is equipped with modern appliances and optimised for everyday efficiency. The living room opens to a south-facing balcony with views over Carrer de València, providing abundant natural light.
The property features three double bedrooms. One includes a fold-down bed, ideal as an office or multipurpose room. The other two are full double bedrooms: one en-suite, exterior, with bespoke wardrobes; the other with built-in wardrobes.
There are two full bathroomsone with a shower in the hallwayand an independent laundry area. The flat is fully insulated, both from the exterior and neighbouring units, with new carpentry and double-glazed windows with thermal break.
Restored original hydraulic flooring preserves the charm of the building's heritage. The renovation has followed high standards of quality and sustainability, maximising energy efficiency, acoustic comfort, and natural light, thanks to its south-facing orientation.
For more information or to arrange a viewing, please do not hesitate to contact us.
#ref:CBES2649
Property details
zone
Barcelona provincia
area
Barcelona ciudad
location
Barcelona
district
L'Antiga Esquerra de l'Eixample
Property type
flat
sale
765.000 €
Reference
CBES2649
Bedrooms
3
Bathrooms
2
Builded surface
115 m2
Condition / conservation
refurbished
Property features
lift
Energy certificate
-
A
92-100 -
B
81-91 -
C
69-80 -
D
55-68 -
E
39-54 -
F
21-38 -
G
1-20
About L'Antiga Esquerra de l'Eixample
L'Antiga Esquerra de l'Eixample, a district that breathes the historical and contemporary essence of Barcelona, stands as an architectural and cultural gem in the heart of the city. Strategically located, this district merges the grandeur of the Catalan Modernism era with a modern and eclectic energy.































































