- Spanien
- Valencia provincia
- Safor
- Oliva
- Oliva Playa
Charmante Wohnung, 100 m vom Strand von Oliva entfernt
Coldwell Banker Excellence Real Estate präsentiert exklusiv diese gemütliche Wohnung am renommierten Strand von Oliva - eine hervorragende Gelegenheit, das mediterrane Leben das ganze Jahr über zu genießen oder eine renditestarke Investition zu tätigen.
Nur 100 Meter vom Meer entfernt zu wohnen bedeutet, den Küstenstil in vollen Zügen zu erleben: Spaziergänge bei Sonnenaufgang, Terrassenabende bei Sonnenuntergang und der Komfort, den Strand stets nur wenige Schritte entfernt zu haben.
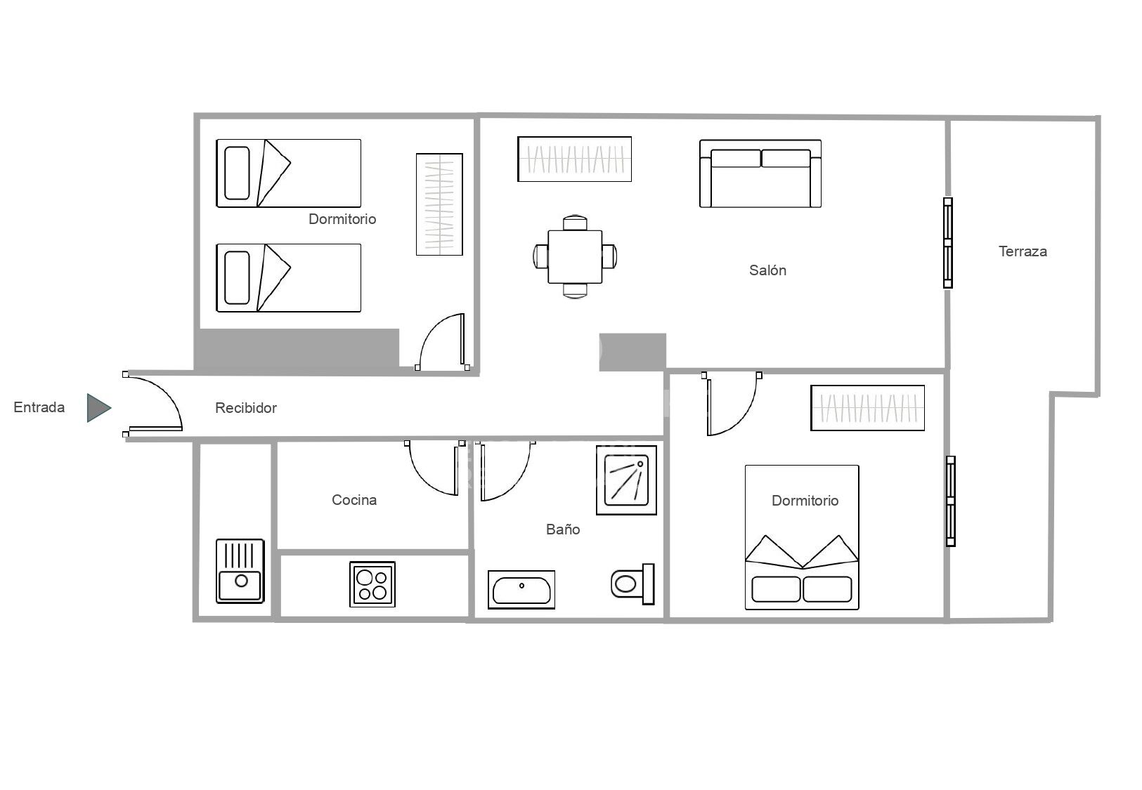
Die Wohnung befindet sich im zweiten Stock (ohne Aufzug), ist in gutem Zustand und bietet 67 m² optimal aufgeteilt. Sie verfügt über zwei großzügige Doppelschlafzimmer, eine vollständig ausgestattete Küche, ein komplettes Badezimmer sowie ein helles Wohn-Esszimmer mit Zugang zu einer nach Osten ausgerichteten Außenterrasse, die viel Tageslicht und einen angenehmen freien Ausblick garantiert. Die Ausrichtung und natürliche Belüftung sorgen das ganze Jahr über für Frische und Wohnkomfort.
Hauptmerkmale:
- 100 Meter vom Meer entfernt
- 67 m² bebaute Fläche
- 2 Doppelschlafzimmer mit Einbauschränken
- 1 komplettes Badezimmer
- Vollständig ausgestattete Küche
- Wohn-Esszimmer mit Zugang zur Außenterrasse
- Ost-Ausrichtung mit freiem Ausblick
- Installierte Deckenventilatoren
- Rotierender Gemeinschaftsparkplatz
- Zweiter Stock ohne Aufzug
- Gültige Touristenlizenz
Dank der Lage im Herzen des Strandes von Oliva sind alle wichtigen Dienstleistungen - Supermärkte, Apotheke und Restaurants - bequem zu Fuß erreichbar. Zudem verfügt die Immobilie über eine gültige Touristenlizenz, was sie besonders attraktiv für Ferien- oder Saisonvermietungen in einer der gefragtesten Gegenden der valencianischen Küste macht.
Verpassen Sie nicht die Gelegenheit, den authentischen mediterranen Lebensstil zu genießen, bei dem Komfort, Licht und Wohlbefinden jeden Tag direkt am Meer zusammentreffen!
#CBEX2616
#ref:CBEX2616
Immobilieninformationen
In der Nähe des Strandes / Meeres
-
A
92-100 -
B
81-91 -
C
69-80 -
D
55-68 -
E
39-54 -
F
21-38 -
G
1-20
über Oliva
Oliva, gelegen in der Region Valencia, ist eine charmante Küstenstadt, die sich durch ihre erstklassige Lage, hohe Lebensqualität und eine lebhafte Auswahl an Aktivitäten auszeichnet. Entlang der Costa Blanca gelegen, bietet Oliva goldene Sandstrände, kristallklares Wasser und ein mediterranes Klima, ideal für diejenigen, die einen entspannten Lebensstil am Meer suchen.
Die Lage von Oliva ermöglicht einfachen Zugang zu verschiedenen Freizeitaktivitäten wie Wassersport, Golf und Wandern in den nahegelegenen Hügeln. Die Nähe zur Stadt Valencia bietet zudem den Vorteil, kulturelle Veranstaltungen, Festivals und eine reichhaltige lokale Küche genießen zu können.
Die Lebensqualität in Oliva ist außergewöhnlich, mit einer sicheren Umgebung, sauberen Straßen und einer freundlichen Gemeinschaft. Die Stadt bietet alle wesentlichen Dienstleistungen, wie Gesundheits- und Bildungseinrichtungen, und sorgt so für ein komfortables und angenehmes Leben.
Der Immobilienmarkt in Oliva ist vielfältig und attraktiv, mit Angeboten von modernen Meerblick-Apartments bis hin zu gemütlichen Landhäusern. Die wachsende Nachfrage nach Immobilien in dieser Region macht Oliva zu einer ausgezeichneten Wahl sowohl zum Wohnen als auch für Investitionen.
Entdecken Sie Oliva für einen einzigartigen Lebensstil in der Region Valencia, mit einem expandierenden Immobilienmarkt und unvergleichlichen natürlichen Gegebenheiten.














































