Außenliegende renovierungsbedürftige Wohnung mit Terrasse in Bernabéu, Madrid
Größe
589 m²
Parkplatz
Preis
5.000.000 €
Coldwell Banker Unique präsentiert diese exklusive Immobilie im Herzen von Chamartín, in der begehrten Gegend Bernabéu, am emblematischen Paseo de la Castellana, strategisch gelegen zwischen Plaza de Lima und Nuevos Ministerios.
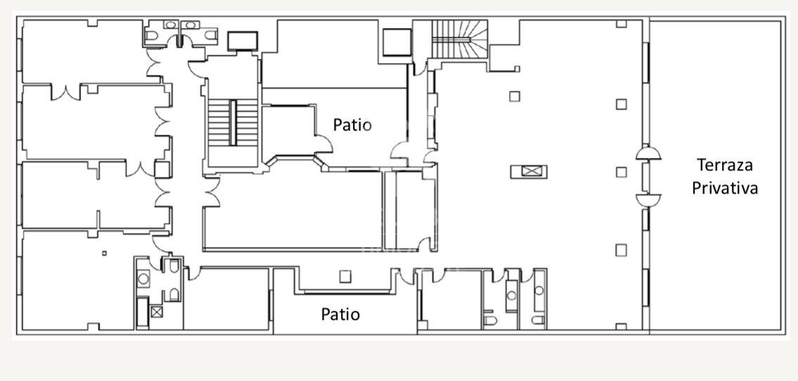
Die Immobilie erstreckt sich über die gesamte erste Etage des Gebäudes und verfügt über eine Gesamtfläche von 589 m², davon 450 m² Wohnfläche, 125 m² spektakuläre private Terrasse sowie 14 m² überdachte Gemeinschaftspatios.
Eine außergewöhnliche Konfiguration, die großzügige Innenräume mit wertvollem Außenbereich an einer der repräsentativsten Hauptachsen Madrids verbindet.
Im Kaufpreis sind ein Stellplatz in der Garage sowie ein Abstellraum im selben Gebäude enthalten, was Komfort und Funktionalität für eine Immobilie dieser Größenordnung gewährleistet.
Derzeit präsentiert sich die Immobilie als echte Leinwand, die unzählige Möglichkeiten zur Neugestaltung und Raumaufteilung bietet. Größe und Struktur ermöglichen die Entwicklung eines vollständig personalisierten Projekts, das an die Bedürfnisse und den Lebensstil des zukünftigen Eigentümers angepasst ist - sei es als großzügiger Familiensitz, repräsentative Residenz oder als Kombination hochwertiger privater und gesellschaftlicher Bereiche.
Die dargestellten Bilder sind Visualisierungen eines Renovierungsvorschlags, die das Potenzial der Immobilie veranschaulichen, während die Grundrisse sowohl den aktuellen Zustand als auch eine mögliche Neugestaltung zeigen und so Umfang und Chancen dieser einzigartigen Immobilie klar darstellen.
#ref:CBUQ1307
Die Immobilie erstreckt sich über die gesamte erste Etage des Gebäudes und verfügt über eine Gesamtfläche von 589 m², davon 450 m² Wohnfläche, 125 m² spektakuläre private Terrasse sowie 14 m² überdachte Gemeinschaftspatios.
Eine außergewöhnliche Konfiguration, die großzügige Innenräume mit wertvollem Außenbereich an einer der repräsentativsten Hauptachsen Madrids verbindet.
Im Kaufpreis sind ein Stellplatz in der Garage sowie ein Abstellraum im selben Gebäude enthalten, was Komfort und Funktionalität für eine Immobilie dieser Größenordnung gewährleistet.
Derzeit präsentiert sich die Immobilie als echte Leinwand, die unzählige Möglichkeiten zur Neugestaltung und Raumaufteilung bietet. Größe und Struktur ermöglichen die Entwicklung eines vollständig personalisierten Projekts, das an die Bedürfnisse und den Lebensstil des zukünftigen Eigentümers angepasst ist - sei es als großzügiger Familiensitz, repräsentative Residenz oder als Kombination hochwertiger privater und gesellschaftlicher Bereiche.
Die dargestellten Bilder sind Visualisierungen eines Renovierungsvorschlags, die das Potenzial der Immobilie veranschaulichen, während die Grundrisse sowohl den aktuellen Zustand als auch eine mögliche Neugestaltung zeigen und so Umfang und Chancen dieser einzigartigen Immobilie klar darstellen.
#ref:CBUQ1307
Immobilieninformationen
zone
Madrid provincia
Gegend
Madrid ciudad
standort
Madrid
district
Hispanoamérica - Bernabéu
Objekt typ
Wohnung
Verkauf
5.000.000 €
Referenz
CBUQ1307
Bebaute Fläche
589 m2
Zustand / Erhaltung
Zur Renovierung
In der Nähe des Strandes / Meeres
Abstellraum
lift
Parkplatz
Energiezertifikat
- Ausstehend
über Madrid
Madrid, die lebendige Hauptstadt Spaniens, ist eine Stadt, die vor Energie und kulturellem Reichtum pulsiert. Von der ikonischen Puerta del Sol bis zum majestätischen Königspalast bietet Madrid eine Mischung aus historischem Charme und moderner Vitalität. Mit Weltklasse-Museen wie dem Prado und lebendigen Vierteln wie Malasaña begeistert die Stadt Bewohner und Besucher gleichermaßen.








