Wunderschöne Wohnung, die in der besten Gegend von Castellana renoviert werden muss
Coldwell Banker Unique präsentiert dieses beeindruckende Objekt zwischen den renommierten Straßen Serrano und Hermanos Bécquer, in einer der exklusivsten Lagen Madrids im Stadtteil Castellana des eleganten Viertels Salamanca. In unmittelbarer Nähe zu El Viso gelegen und umgeben von Luxus-Hotels, gehobenen Restaurants und Designer-Boutiquen, bietet diese Immobilie eine einmalige Gelegenheit zur Investition oder zur Verwirklichung Ihres Traumhauses.
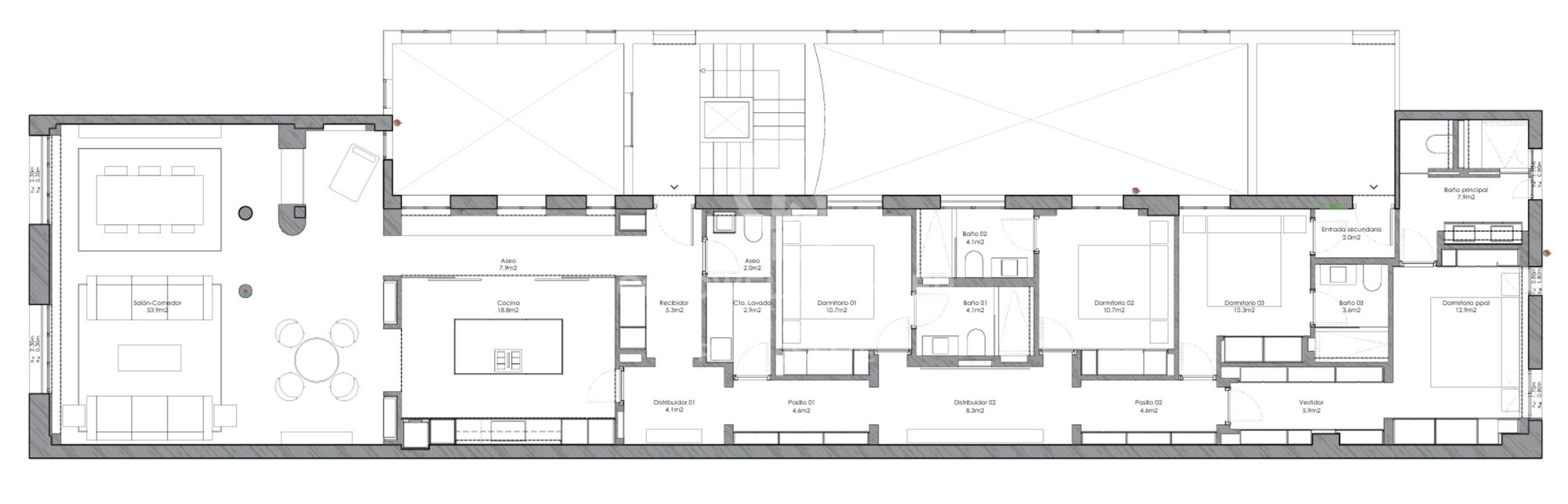
Die Wohnung befindet sich in einem eleganten, klassischen Gebäude und verfügt laut Kataster über eine Fläche von 241 m², drei Meter hohe Decken und eine Süd-Ausrichtung, die den gesamten Wohnraum mit natürlichem Licht durchflutet. Die fehlenden tragenden Wände ermöglichen maximale Gestaltungsfreiheit bei der Raumaufteilung.
Der von SO Arquitectura entworfene Renovierungsvorschlag sieht eine moderne, elegante Raumgestaltung mit drei großzügigen Schlafzimmern mit jeweils eigenem Bad sowie einem separaten Servicezimmer mit Bad vor. Der Wohnbereich ist offen, hell und einladend - ideal für den Alltag und gesellige Stunden. Die Küche ist großzügig geplant und kann entweder offen integriert oder als separater Raum gestaltet werden. Das Wohn-Esszimmer verfügt über eine gemütliche Leseecke.
Das Zentrum der Wohnung bildet ein beeindruckender Kuppelbereich, der die Räume verbindet und dem Objekt architektonischen Charakter verleiht. Das Hauptschlafzimmer besticht durch einen großen begehbaren Kleiderschrank und ein stilvolles Badezimmer mit Dusche und Badewanne. Die Nebenräume teilen sich ein großzügiges Bad mit getrennten Bereichen. Eine separate Waschküche ist ebenfalls vorhanden.
Die verwendeten Materialien und das Design wurden mit größter Sorgfalt ausgewählt und folgen der Philosophie von Sophiq, die Eleganz, Handwerkskunst und zeitgemäßen Luxus vereint. Neben der hervorragenden Lage nahe dem Lázaro-Galdiano-Museum und der Calle Serrano bietet diese Immobilie das Potenzial, zu einem architektonischen Meisterwerk ganz nach Ihren Vorstellungen zu werden.
Eine sichere Investition und eine seltene Gelegenheit in einer der begehrtesten Lagen Madrids. Kontaktieren Sie uns für weitere Informationen und entdecken Sie dieses einzigartige Objekt.
#ref:CBUQ629
Immobilieninformationen
In der Nähe des Strandes / Meeres
- Ausstehend
über Castellana
Paseo de la Castellana: Ein Emblematisches Viertel in Madrid
Paseo de la Castellana ist ein renommierter Stadtteil in Madrid, der sich durch seine architektonische Pracht, seine zentrale Lage und seinen exklusiven Lebensstil auszeichnet. Dieses Gebiet, eingebettet im Herzen der spanischen Hauptstadt, bietet eine außergewöhnliche Kombination aus städtischen Annehmlichkeiten und Raffinesse.
Lebensstil
Das Leben in Paseo de la Castellana steht für Eleganz und Bequemlichkeit. Mit einer majestätischen Architektur und einem lebendigen Stadtleben bietet dieses Viertel eine luxuriöse und kosmopolitische Lebenserfahrung. Die Bewohner genießen eine breite Palette hochwertiger Dienstleistungen wie Gourmetrestaurants, exklusive Boutiquen, Theater, Museen und ein aufregendes Nachtleben.





















