Villa 4 Schlafzimmer Verkauf La Massana

Größe
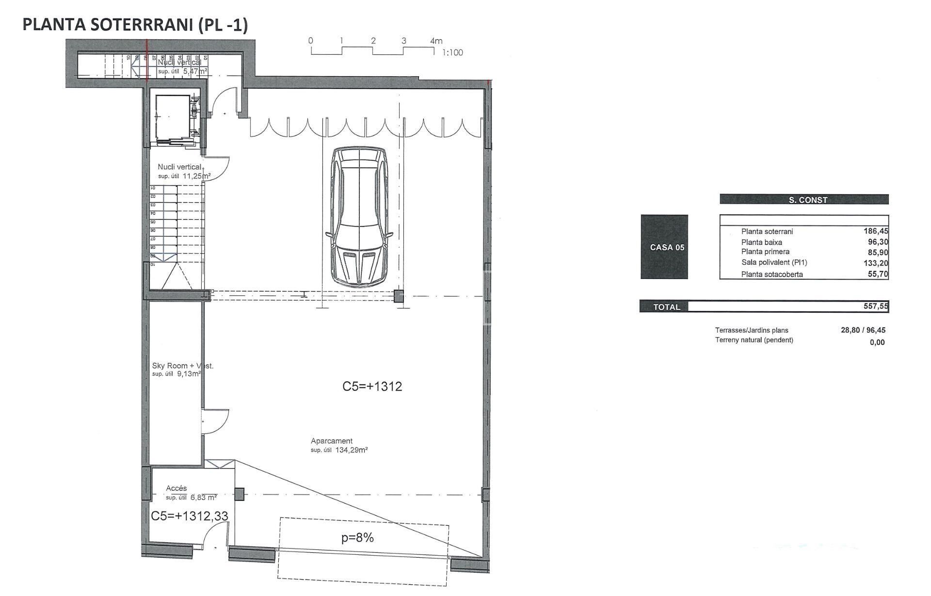
682 m²
Schlafzimmer
4
Bäder
4
Parkplatz
terrasse
Preis
2.490.000 €
GALÍ Real Estate is honored to present Anyòs Heights Residencial. It is a set of 10 luxury eco-homes with a modern design, totally oriented to guarantee the well-being and a high level of comfort to its users. Healthy environments, contact with vegetation, natural materials, privacy, sustainability... They are characteristics that transform houses into true homes, where the concept of 'living' is the protagonist.~~The buildings are made according to passivhaus criteria. Thanks to different project strategies, healthy spaces are achieved with high standards of comfort and very low energy consumption.~~The M-2 houses are rectangular in shape, their main façade faces the magnificent views that this location offers. All houses have large-capacity private parking, a completely open-plan multipurpose room, a large garden, a living area and a spectacular terrace on the upper floor. The homes are very flexible in terms of functional program. The open-plan rooms can be configured depending on the needs of the end user, being able to place programs such as: gym, spa, office... Likewise, the number of rooms and configuration of the kitchens may vary to adapt to the lifestyle of the occupants.~~Very close to the Anyós Park Sports Center 1 minute away, Agora International School 2 minutes away, 5 minutes from Andorra la Vella and 20 minutes from the GRANDVALIRA and VALLNORD ski slopes.~~The promotion will be completed in approximately a year and a half, a maximum of 2 years depending on each house.
#ref:04810/5210

Immobilieninformationen

zone
Principado de Andorra
Gegend
Andorra
standort
La Massana
district
Sispony
Objekt typ
house
Verkauf
2.490.000 €
Referenz
04810/5210
Schlafzimmer
4
Bäder
4
Bebaute Fläche
682 m2
Zustand / Erhaltung
Neu

In der Nähe des Strandes / Meeres

lift
Parkplatz
terrasse
Balkon
Energiezertifikat
  • Ausstehend

über La Massana

La Massana ist eine malerische Stadt im Nordwesten von Andorra, eingebettet in die atemberaubenden Pyrenäen. Sie ist Teil der Pfarrei La Massana, einer von sieben Pfarreien in Andorra. Diese Stadt profitiert von ihrer strategischen Lage, die einen bequemen Zugang zu natürlichen Landschaften und städtischen Annehmlichkeiten bietet.

Die Lage von La Massana bietet mehrere Vorteile. Sie liegt in der Nähe beliebter Skigebiete wie Vallnord und ist somit ein begehrtes Ziel für Wintersportbegeisterte. Darüber hinaus ist die Stadt leicht von Andorra la Vella, der Hauptstadt, zu erreichen, was den Bewohnern Zugang zu zusätzlichen Dienstleistungen, Einkaufsmöglichkeiten und kulturellen Aktivitäten bietet.

Die Lebensqualität in La Massana zeichnet sich durch Sicherheit, saubere Luft und eine ruhige Umgebung aus. Es verfügt über ausgezeichnete Gesundheitseinrichtungen, Bildungseinrichtungen und öffentliche Dienste, die eine komfortable und familienfreundliche Atmosphäre für die Bewohner gewährleisten.

Einwohner und Besucher von La Massana können das ganze Jahr über eine Vielzahl von Aktivitäten genießen. Im Winter bieten die nahegelegenen Skigebiete Skifahren, Snowboarden und andere Wintersportarten. Während der wärmeren Monate eignet sich die Region ideal zum Wandern, Mountainbiken und Erkunden malerischer Wanderwege. Die Stadt veranstaltet auch kulturelle Veranstaltungen, Festivals und Märkte, die lokale Traditionen und Handwerkskunst präsentieren.

Der Immobilienmarkt in La Massana bietet eine Vielzahl von Immobilien, darunter Apartments, Chalets und Reihenhäuser. Die Immobilien verfügen oft über atemberaubende Bergblick und einen einfachen Zugang zu Outdoor-Aktivitäten. Der Markt richtet sich sowohl an Einheimische, die nach Hauptwohnsitzen suchen, als auch an internationale Käufer, die Ferienhäuser oder Investitionsmöglichkeiten in Andorra suchen.

Insgesamt ist La Massana eine charmante Stadt, die natürliche Schönheit, Outdoor-Aktivitäten und moderne Annehmlichkeiten kombiniert und somit ein attraktives Ziel für Einwohner und Immobilienkäufer darstellt, die einen Lebensstil in den Bergen von Andorra suchen.

Weitere Informationen anfordern
Ref.04810/5210
Na Maria Pla, 20. Local 1
AD500, Andorra La Vella
+376 801 700

Related properties

Villa 5 Schlafzimmer Verkauf La Massana
Arinsal-Erts

Villa 5 Schlafzimmer Verkauf La Massana

1.120 m²Größe985 m²Grundstück54 Bäder
Spectacular individual villa for sale in the Principality of Andorra, built on a large plot of 985m2.~ ~ Located in La Massana, in a quiet residential area and close to the center of La Massana, and the cable car that accesses the ski slopes of Vallnord.~ Due to its location and orientation, enjoy sunshine throughout the year and magnificent views of the La Massana valley. It is a recently built house, with top quality finishes, that mixes a modern style with rustic touches.~ ~ It has a total of 1,120 m2 built, divided into 4 floors connected with stairs and elevator. The house is distributed as follows:~ - Floor -2: on this floor we find a cozy wine cellar, perfectly equipped to enjoy dinner with friends, wine tasting and any event with family or friends in a select environment.~ - Floor -1: on this floor there is a large garage, with capacity for 7-8 cars, the hall that gives access to housing, and the recreational area. This recreational area consists of a large multipurpose room, currently equipped for cinema and games room (with billiards and bar type bar that gives an informal and fun touch). In the next room, we find another room currently equipped for gym (with weight machines and pin table). From this floor, you leave to a part of the garden, of 71 m2, where we find an outdoor jacuzzi, from which you can enjoy the spectacular views. Also on this floor we find the machine room of the elevator and geothermal.~ - Floor 1: On this floor we find a large room divided into two spaces: living room and dining room; Both rooms are separated by a cozy designer fireplace. Also on this floor we find a modern and practical kitchen. Both the kitchen and the living room have access to the garden (about 150m2). Access is through large windows, which give all these environments great luminosity and allow you to enjoy the views. On the side of the kitchen there is a glazed room with fireplace / barbecue. And attached to the living room there is also a glazed room that is currently used as a reading room. On this same floor we find a courtesy bathroom, and a suite room.~ - Floor 2: On floor 2 we find the night area of the house, with 3 spacious suite rooms, and a fourth room that currently serves as a washing room and iron. It should be noted the breadth of the bedrooms and bathrooms, which have access to a terrace. The main room has a large dressing room and a spectacular bathroom with shower and jacuzzi.~ ~ The house, designed by a prestigious architect, has an alarm system and a home automation plant. The windows are made of aluminum with triple glass and the blinds are electric. The heating works with geothermal system and is distributed by underfloor heating. The structure has been built with demanding anti-seismic levels.~ ~ It is a dream home, for its location, design and finishes. #ref:01919/5210
4.250.000 €
Reihenhaus 4 Schlafzimmer Verkauf La Massana
Arinsal-Erts

Reihenhaus 4 Schlafzimmer Verkauf La Massana

490 m²Größe44 Bäder
Nestled in a privileged location in Pal, just five minutes from the ski lifts, this newly built chalet offers an extraordinary natural setting. Surrounded by an idyllic mountain stream and expansive green spaces, it is the perfect retreat for those seeking to escape the noise and bustle of the city, while enjoying the tranquility and beauty of the mountains. If you are a skiing enthusiast, this is undoubtedly the ideal home for you.~~Layout across four levels:~Basement Level: Garage with ample space for 4 vehicles, gym, reception area, laundry room, sauna, bathroom, and a spacious hall.~Ground Floor: Elegant entryway, guest bathroom, fully equipped kitchen, living-dining area, utility room, wine cellar, and a beautiful private garden of 176.64m2 a perfect space to relax and enjoy the fresh mountain air.~First Floor: An impressive master suite spanning 64.04m2, featuring a large walkin closet, a luxurious bathroom with both a shower and a bathtub, and a separate toilet area.~Second Floor: Three double bedrooms, one with an ensuite bathroom, plus an additional bathroom and a shared walkin closet.~~This elegant home boasts spacious, lightfilled interiors, thanks to its large windows that frame spectacular mountain and river views from every room. The design harmoniously blends timeless sophistication with the charm of a traditional Pyrenean home, complemented by topquality, stateoftheart finishes. An elevator and a beautifully designed staircase connect all levels, ensuring comfort and convenience throughout.~~If you are looking for an exclusive residence where the serenity of the mountains and proximity to Andorra's best ski slopes come together to create a unique lifestyle, don't hesitate to get in touch with us to arrange a viewing, Gali Properties at your service #ref:04490/5210
4.000.000 €
Haus 4 Schlafzimmer Verkauf La Massana
Arinsal-Erts

Haus 4 Schlafzimmer Verkauf La Massana

571 m²Größe44 Bäder
We are pleased to present the new housing development 'LES LLARS DE LA FONT', an exclusive residential project consisting of 3 elegant houses located in a fantastic enclave in La Massana, in the historic centre of Sispony. Carefully placed in the main street. Their stone and wood façades blend in with the mountain and the village's traditional borders.~They are designed to be energy efficient and use the latest technologies and construction techniques to minimise environmental impact and make responsible use of resources. They are homes that make the most of natural light, are insulated from inclement weather and outside noise, ventilated in a controlled manner, thus obtaining a high level of comfort and wellbeing, as well as excellent air quality and a healthy indoor environment, all while using the minimum amount of energy and therefore achieving the maximum energy rating class A.~~Cal Rossinol, has a constructed area of 571m2 including 153m2 of terraces. In addition, it shares with the other 2 units of the promotion, a garden of 384m2.~It is divided into 3 floors plus basement, communicated by lift and stairs.~- Floor 0: Comprising a large entrance hall leading to the spectacular day area, comprising a spacious living-dining room with a fully-equipped open-plan designer kitchen. It also has a guest toilet. This floor is designed to enjoy with family and friends and to give a feeling of warmth and spaciousness, the space has large windows that guarantee the entry of sun and natural light, through its first terrace.~- Floor -1: Composed of the sleeping area. It consists of 3 large double bedrooms, all of them en suite, with fitted wardrobes and access to the second terrace of the house.~- Floor -2: for this floor there are two options of distribution~ A: a Master suite with dressing room and a complete bathroom with a marvellous spa area. ~ B: a suite with dressing room and bathroom and a multi-purpose room that can be used as a gym, living room...~ In both options, always with access to the third terrace of the house. Also on this floor, there is a comfortable laundry area.~- Floor - 3: Here we find the garage with capacity for 4 cars. On this floor there is also a storage room.~~All the rooms of the house have direct connection with three large south-east facing terraces that guarantee an enormous amount of sunshine and excellent panoramic views.~The homes have a rainwater reuse system, and domestic hot water is produced by means of a highly efficient aerothermal system.~As for the qualities of the development, natural materials of proximity are used, such as stone masonry walls and slate tiles, or wooden roofing and carpentry, avoiding the use of polluting or toxic materials. ~~Highlights:~- High-performance exterior carpentry with concealed leaf and triple low-emission glazing. Armoured access door and fixed side panel in natural wood veneer with oak finish and automated sectional door with remote control in garages.~- Terraces with non-slip natural stone paving slabs, natural stone or coated steel railings. Garden planters and rust steel handrails on terraces. Natural stone masonry garden fences.~ High quality interior cladding, paint, natural stone, steel, wood or rectified porcelain stoneware according to design and decoration.~- General flooring of wood flooring, or rectified porcelain stoneware in bathrooms and polished concrete with epoxy resin in the garage.~- Interior woodwork in oak veneer with matt stainless steel handles and fittings. Fitted wardrobes with worktop vessels and doors and fronts veneered to match the joinery, with recast handle.~- Fully fitted kitchen with high quality Bosch appliances, large Franke stainless steel sink and Grohe pull-out mixer tap. High-end base units and tall units with soft close and heavy duty drawers, model ONE08 finished in Ernestomeda. Worktop, front and shelf in artificial marble stone.~- Bathrooms with high quality materials and modern and functional design. Shower with shower enclosure made of artificial stone or, depending on the option chosen, a bathtub with sauna is also available.~- The layout of the lower floor is flexible and allows the entire floor to be converted into a fantastic 60m2 suite or to combine a bedroom with a spacious multipurpose room. The house can thus be adapted to different needs and ways of living.~- Stuv model C.1 integrated fireplace insert~- Ski locker with locker, bench and boot warmer~- Low-maintenance landscaping, consisting of shrubs and hydroseeding~- Silent lift through the house and lift for vehicles to access the garage. ~- Pre-installation for electric vehicle charging. Bicycle rack including charging point. Photovoltaic installation~- Jung Smart Home home automation system including the connection gateway with aerothermics and internet connectivity, with integrated control displays in the video door entry system. Garage door control, lighting, air conditioning and hot water production, security and anti-intrusion with movement detectors, alarm and video surveillance.~- Underfloor air-conditioning with underfloor heating that provides a pleasant warmth at a low, evenly distributed temperature; and ventiloconventors that cool the air quickly. Both units are concealed and are powered by aerothermal energy. They also have an indoor air renewal system with heat recovery and filtering of allergens and pollutants.~~Do not hesitate to contact us for any further information you may require.~ #ref:04246/5210
3.900.000 €
Haus 4 Schlafzimmer Verkauf La Massana
Arinsal-Erts

Haus 4 Schlafzimmer Verkauf La Massana

547 m²Größe44 Bäder
We are pleased to present the new housing development 'LES LLARS DE LA FONT', an exclusive residential project consisting of 3 elegant houses located in a fantastic enclave in La Massana, in the historic centre of Sispony. Carefully placed in the main street. Their stone and wood façades blend in with the mountain and the village's traditional borders.~They are designed to be energy efficient and use the latest technologies and construction techniques to minimise environmental impact and make responsible use of resources. They are homes that make the most of natural light, are insulated from inclement weather and outside noise, ventilated in a controlled manner, thus obtaining a high level of comfort and wellbeing, as well as excellent air quality and a healthy indoor environment, all while using the minimum amount of energy and therefore achieving the maximum energy rating class A.~~Cal Blauet, has a constructed area of 547m2 including 116m2 of terraces. In addition, it shares with the other 2 units of the promotion, a garden of 384m2.~It is divided into 3 floors plus basement, communicated by lift and stairs.~- Floor 0: Comprising a large entrance hall leading to the spectacular day area, comprising a spacious living-dining room with a fully-equipped open-plan designer kitchen. It also has a guest toilet. This floor is designed to enjoy with family and friends and to give a feeling of warmth and spaciousness, the space has large windows that guarantee the entry of sun and natural light, through its first terrace.~- Floor -1: Composed of the sleeping area. It consists of 3 large double bedrooms, all of them en suite, with fitted wardrobes and access to the second terrace of the house.~- Floor -2: for this floor there are two options of distribution~ A: a Master suite with dressing room and a complete bathroom with a marvellous spa area. ~ B: a suite with dressing room and bathroom and a multi-purpose room that can be used as a gym, living room...~ In both options, always with access to the third terrace of the house. Also on this floor, there is a comfortable laundry area.~- Floor - 3: Here we find the garage with capacity for 4 cars. On this floor there is also a storage room.~~All the rooms of the house have direct connection with three large south-east facing terraces that guarantee an enormous amount of sunshine and excellent panoramic views.~The homes have a rainwater reuse system, and domestic hot water is produced by means of a highly efficient aerothermal system.~As for the qualities of the development, natural materials of proximity are used, such as stone masonry walls and slate tiles, or wooden roofing and carpentry, avoiding the use of polluting or toxic materials. ~~Highlights:~- High-performance exterior carpentry with concealed leaf and triple low-emission glazing. Armoured access door and fixed side panel in natural wood veneer with oak finish and automated sectional door with remote control in garages.~- Terraces with non-slip natural stone paving slabs, natural stone or coated steel railings. Garden planters and rust steel handrails on terraces. Natural stone masonry garden fences.~ High quality interior cladding, paint, natural stone, steel, wood or rectified porcelain stoneware according to design and decoration.~- General flooring of wood flooring, or rectified porcelain stoneware in bathrooms and polished concrete with epoxy resin in the garage.~- Interior woodwork in oak veneer with matt stainless steel handles and fittings. Fitted wardrobes with worktop vessels and doors and fronts veneered to match the joinery, with recast handle.~- Fully fitted kitchen with high quality Bosch appliances, large Franke stainless steel sink and Grohe pull-out mixer tap. High-end base units and tall units with soft close and heavy duty drawers, model ONE08 finished in Ernestomeda. Worktop, front and shelf in artificial marble stone.~- Bathrooms with high quality materials and modern and functional design. Shower with shower enclosure made of artificial stone or, depending on the option chosen, a bathtub with sauna is also available.~- The layout of the lower floor is flexible and allows the entire floor to be converted into a fantastic 60m2 suite or to combine a bedroom with a spacious multipurpose room. The house can thus be adapted to different needs and ways of living.~- Stuv model C.1 integrated fireplace insert~- Ski locker with locker, bench and boot warmer~- Low-maintenance landscaping, consisting of shrubs and hydroseeding~- Silent lift through the house and lift for vehicles to access the garage. ~- Pre-installation for electric vehicle charging. Bicycle rack including charging point. Photovoltaic installation~- Jung Smart Home home automation system including the connection gateway with aerothermics and internet connectivity, with integrated control displays in the video door entry system. Garage door control, lighting, air conditioning and hot water production, security and anti-intrusion with movement detectors, alarm and video surveillance.~- Underfloor air-conditioning with underfloor heating that provides a pleasant warmth at a low, evenly distributed temperature; and ventiloconventors that cool the air quickly. Both units are concealed and are powered by aerothermal energy. They also have an indoor air renewal system with heat recovery and filtering of allergens and pollutants.~~Do not hesitate to contact us for any further information you may require.~ #ref:04247/5210
3.800.000 €
Haus 4 Schlafzimmer Verkauf La Massana
Arinsal-Erts

Haus 4 Schlafzimmer Verkauf La Massana

559 m²Größe44 Bäder
We are pleased to present the new housing development 'LES LLARS DE LA FONT', an exclusive residential project consisting of 3 elegant houses located in a fantastic enclave in La Massana, in the historic centre of Sispony. Carefully placed in the main street. Their stone and wood façades blend in with the mountain and the village's traditional borders.~They are designed to be energy efficient and use the latest technologies and construction techniques to minimise environmental impact and make responsible use of resources. They are homes that make the most of natural light, are insulated from inclement weather and outside noise, ventilated in a controlled manner, thus obtaining a high level of comfort and wellbeing, as well as excellent air quality and a healthy indoor environment, all while using the minimum amount of energy and therefore achieving the maximum energy rating class A.~~Cal Tallareta, has a constructed area of 559m2 including 105m2 of terraces.. In addition, it shares with the other 2 units of the promotion, a garden of 384m2.~It is divided into 3 floors plus basement, communicated by lift and stairs.~- Floor 0: Comprising a large entrance hall leading to the spectacular day area, comprising a spacious living-dining room with a fully-equipped open-plan designer kitchen. It also has a guest toilet. This floor is designed to enjoy with family and friends and to give a feeling of warmth and spaciousness, the space has large windows that guarantee the entry of sun and natural light, through its first terrace.~- Floor -1: Composed of the sleeping area. It consists of 3 large double bedrooms, all of them en suite, with fitted wardrobes and access to the second terrace of the house.~- Floor -2: for this floor there are two options of distribution~ A: a Master suite with dressing room and a complete bathroom with a marvellous spa area. ~ B: a suite with dressing room and bathroom and a multi-purpose room that can be used as a gym, living room...~ In both options, always with access to the third terrace of the house. Also on this floor, there is a comfortable laundry area.~- Floor - 3: Here we find the garage with capacity for 4 cars. On this floor there is also a storage room.~~All the rooms of the house have direct connection with three large south-east facing terraces that guarantee an enormous amount of sunshine and excellent panoramic views.~The homes have a rainwater reuse system, and domestic hot water is produced by means of a highly efficient aerothermal system.~As for the qualities of the development, natural materials of proximity are used, such as stone masonry walls and slate tiles, or wooden roofing and carpentry, avoiding the use of polluting or toxic materials. ~~Highlights:~- High-performance exterior carpentry with concealed leaf and triple low-emission glazing. Armoured access door and fixed side panel in natural wood veneer with oak finish and automated sectional door with remote control in garages.~- Terraces with non-slip natural stone paving slabs, natural stone or coated steel railings. Garden planters and rust steel handrails on terraces. Natural stone masonry garden fences.~ High quality interior cladding, paint, natural stone, steel, wood or rectified porcelain stoneware according to design and decoration.~- General flooring of wood flooring, or rectified porcelain stoneware in bathrooms and polished concrete with epoxy resin in the garage.~- Interior woodwork in oak veneer with matt stainless steel handles and fittings. Fitted wardrobes with worktop vessels and doors and fronts veneered to match the joinery, with recast handle.~- Fully fitted kitchen with high quality Bosch appliances, large Franke stainless steel sink and Grohe pull-out mixer tap. High-end base units and tall units with soft close and heavy duty drawers, model ONE08 finished in Ernestomeda. Worktop, front and shelf in artificial marble stone.~- Bathrooms with high quality materials and modern and functional design. Shower with shower enclosure made of artificial stone or, depending on the option chosen, a bathtub with sauna is also available.~- The layout of the lower floor is flexible and allows the entire floor to be converted into a fantastic 60m2 suite or to combine a bedroom with a spacious multipurpose room. The house can thus be adapted to different needs and ways of living.~- Stuv model C.1 integrated fireplace insert~- Ski locker with locker, bench and boot warmer~- Low-maintenance landscaping, consisting of shrubs and hydroseeding~- Silent lift through the house and lift for vehicles to access the garage. ~- Pre-installation for electric vehicle charging. Bicycle rack including charging point. Photovoltaic installation~- Jung Smart Home home automation system including the connection gateway with aerothermics and internet connectivity, with integrated control displays in the video door entry system. Garage door control, lighting, air conditioning and hot water production, security and anti-intrusion with movement detectors, alarm and video surveillance.~- Underfloor air-conditioning with underfloor heating that provides a pleasant warmth at a low, evenly distributed temperature; and ventiloconventors that cool the air quickly. Both units are concealed and are powered by aerothermal energy. They also have an indoor air renewal system with heat recovery and filtering of allergens and pollutants.~~Do not hesitate to contact us for any further information you may require.~ #ref:04248/5210
3.850.000 €
Coldwell Banker Andorra
Na Maria Pla, 20. Local 1
AD500, Andorra La Vella
De 9:00 a 19:00 h.
Newsletter

Finden Sie Ihr Zuhause im Ausland mit Unterstützung des Coldwell Banker® Netzwerks

Besuchen Sie unsere internationalen Websites und finden Sie Ihre Wunschimmobilie an den exklusivsten Orten

Wir verwenden unsere eigenen Cookies und Cookies von Drittanbietern, um die Sicherheit unserer Website zu gewährleisten und ihren Inhalt zu personalisieren. Ebenso verwenden wir Cookies, um Daten über Ihre Navigation zu messen und zu erhalten und um Werbung an Ihren Geschmack und Ihre Vorlieben anzupassen. Drücken Sie die Schaltfläche "Alle akzeptieren", um zu bestätigen, dass Sie die angezeigten Informationen gelesen und akzeptiert haben. Um diese Cookies zu verwalten oder zu deaktivieren, klicken Sie auf "Einstellungen". Weitere Informationen zu Cookies erhalte Sie in unserer Cookie-Richtlinie.
Cookies ändern
Technik und Funktional Immer aktiv
Diese Website verwendet eigene Cookies, um Informationen zu sammeln, um unsere Dienste zu verbessern. Wenn Sie weiter surfen, akzeptieren Sie deren Installation. Der Benutzer hat die Möglichkeit, seinen Browser zu konfigurieren und auf Wunsch zu verhindern, dass er auf seiner Festplatte installiert wird, obwohl er bedenken muss, dass dies zu Schwierigkeiten beim Navigieren auf der Website führen kann.
Analytik und Anpassung
Sie ermöglichen die Beobachtung und Analyse des Verhaltens der Nutzer dieser Website. Die durch diese Art von Cookies gesammelten Informationen werden verwendet, um die Aktivität des Webs zu messen, um Benutzernavigationsprofile zu erstellen, um basierend auf der Analyse der Nutzungsdaten der Benutzer des Dienstes Verbesserungen einzuführen. Sie ermöglichen es uns, die Präferenzinformationen des Benutzers zu speichern, um die Qualität unserer Dienstleistungen zu verbessern und durch empfohlene Produkte ein besseres Erlebnis zu bieten.
Marketing und Publizität
Diese Cookies werden verwendet, um Informationen über die Präferenzen und persönlichen Entscheidungen des Benutzers durch die kontinuierliche Beobachtung seiner Surfgewohnheiten zu speichern. Dank ihnen können wir die Surfgewohnheiten auf der Website kennen und Werbung in Bezug auf das Surfprofil des Benutzers anzeigen.