Hoch gelegen, sonnig, hochwertig renoviert, 3 Schlafzimmer, 3 Badezimmer
Coldwell Banker Prestige präsentiert diese hervorragende Immobilie im Herzen von Barcelona, im begehrten Stadtteil Dreta de l'Eixample, neben der Plaza Urquinaona und nur 100 Meter vom Paseo de Gracia und der Plaza Catalunya entfernt.
Die Wohnung befindet sich in einem eleganten Altbau mit Aufzug und positiv bestandener Gebäudeprüfung (ITE) im echten sechsten Stockwerk, was für viel Tageslicht, Ruhe und freie Ausblicke sorgt. Die Südwest-Ausrichtung ermöglicht direkten Sonneneinfall über einen Großteil des Tages.
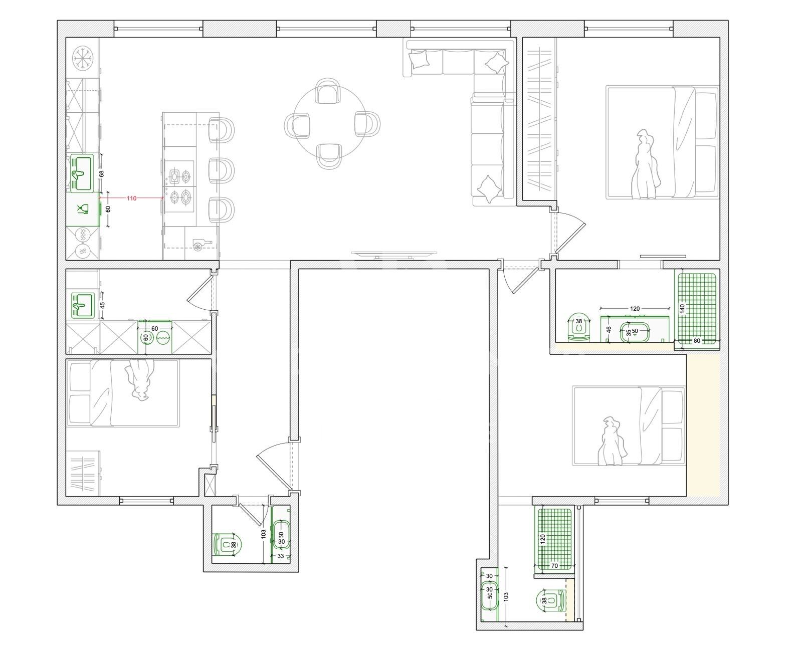
Aufteilung
Die Immobilie wurde so konzipiert, dass sie Funktionalität und Komfort in jedem Bereich bietet:
Großzügiger Wohn- und Essbereich mit offener Küche und moderner Kochinsel
Insgesamt 3 Schlafzimmer
Hauptsuite mit eigenem Bad
Zweites Schlafzimmer ebenfalls mit En-Suite-Bad
Insgesamt 3 voll ausgestattete Badezimmer
Separater Hauswirtschaftsraum
Der veröffentlichte Grundriss entspricht dem geplanten Endzustand der Wohnung.
Hochwertige Kernsanierung
Die Wohnung befindet sich derzeit in umfassender Sanierung, deren Fertigstellung für August 2026 vorgesehen ist. Das Projekt umfasst hochwertige Ausstattungen, Premium-Materialien und ein zeitgemäßes Design, das den herrschaftlichen Charakter des Gebäudes respektiert.
Die beigefügten Bilder zeigen andere, bereits fertiggestellte Projekte desselben Bauträägers und veranschaulichen das erwartete Qualitäts- und Stilniveau.
Interessenten haben zudem die Möglichkeit, bereits abgeschlossene Projekte zu besichtigen, um sich persönlich von der Ausführungsqualität zu überzeugen.
Ein besonderer Vorteil: Bei einer frühzeitigen Reservierung besteht die Möglichkeit, Ausstattungen und Details individuell anzupassen.
Eine einmalige Gelegenheit, in einer der exklusivsten und begehrtesten Lagen Barcelonas zu wohnen oder zu investieren, umgeben von ikonischer Architektur, renommierten Geschäften, exzellenter Gastronomie und hervorragender Infrastruktur.
Für weitere Informationen oder zur Vereinbarung eines Besichtigungstermins kontaktieren Sie bitte Coldwell Banker Prestige.
Referenz: CBES2856
#ref:CBES2856
Immobilieninformationen
In der Nähe des Strandes / Meeres
- Ausstehend
über Dreta de l'Eixample
Das strahlende Juwel der Dreta de l'Eixample in Barcelona strahlt einen besonderen Charme aus, der diejenigen fasziniert, die sich durch ihre von Geschichte und Moderne erfüllten Straßen wagen. Dieses Gebiet, das sich im Herzen der Stadt befindet, bietet eine einzigartige Erfahrung, die klassische Eleganz mit einer lebendigen zeitgenössischen Szene verbindet.
Die Ursprünge der Dreta de l'Eixample sind mit der städtischen Expansion Barcelonas im 19. Jahrhundert verwoben, und seitdem hat es sich zu einem Schmelztiegel von architektonischen Stilen entwickelt, die sein reiches Erbe widerspiegeln. Ikonoische Gebäude wie die Casa de les Punxes und die Casa Calvet zeugen von der Meisterschaft der Architekten, die ihren Stempel in diesem Teil der Stadt hinterlassen haben.
Dreta de l'Eixample ist nicht nur eine architektonische Schaufensterfront, sondern beherbergt auch einen lebendigen kulturellen Puls. Zeitgenössische Kunstgalerien, Designgeschäfte und charmante Cafés säumen seine Straßen und schaffen eine kosmopolitische Atmosphäre, die zum Erkunden jeder Ecke einlädt.



























































