Piso exterior de 1 habitación en Colón, Madrid
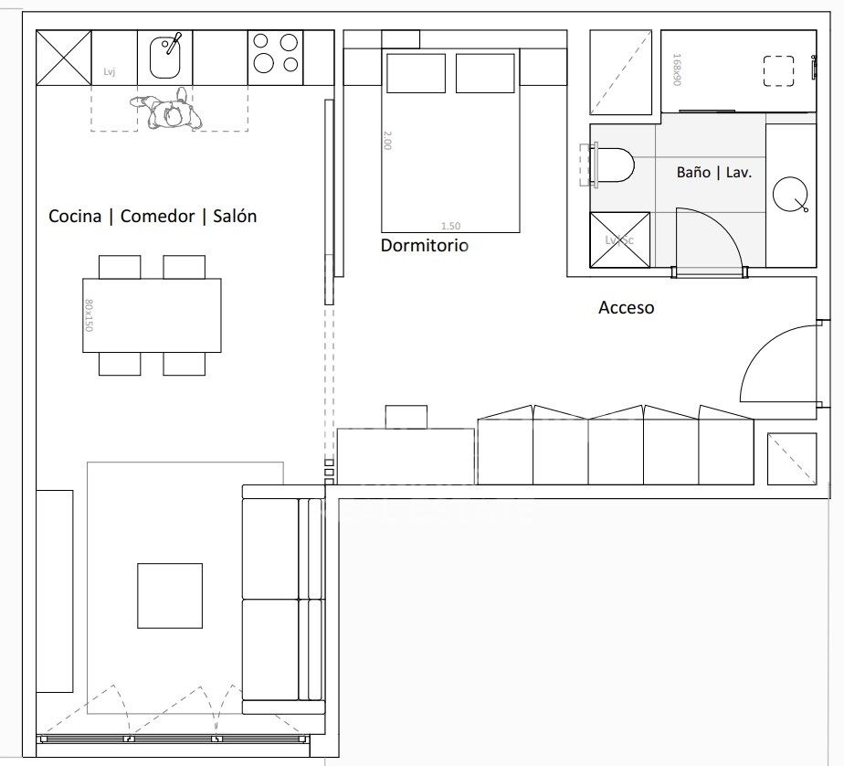
Situado en una décima planta, este elegante apartamento de 71 m² construidos (54 m² útiles) ofrece una experiencia residencial luminosa y sofisticada en pleno centro de Madrid. La vivienda dispone de un dormitorio y una excelente orientación sur, lo que garantiza una entrada constante de luz natural y una atmósfera cálida y acogedora durante todo el día.
Su ubicación privilegiada permite disfrutar de vistas despejadas y de la tranquilidad que aporta la altura, sin renunciar a la vibrante vida urbana que caracteriza al barrio de Justicia.
Con un precio de 950.000 € (13.380 €/m²), esta propiedad representa una oportunidad sólida tanto para residencia habitual como para inversión patrimonial en una de las zonas con mayor estabilidad y demanda de la capital.
El entorno de Colón y Salesas es sinónimo de prestigio, cultura y estilo de vida cosmopolita. A pocos minutos se encuentran referentes gastronómicos como Ten con Ten y Amazónico, así como coctelerías icónicas como Salmon Guru. La oferta cultural es igualmente destacada, con la cercanía a la Plaza de Colón y al Museo Arqueológico Nacional, además de galerías de arte contemporáneo y espacios creativos que definen el carácter sofisticado del barrio.
La proximidad al eje de Serrano y al Barrio de Salamanca añade un valor diferencial, con acceso inmediato a boutiques de lujo, instituciones culturales y edificios representativos que consolidan la zona como uno de los enclaves más cotizados y consolidados de Madrid.
Una vivienda que combina altura, luz, ubicación estratégica y exclusividad, ideal para quienes buscan una propiedad singular en el corazón más elegante y dinámico de la ciudad.
#ref:CBUQ1305
Detalles de la propiedad
Características de la propiedad
- En trámite
Acerca de Justicia - Chueca
El barrio de Justicia - Chueca, en pleno corazón de Madrid, dentro del distrito Centro de la Comunidad de Madrid, es una de las zonas más vibrantes, cosmopolitas y demandadas para vivir. Su ubicación privilegiada, su rica oferta cultural, gastronómica y de ocio, junto a una excelente conexión con toda la ciudad, hacen de Justicia-Chueca un lugar perfecto para quienes buscan calidad de vida urbana, estilo y diversidad.
Conocido por su ambiente inclusivo y moderno, ofrece actividades para todos los gustos: desde galerías de arte y teatros hasta tiendas de diseño, terrazas y vida nocturna. En cuanto al mercado inmobiliario, Justicia-Chueca cuenta con pisos reformados de lujo, viviendas con encanto histórico y una fuerte demanda tanto de residentes nacionales como internacionales, lo que lo convierte en una zona ideal para invertir o establecerse.















