Charmantes Haus für zwei Familien
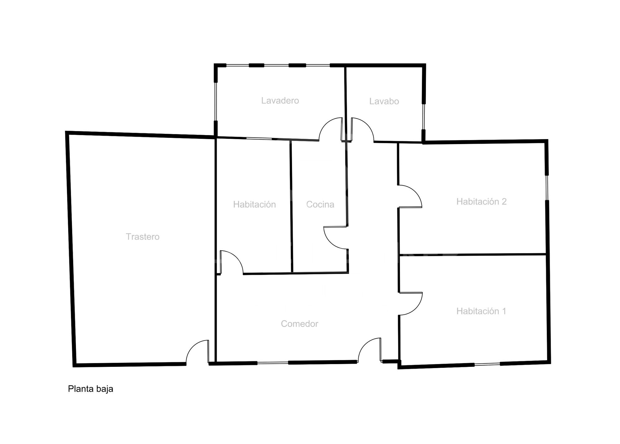
Das Haus, das auf 2 Etagen gebaut wurde, verfügt über zwei komplette Häuser, eines pro Etage, mit unabhängigem Zugang zu ihnen. Der Zugang zum Grundstück von der Straße aus ist für beide Häuser üblich und verfügt über einen geräumigen Parkplatz. Darüber hinaus teilen sie sich, wie wir angekündigt haben, einen sehr großen und flachen Gartenbereich, in dem sich unter anderem ein schöner Pool befindet.
Die Konstruktion ist im Wohnzimmer nach Süden ausgerichtet, was viel Licht in die Räume bringt, und beide Häuser haben eine eigene Veranda. Die Veranden sind ideale Orte, um sie im Sommer zu genießen, da sie kühle Orte sind, um einen Chill-out- oder Essbereich zu platzieren, in dem Sie den Garten genießen können, während Sie sich ausruhen und abkühlen. Der Garten verfügt auch über Grillmöglichkeiten und einen sehr großen Abstellraum.
Jedes Haus hat seine eigene Aufteilung, aber beide haben ein Wohnzimmer mit Kamin, Küche, 3 Schlafzimmer und 1 Badezimmer.
Verpassen Sie nicht die Gelegenheit, dieses charmante Haus im ruhigen Ort La Floresta kennenzulernen, nur wenige Minuten von Sant Cugat und dem Bahnhof entfernt, der schnell mit Barcelona verbunden ist.
#ref:CBMT4641
Immobilieninformationen
-
A
92-100 -
B
81-91 -
C
69-80 -
D
55-68 -
E
39-54 -
F
21-38 -
G
1-20
über Sant Cugat del Vallès
Suchen Sie den besten Ort, um inmitten der Natur zu leben, nur wenige Minuten von Barcelona entfernt? Das Leben in Sant Cugat del Vallés ist zur bevorzugten Option für Familien geworden, die eine natürliche Umgebung voller Ruhe genießen möchten, ohne auf eine gute Anbindung an die Großstadt zu verzichten.
Eingerahmt von den Bergen Collserola und Galliners verfügt Sant Cugat del Vallés über mehr als 8.000 Hektar geschützten Naturraums, in dem man der Umweltverschmutzung und der Hektik entfliehen und das Gefühl haben kann, dass die Zeit stehen geblieben ist.
Der Bezirk von Sant Cugat
Sant Cugat setzt sich aus 5 Bezirken zusammen: Sant Cugat núcleo, Mirasol, Valldoreix, La Floresta und Las Planas. Zu den herausragendsten Gegenden gehören die Altstadt von Sant Cugat, der Stadtteil Eixample, das exklusive Golfgebiet Can Trabal, der Parc Central und die Wohnsiedlung Mira-Sol.
































