- Spanien
- Madrid provincia
- Madrid ciudad
- Madrid
- Centro
- Sol
Renovierte Außenwohnung im Zentrum von Madrid
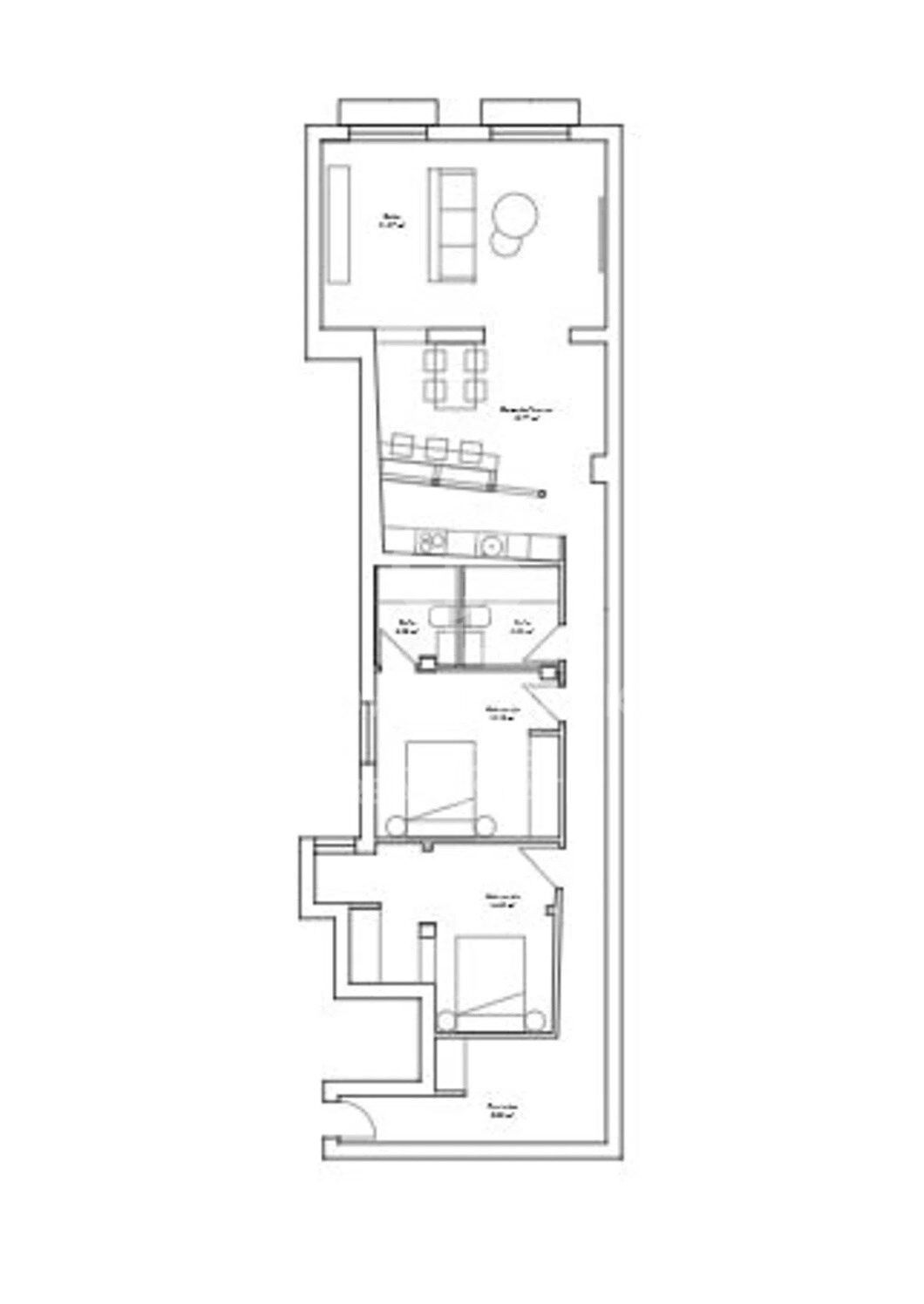
Mit 124 m² bietet das Gebäude eine komfortable und funktionale Grundrissanlage, die Geräumigkeit und Helligkeit vereint, mit einem großzügigen Wohnzimmer in natürlichem Licht, einer integrierten Küche mit einem Essbereich, der perfekt für den täglichen Gebrauch gestaltet ist, zwei Schlafzimmern und zwei voll ausgestatteten Badezimmern, eines davon mit eigenem Bad.
Die Renovierung wurde detailliert durchgeführt, wobei auf hochwertige Materialien und Oberflächen sowie ein zeitgemäßes, zeitloses Design gesetzt wird, das Ästhetik, Wärme und Praktikabilität in Einklang bringt. Die großen Fenster ermöglichen den ganzen Tag über einen hervorragenden Tageslichteingang und schaffen gemütliche, elegante und besonders angenehme Räume zum Leben.
Da es sich um einen Direktverkauf der Immobilie handelt, ist ein transparenterer, geschlossenerer und agilerer Prozess garantiert. Es ist eine ideale Gelegenheit sowohl als dauerhaftes Zuhause als auch für Investitionen in einem der begehrtesten und konsolidiertesten Gebiete der Hauptstadt.
Neben Sol zu wohnen bedeutet, eine absolut privilegierte Lage zu genießen, nur wenige Meter von Puerta del Sol entfernt, dem wahren Nervenzentrum Madrids. Das Gebiet bietet alle Arten von Dienstleistungen, darunter Geschäfte, Restaurants, Theater, Museen sowie ein breites kulturelles und gastronomisches Angebot sowie eine ausgezeichnete Anbindung an den öffentlichen Nahverkehr mit U-Bahn, Bussen und Vorortzügen, die den Zugang zu jedem Punkt in der Stadt erleichtern.
In dieser Umgebung kann man die authentische Madrider Atmosphäre atmen, in der Geschichte, Kultur und Dynamik einen einzigartigen Ort zum Leben und Investieren bieten.
Die Immobilie befindet sich im dritten Stock eines repräsentativen Gebäudes mit einem Aufzug und verfügt über einen Abstellraum, zwei Schlafzimmer, zwei Badezimmer - eines mit eigenem Bad - sowie eine brandneue, umfassende Renovierung, die sie bezugsfertig macht.
#ref:CBUQ1330
Immobilieninformationen
In der Nähe des Strandes / Meeres
- Ausstehend
über Sol
Sol, das pulsierende Herz von Madrid. Dieses ikonische Viertel im historischen Zentrum der Stadt ist bekannt für seine Energie, Vitalität und seine Rolle als Treffpunkt für Einheimische und Besucher gleichermaßen. Von Coldwell Banker Spanien laden wir Sie ein, die Wunder des Lebens in Sol zu entdecken, wo Geschichte und Moderne in einer Umgebung voller Aktivität miteinander verschmelzen.
Plaza Mayor und Historisches Umfeld: Sol beherbergt die ikonische Plaza Mayor, einen Ort, an dem die Geschichte lebendig wird. Die Kopfsteinpflastergassen, die alte Architektur und die Reiterstatue von Felipe III schaffen eine charmante Umgebung. Die Plaza Mayor ist die Bühne für kulturelle Veranstaltungen, Festivals und traditionelle Märkte.
Puerta del Sol: Puerta del Sol, der Nullpunkt der spanischen Fernstraßen, ist das Epizentrum der Stadt und ein symbolischer Orientierungspunkt. Hier befindet sich die berühmte Uhr von Puerta del Sol, und es ist der Ort, an dem sich die Madrilenen versammeln, um das Neue Jahr zu feiern.
Einkaufsmöglichkeiten und Stadtleben: Sol ist ein Paradies für Shopping- und Stadtleben-Enthusiasten. Straßen wie Preciados und Carmen bieten eine Vielzahl von Geschäften, Boutiquen und Kaufhäusern. Das geschäftige Leben der Gegend mit seinen Restaurants, Cafés und Theatern schafft eine lebendige Atmosphäre.
Museen und Kultur: Die Nähe von Sol zu den wichtigsten Museen und kulturellen Sehenswürdigkeiten von Madrid macht es zu einem privilegierten Ort. Das Kunst-Dreieck, bestehend aus dem Prado-Museum, dem Reina Sofia-Museum und dem Thyssen-Bornemisza-Museum, ist zu Fuß erreichbar und bietet Zugang zu künstlerischen Meisterwerken.
Verkehr und Verbindungen: Sol verfügt über ausgezeichnete Verkehrsanbindungen, einschließlich Bahnhöfen und U-Bahn-Stationen. Dies erleichtert die Navigation in der Stadt und die Erkundung anderer Viertel von Madrid. Die Zugänglichkeit macht Sol zu einem idealen Ausgangspunkt, um die Vielfalt der Hauptstadt zu entdecken.
Von seiner reichen Geschichte bis zu seinem lebendigen Stadtleben präsentiert sich Sol als ein Ort, an dem Vergangenheit und Gegenwart miteinander verschmelzen und eine einzigartige Umgebung schaffen, die den dynamischen Geist von Madrid widerspiegelt.





























