Renovierungsbedürftige Wohnung in Premiumlage neben der Plaça Francesc Macià
Diese Wohnung in der oberen Etage besticht durch ihre doppelte Ausrichtung und einen Balkon mit schönem Blick auf die Avinguda Josep Tarradellas, was ihr den ganzen Tag über viel natürliches Licht verleiht.
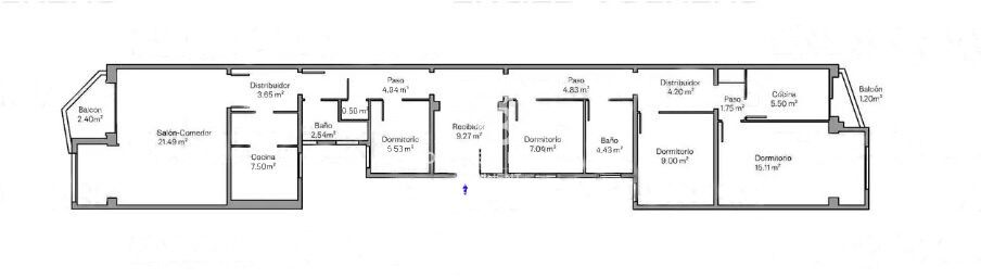
Derzeit besteht die Immobilie aus 6 Schlafzimmern (4 Doppel- und 2 Einzelzimmern), einer separaten Küche und 2 voll ausgestatteten Badezimmern. Das Hauptwohnzimmer hat direkten Zugang zum Balkon und bietet einen angenehmen Außenbereich. Die Aufteilung trennt klar zwischen Tages- und Nachtbereichen, mit Räumen zur Vorder- und Rückseite des Gebäudes.
Diese renovierungsbedürftige Wohnung ist ideal für Familien, die sich ihr eigenes Zuhause in bester Lage schaffen möchten, ebenso wie für Investoren, die nach einer Immobilie mit hohem Wertsteigerungspotenzial und vielfältigen Umgestaltungsmöglichkeiten suchen.
Hervorragende Lage: La Nova Esquerra de l'Eixample ist ein etablierter Wohnbezirk mit allen notwendigen Dienstleistungen, wie Krankenhäusern (z.B. Sagrat Cor), Einkaufszentren wie L'Illa, Nahversorgern, öffentlichen und privaten Schulen, kulturellen und sportlichen Einrichtungen sowie einem breiten gastronomischen Angebot.
Die Anbindung an den öffentlichen Nahverkehr ist hervorragend, mit nahegelegenen Metrostationen (Linie 5), Bus- und Straßenbahnhaltestellen.
Wenn Sie eine Wohnung im Zentrum Barcelonas suchen, die Sie nach Ihren Vorstellungen renovieren können, ist diese Immobilie eine ideale Option, um ihr großes Potenzial voll auszuschöpfen. Kontaktieren Sie uns für weitere Informationen und zur Vereinbarung eines Besichtigungstermins.
#ref:CBE01154
Immobilieninformationen
In der Nähe des Strandes / Meeres
-
A
92-100 -
B
81-91 -
C
69-80 -
D
55-68 -
E
39-54 -
F
21-38 -
G
1-20
über Dreta de l'Eixample
Das strahlende Juwel der Dreta de l'Eixample in Barcelona strahlt einen besonderen Charme aus, der diejenigen fasziniert, die sich durch ihre von Geschichte und Moderne erfüllten Straßen wagen. Dieses Gebiet, das sich im Herzen der Stadt befindet, bietet eine einzigartige Erfahrung, die klassische Eleganz mit einer lebendigen zeitgenössischen Szene verbindet.
Die Ursprünge der Dreta de l'Eixample sind mit der städtischen Expansion Barcelonas im 19. Jahrhundert verwoben, und seitdem hat es sich zu einem Schmelztiegel von architektonischen Stilen entwickelt, die sein reiches Erbe widerspiegeln. Ikonoische Gebäude wie die Casa de les Punxes und die Casa Calvet zeugen von der Meisterschaft der Architekten, die ihren Stempel in diesem Teil der Stadt hinterlassen haben.
Dreta de l'Eixample ist nicht nur eine architektonische Schaufensterfront, sondern beherbergt auch einen lebendigen kulturellen Puls. Zeitgenössische Kunstgalerien, Designgeschäfte und charmante Cafés säumen seine Straßen und schaffen eine kosmopolitische Atmosphäre, die zum Erkunden jeder Ecke einlädt.
























































