Casa adosada a estrenar en Bon Pastor
¿Por qué te encantará?
Reforma integral reciente con renovación total de instalaciones eléctricas, fontanería, sistema de calefacción y aislamiento térmico.
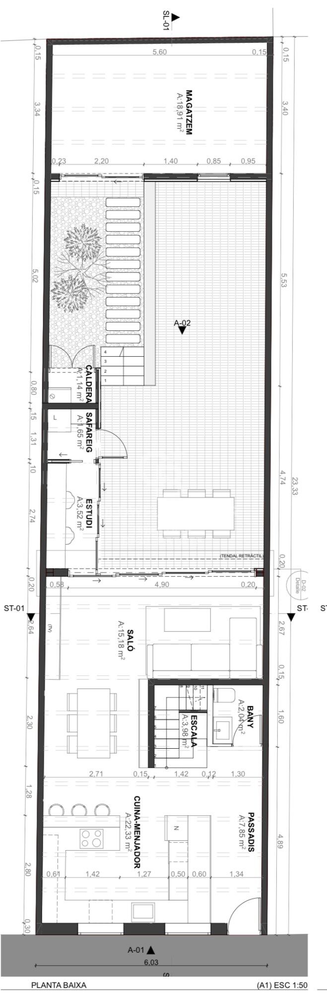
Distribuida en tres plantas amplias, cómodas y bien aprovechadas.
Terraza soleada de 35m², ideal para comidas al aire libre, relajarse o crear tu propio espacio chill out.
Sala versátil para convertir en oficina en casa, gimnasio, sala de juegos o estudio.
Gran patio exterior con zona de lavadero y trastero, pensado para facilitar tu día a día.
Dormitorio principal tipo suite con vestidor y baño privado, además de dos habitaciones dobles llenas de luz.
Cocina moderna totalmente equipada y un salón-comedor de concepto abierto, perfecto para disfrutar en familia o con amigos.
Una ubicación que suma:
Ubicada en una zona residencial del tranquilo barrio de Bon Pastor, con zonas verdes cercanas y todos los servicios al alcance.
A escasos minutos de las líneas de metro L9, L10 y L2 (con futura conexión directa al Aeropuerto).
Supermercado a 1 minuto, farmacia a 3', escuelas y biblioteca a 5', y el centro comercial La Maquinista a solo 12'. Parking publico a escasos metros.
Extra destacable:
La propiedad dispone de derecho de vuelo, lo que permite construir una planta adicional según normativa vigente.
Las imágenes de este anuncio son renders. con colores, materiales y texturas definitivas para paredes y suelos, siendo el mobiliario un ejemplo de decoración.
El precio de venta no incluye impuestos ni gastos derivados de la compraventa que, conforme a la normativa vigente, corresponden al comprador: (i) en viviendas de segunda mano, el Impuesto sobre Transmisiones Patrimoniales (ITP) según tipo aplicable en la Comunidad Autónoma; (ii) en viviendas de obra nueva, el IVA y el Impuesto sobre Actos Jurídicos Documentados (AJD) según normativa vigente; (iii) aranceles notariales y registrales; y (iv) gastos de gestoría en caso de contratarse. Disponibilidad a acordar. La oferta está sujeta a cambios de precio o retirada del mercado sin previo aviso. Los datos expuestos, incluidas las superficies, tienen carácter meramente orientativo. Los honorarios de intermediación inmobiliaria serán asumidos por la parte correspondiente según el encargo suscrito. Se facilitará a toda persona interesada información detallada y personalizada antes de la entrega de cualquier cantidad a cuenta, conforme a la normativa estatal y autonómica aplicable.
#ref:CBES2663
Detalles de la propiedad
Características de la propiedad
- En trámite
Acerca de Sant Andreu de Palomar
Sant Andreu de Palomar es el núcleo más antiguo del distrito de Sant Andreu en Barcelona. Con más de mil años de historia, mantiene un ambiente acogedor de pueblo dentro de la ciudad, con plazas, comercio local y una comunidad cercana que refuerza su carácter distintivo.
La ubicación es estratégica: al noreste de Barcelona, bien comunicado con metro L1, cercanías y autobuses, y cerca de grandes infraestructuras como la futura estación intermodal de La Sagrera.
La calidad de vida se refleja en su entorno tradicional, plazas activas, vida asociativa, espacios verdes como el Parque de la Maquinista y una ambientación ideal para familias y vecinos de toda edad.
En el mercado inmobiliario, Sant Andreu se sitúa entre las zonas más atractivas para vivir en Barcelona: precios en crecimiento con buena proyección, combinando oferta de obra nueva y vivienda clásica a precios atractivos frente al centro.





















