Solar con licencia de construcción en La Teixonera, Horta
Detalles del Proyecto:
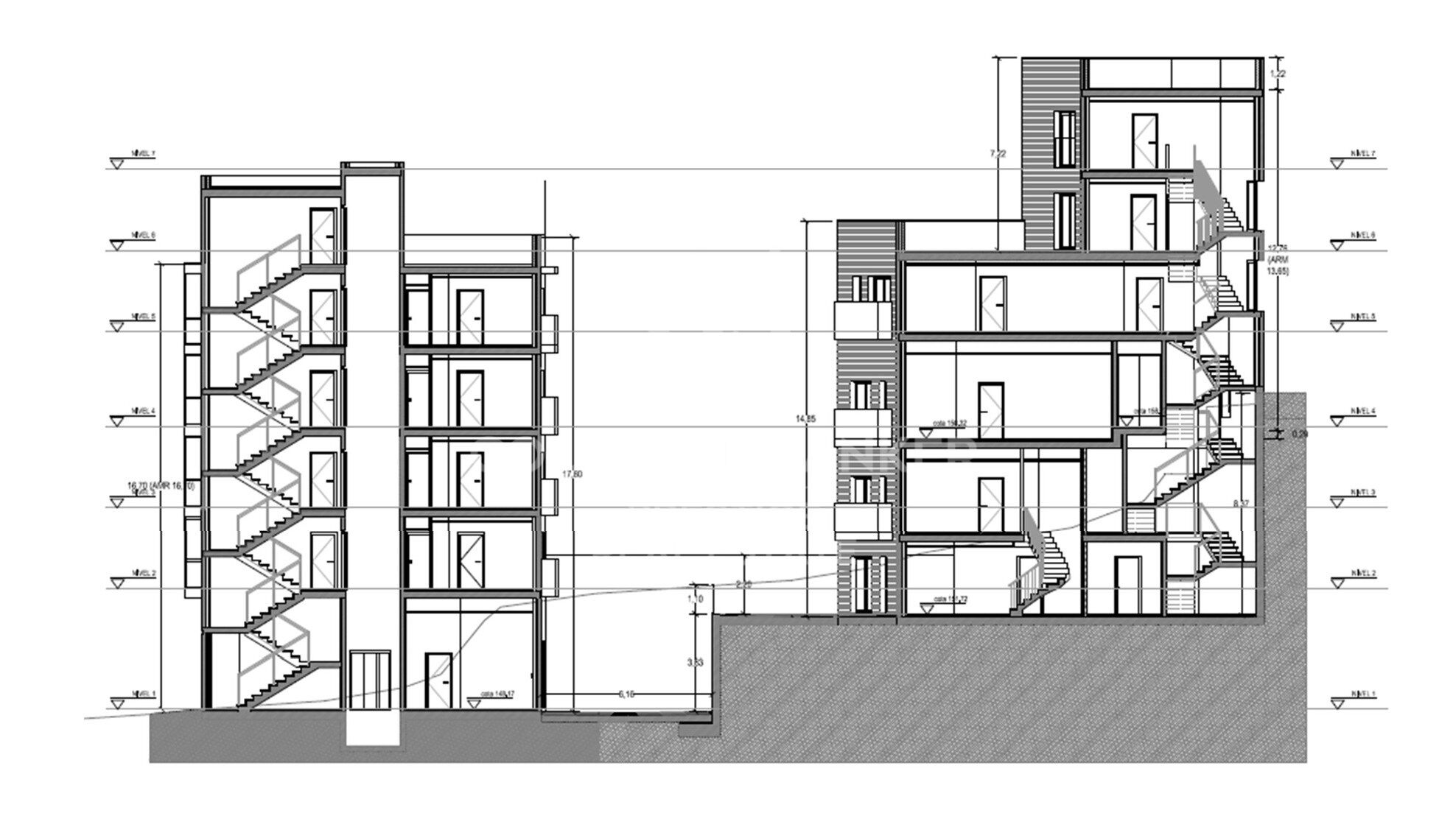
Edificio 1:
Superficie construida total: 413 m²
Distribución:
Planta Baja (PB) - Dúplex con jardín: 99 m² + jardín de 32,5 m²
Plantas 1, 2 y 3 - Plantas tipo: 57 m² cada una
Edificio 2:
Superficie construida total: 363 m²
Distribución:
Dúplex con jardín: 74 m² + jardín de 32 m²
PB adicional: 48 m²
Tríplex con terrazas: 127 m² + terrazas de 31 m²
Características destacadas:
Viviendas tipo dúplex y tríplex con espacios exteriores privados (jardines y terrazas)
Proyecto orientado al confort, ideal para familias o viviendas de alto standing
Ubicación ideal para el desarrollo residencial
#ref:CBES2625
Detalles de la propiedad
-
A
92-100 -
B
81-91 -
C
69-80 -
D
55-68 -
E
39-54 -
F
21-38 -
G
1-20
Acerca de Barcelona
Barcelona, la exquisita joya de Cataluña, es una ciudad que deslumbra a sus visitantes con una combinación única de historia, cultura, arte y una vibrante escena moderna. Situada en la costa noreste de España, Barcelona es un destino que cautiva tanto a turistas como a locales, brindando una experiencia inolvidable a cada paso que se da por sus calles empedradas.
Su rica historia se remonta a más de 2,000 años atrás, cuando los romanos establecieron la ciudad como "Barcino". A lo largo de los siglos, Barcelona ha sido influenciada por diferentes culturas, lo que ha dado lugar a una amalgama de estilos arquitectónicos que la hacen única en el mundo. Uno de sus mayores tesoros es la impresionante Sagrada Familia, la majestuosa basílica diseñada por el genio arquitecto Antoni Gaudí, cuya construcción aún continúa hoy en día, cautivando a todos con su belleza y originalidad.
Pero Barcelona no es solo historia y monumentos. Sus encantadoras calles y plazas, como las famosas Ramblas, están llenas de vida y energía, repletas de cafés, restaurantes, artistas callejeros y mercados locales.
La comida también es una parte esencial de la experiencia barcelonesa; sus mercados, como el Mercado de La Boquería, exhiben coloridos puestos de frutas frescas, mariscos y embutidos que deleitan a los amantes de la gastronomía.
Una de las marcas distintivas de la ciudad es el estilo de vida mediterráneo relajado, donde las horas se disfrutan con calma y las tertulias con amigos se alargan hasta altas horas de la noche. Los barceloneses son cálidos y acogedores, lo que hace que los visitantes se sientan como en casa en esta ciudad cosmopolita.
La arquitectura modernista de Barcelona no se limita a la Sagrada Familia; edificios emblemáticos como la Casa Batlló y La Pedrera son una expresión exquisita de la creatividad y el genio de Gaudí. Además, el Parque Güell ofrece a los visitantes un paisaje mágico y fantasioso, con esculturas, mosaicos y terrazas con vistas panorámicas de la ciudad.
El legado artístico de Barcelona también es impresionante. Museos como el Museo Picasso albergan una extensa colección de obras maestras del genio del cubismo y ofrecen una mirada íntima a la vida y el trabajo de Pablo Picasso.
El fútbol también se encuentra en el corazón de la ciudad, con el emblemático estadio del FC Barcelona, el Camp Nou, que es un lugar de peregrinaje para los aficionados al deporte en todo el mundo.
La playa es otro atractivo de Barcelona, con varias playas urbanas como la Barceloneta, donde los visitantes pueden relajarse bajo el cálido sol mediterráneo o disfrutar de deportes acuáticos.
En resumen, Barcelona es una ciudad que cautiva los sentidos y llena el alma de inspiración. Su historia, cultura, arquitectura, arte y estilo de vida la convierten en un lugar único y fascinante para visitar. Quienes tienen la oportunidad de explorar sus encantos, siempre llevarán en su corazón el recuerdo de esta maravillosa ciudad.















