Terreno urbano con proyecto en venta en Major del Rectoret con proyecto presentado en el ayuntamiento
La parcela es edificable y se ha presentado el proyecto en el ayuntamiento quedando a la espera de recibir el permiso de obras.
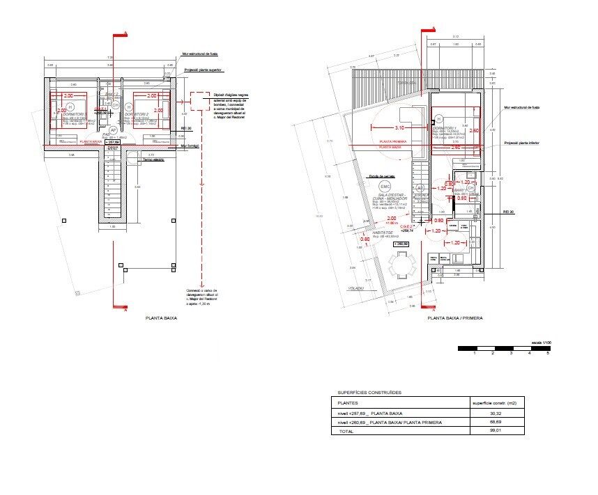
Cuenta con un proyecto diseñado específicamente para adaptarse a las características del terreno, listo para presentar. La propuesta contempla una vivienda unifamiliar de dos plantas que incluye 3 dormitorios y 2 baños, ofreciendo una distribución funcional y cómoda para la vida familiar.
Can Rectoret: el refugio natural de Barcelona
El barrio de Can Rectoret es conocido por su atmósfera tranquila y familiar, rodeado de naturaleza y con un ambiente de montaña que ofrece una experiencia de vida única dentro de la ciudad. Ubicado en el distrito de Sarrià-Sant Gervasi, es un área residencial apreciada por quienes buscan paz y privacidad sin renunciar a la conexión urbana. Su cercanía a Collserola convierte este lugar en un verdadero oasis, perfecto para aquellos que desean escapar del bullicio metropolitano mientras permanecen bien conectados con el corazón de Barcelona.
Conectividad y servicios cercanos
La ubicación es otro de sus puntos fuertes. A pocos pasos del terreno se encuentra la parada de autobús número 128, que conecta cómodamente con el resto de la ciudad. Además, la estación de Baixador de Vallvidrera, situada a tan solo 750 metros, ofrece fácil acceso a la red ferroviaria, asegurando una movilidad eficiente y sin complicaciones.
Un refugio natural a pocos minutos de la ciudad
El terreno está rodeado de exuberante vegetación, proporcionando un refugio de tranquilidad en medio de la vibrante Barcelona. Esta ubicación privilegiada permite disfrutar de lo mejor de ambos mundos: la calma de un entorno natural y la cercanía a los servicios urbanos esenciales.
No dejes pasar esta oportunidad única de construir la casa de tus sueños en uno de los barrios más singulares de la ciudad.
El precio de venta no incluye impuestos ni gastos derivados de la compraventa, que corresponden al comprador según la normativa vigente: ITP para terrenos de segunda transmisión, IVA y AJD para terrenos de obra nueva o promociones urbanísticas, además de aranceles notariales, registrales y gastos de gestoría si se contratan. Disponibilidad a acordar. La oferta puede cambiar de precio o retirarse sin previo aviso. Las superficies y límites son orientativos. Los honorarios de intermediación inmobiliaria se asumirán según el encargo. Se proporcionará información detallada antes de entregar cualquier cantidad a cuenta.
#ref:CB2105LL
Detalles de la propiedad
- En trámite
Acerca de Vallvidrera - Tibidabo - Les Planes
Vallvidrera, Tibidabo y Les Planes son barrios de Barcelona situados en la región de Cataluña, en el distrito de Sarrià-Sant Gervasi, que se caracterizan por su ubicación privilegiada en las colinas de Collserola. Estos barrios ofrecen un ambiente tranquilo y rodeado de naturaleza, a tan solo unos minutos del bullicioso centro de la ciudad. Vivir en Vallvidrera, Tibidabo y Les Planes significa disfrutar de una alta calidad de vida, con amplias vistas a la ciudad y un entorno natural ideal para quienes buscan tranquilidad sin alejarse demasiado de los servicios urbanos.
La zona es perfecta para los amantes de las actividades al aire libre, con el Parque Natural de Collserola a su puerta, donde se pueden hacer rutas de senderismo, ciclismo o disfrutar de las vistas panorámicas desde el Tibidabo. En cuanto al mercado inmobiliario, Vallvidrera, Tibidabo y Les Planes ofrecen una gran variedad de viviendas unifamiliares, chalets de lujo y apartamentos tranquilos con un toque de exclusividad, lo que las convierte en una excelente opción para quienes buscan un entorno residencial más relajado, pero bien comunicado con el centro de la ciudad.



















