Solar con licencia de construcción en La Teixonera, Horta
Detalles del Proyecto:
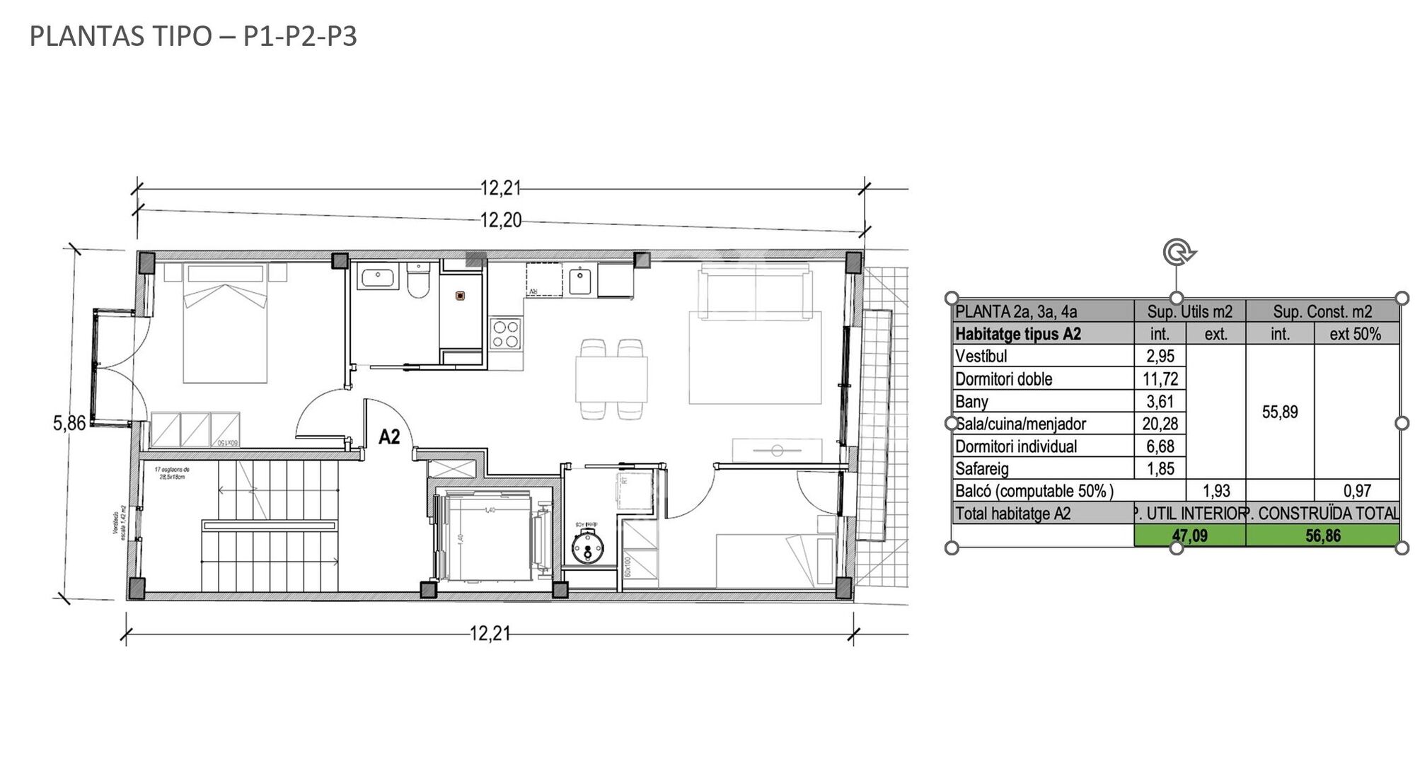
Edificio 1:
Superficie construida total: 413 m²
Distribución:
Planta Baja (PB) - Dúplex con jardín: 99 m² + jardín de 32,5 m²
Plantas 1, 2 y 3 - Plantas tipo: 57 m² cada una
Edificio 2:
Superficie construida total: 363 m²
Distribución:
Dúplex con jardín: 74 m² + jardín de 32 m²
PB adicional: 48 m²
Tríplex con terrazas: 127 m² + terrazas de 31 m²
Características destacadas:
Viviendas tipo dúplex y tríplex con espacios exteriores privados (jardines y terrazas)
Proyecto orientado al confort, ideal para familias o viviendas de alto standing
Ubicación ideal para el desarrollo residencial
#ref:CBES2625
Detalles de la propiedad
-
A
92-100 -
B
81-91 -
C
69-80 -
D
55-68 -
E
39-54 -
F
21-38 -
G
1-20
Acerca de La Teixonera
El barrio de La Teixonera es una excelente opción para quienes buscan comprar piso en Barcelona en una zona tranquila, bien conectada y con gran proyección de crecimiento. Ubicado en el distrito de Horta-Guinardó, este barrio combina el encanto residencial con precios más accesibles que otras áreas de la ciudad.
Invertir en inmuebles en La Teixonera es una oportunidad atractiva tanto para compradores como para inversores. La zona ofrece una amplia variedad de propiedades, desde pisos económicos en Barcelona hasta viviendas reformadas con vistas, ideales para familias, jóvenes profesionales o como inversión para alquiler.
Uno de los principales atractivos de La Teixonera es su entorno natural. La proximidad al Parc de Collserola permite disfrutar de espacios verdes, rutas de senderismo y un estilo de vida saludable sin renunciar a la ciudad. Además, el barrio cuenta con buenas conexiones de transporte público, incluyendo metro y autobuses, facilitando el acceso al centro de Barcelona.
La zona dispone de todos los servicios necesarios: comercios, colegios, centros de salud y una oferta local auténtica, lo que la convierte en una opción ideal para quienes buscan vivir en Barcelona con calidad de vida. Sin duda, La Teixonera es una de las mejores alternativas para quienes desean invertir en inmobiliaria en Barcelona con una excelente relación calidad-precio.














