Apartamento 2 habitaciones Venta Andorra la Vella

tamaño
84 m²
Habitaciones
2
Baños
2
precio
511.000 €
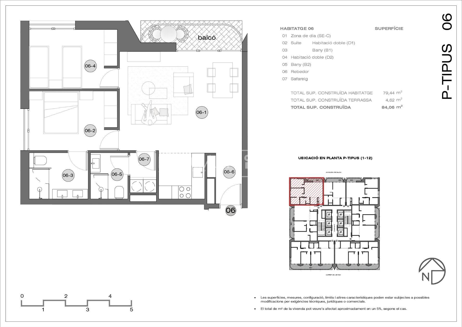
Exclusiva promoción de obra nueva situada a tan solo 500 metros del centro de Andorra la Vella y de su principal eje comercial.~El edificio, de 14 plantas, tiene prevista su finalización para diciembre de 2027 y ofrecerá un entorno moderno, cómodo y funcional con zonas ajardinadas y una pista de pádel.~~Las viviendas se caracterizan por su diseño contemporáneo, la eficiencia energética tipo A y el uso de materiales de primera calidad.~Todas disponen de espacio exterior con prácticos balcones o terrazas, y una cuidada orientación que garantiza luz natural y confort térmico durante todo el año.~~Características principales~Estructura y fachada: sistema de hormigón prefabricado y fachada ventilada con revestimiento cerámico imitación hormigón y madera tecnológica, que aporta elegancia y durabilidad.~Carpintería exterior: aluminio o PVC con rotura de puente térmico y triple acristalamiento, garantizando el mejor aislamiento térmico y acústico.~Climatización: sistema de suelo radiante-refrescante con producción de ACS mediante red FEDA Ecoterm, máxima eficiencia y confort.~Domótica: preinstalación domótica escalable y cortinas opacas motorizadas en salón.~Iluminación LED en cocinas, baños y zonas comunes.~Preinstalación para vehículo eléctrico en plazas de aparcamiento.~~Acabados interiores~Suelo estratificado SPC de Grato y gres porcelánico antideslizante en balcones y terrazas.~Cocinas totalmente equipadas con mobiliario MOBALPA o similar, encimera CERATOP o similar, y electrodomésticos SIEMENS o equivalente.~Baños con mobiliario suspendido, grifería termostática y plato de ducha de resina con mampara.~Puerta de entrada blindada y puertas interiores lacadas.~~Sostenibilidad y eficiencia~Gracias a su diseño constructivo, aislamiento avanzado y sistemas energéticos de última generación, la promoción obtiene la máxima calificación energética A, reduciendo el consumo y el impacto ambiental.~~Este inmueble de 84 m2 es una segunda planta con un balcon de 4,62 m2 y en orientación Norte.~Dispone de:~-Entrada con armario.~-Salón comedor amplio, cocina equipada.~-Lavadero funcional y baño completo en una estancia.~-1 habitación amplia con armarios empotrados.~-Suite principal con armarios y baño completo~-Salida al balcón desde el salón dando privacidad.~Posibilidad de compra de una plaza de aparcamiento y un trastero.~~Inmobiliaria Gali a su disposición
#ref:04722/5210

Detalles de la propiedad

zona
Principado de Andorra
área
Andorra
localización
Andorra la Vella
distrito
Centro
Tipo de inmueble
piso
venta
511.000 €
Referencia
04722/5210
Habitaciones
2
Baños
2
Superficie construida
84 m2
Certificación energética
  • En trámite

Acerca de Andorra la Vella

Andorra la Vella es la capital del Principado de Andorra, ubicada en las montañas orientales de los Pirineos entre Francia y España.

Andorra la Vella está situada en la región de Andorra, un pequeño país sin salida al mar conocido por sus impresionantes paisajes montañosos. Está enclavada en el corazón de los Pirineos, ofreciendo un entorno pintoresco con vistas impresionantes.

Una de las principales ventajas de Andorra la Vella es su ubicación estratégica. Sirve como puerta de entrada entre Francia y España, lo que la hace fácilmente accesible desde las principales ciudades de ambos países. El estatus de paraíso fiscal de la principado también atrae a empresas y visitantes que buscan condiciones económicas favorables.

Andorra la Vella ofrece una alta calidad de vida con aire limpio, bajos índices de criminalidad y una atmósfera tranquila. La ciudad es conocida por su excelente sistema de salud, educación de calidad y servicios públicos eficientes. Los residentes se benefician de un fuerte sentido de comunidad y un entorno seguro para las familias.

A pesar de su tamaño reducido, Andorra la Vella ofrece una gran cantidad de actividades tanto para residentes como para visitantes. Las montañas circundantes ofrecen amplias oportunidades para actividades al aire libre como senderismo, esquí y ciclismo de montaña. Además, la ciudad cuenta con modernos centros comerciales, eventos culturales y una animada vida nocturna. El complejo termal Caldea cercano ofrece experiencias de relajación y bienestar, convirtiéndolo en un destino popular durante todo el año.

El mercado inmobiliario de Andorra la Vella se caracteriza por una mezcla de tradicionales chalets de montaña y modernos apartamentos. El mercado atrae tanto a locales como a compradores internacionales que buscan una combinación única de belleza natural, ventajas económicas y alto nivel de vida. Las propiedades van desde acogedoras casas de montaña hasta lujosas villas con impresionantes vistas a la montaña, adaptándose a diferentes preferencias y estilos de vida.

Andorra la Vella combina el encanto de un entorno montañoso con las comodidades de una ciudad moderna, ofreciendo a residentes y visitantes una combinación única de belleza natural, ventajas económicas y un alto nivel de vida.

Solicite más información
Ref.04722/5210
Na Maria Pla, 20. Local 1
AD500, Andorra La Vella
+376 801 700

Propiedades similares

Apartamento 2 habitaciones Venta Andorra la Vella
Centro

Apartamento 2 habitaciones Venta Andorra la Vella

84 m²Tamaño22 Baños
Exclusiva promoción de obra nueva situada a tan solo 500 metros del centro de Andorra la Vella y de su principal eje comercial.~El edificio, de 14 plantas, tiene prevista su finalización para diciembre de 2027 y ofrecerá un entorno moderno, cómodo y funcional con zonas ajardinadas y una pista de pádel.~~Las viviendas se caracterizan por su diseño contemporáneo, la eficiencia energética tipo A y el uso de materiales de primera calidad.~Todas disponen de espacio exterior con prácticos balcones o terrazas, y una cuidada orientación que garantiza luz natural y confort térmico durante todo el año.~~Características principales~Estructura y fachada: sistema de hormigón prefabricado y fachada ventilada con revestimiento cerámico imitación hormigón y madera tecnológica, que aporta elegancia y durabilidad.~Carpintería exterior: aluminio o PVC con rotura de puente térmico y triple acristalamiento, garantizando el mejor aislamiento térmico y acústico.~Climatización: sistema de suelo radiante-refrescante con producción de ACS mediante red FEDA Ecoterm, máxima eficiencia y confort.~Domótica: preinstalación domótica escalable y cortinas opacas motorizadas en salón.~Iluminación LED en cocinas, baños y zonas comunes.~Preinstalación para vehículo eléctrico en plazas de aparcamiento.~~Acabados interiores~Suelo estratificado SPC de Grato y gres porcelánico antideslizante en balcones y terrazas.~Cocinas totalmente equipadas con mobiliario MOBALPA o similar, encimera CERATOP o similar, y electrodomésticos SIEMENS o equivalente.~Baños con mobiliario suspendido, grifería termostática y plato de ducha de resina con mampara.~Puerta de entrada blindada y puertas interiores lacadas.~~Sostenibilidad y eficiencia~Gracias a su diseño constructivo, aislamiento avanzado y sistemas energéticos de última generación, la promoción obtiene la máxima calificación energética A, reduciendo el consumo y el impacto ambiental.~~Este inmueble de dos habitaciones se distribuye de la siguiente manera:~- Entrada recibidor con armario empotrado~- Salón comedor con cocina abierta~- Zona de lavadero cerrada y baño completo en la misma estancia.~- Habitación doble con armario empotrado~- Suite principal con baño y armarios empotrados.~~Este inmueble esta orientado Norte.~Posibilidad de adquirir una plaza de aparcamiento y trastero en el mismo edificio.~~Inmobiliaria Gali a su disposición #ref:04708/5210
491.000 €
Apartamento 2 habitaciones Venta Andorra la Vella
Centro

Apartamento 2 habitaciones Venta Andorra la Vella

84 m²Tamaño22 Baños
Exclusiva promoción de obra nueva situada a tan solo 500 metros del centro de Andorra la Vella y de su principal eje comercial.~El edificio, de 14 plantas, tiene prevista su finalización para diciembre de 2027 y ofrecerá un entorno moderno, cómodo y funcional con zonas ajardinadas y una pista de pádel.~~Las viviendas se caracterizan por su diseño contemporáneo, la eficiencia energética tipo A y el uso de materiales de primera calidad.~Todas disponen de espacio exterior con prácticos balcones o terrazas, y una cuidada orientación que garantiza luz natural y confort térmico durante todo el año.~~Características principales~Estructura y fachada: sistema de hormigón prefabricado y fachada ventilada con revestimiento cerámico imitación hormigón y madera tecnológica, que aporta elegancia y durabilidad.~Carpintería exterior: aluminio o PVC con rotura de puente térmico y triple acristalamiento, garantizando el mejor aislamiento térmico y acústico.~Climatización: sistema de suelo radiante-refrescante con producción de ACS mediante red FEDA Ecoterm, máxima eficiencia y confort.~Domótica: preinstalación domótica escalable y cortinas opacas motorizadas en salón.~Iluminación LED en cocinas, baños y zonas comunes.~Preinstalación para vehículo eléctrico en plazas de aparcamiento.~~Acabados interiores~Suelo estratificado SPC de Grato y gres porcelánico antideslizante en balcones y terrazas.~Cocinas totalmente equipadas con mobiliario MOBALPA o similar, encimera CERATOP o similar, y electrodomésticos SIEMENS o equivalente.~Baños con mobiliario suspendido, grifería termostática y plato de ducha de resina con mampara.~Puerta de entrada blindada y puertas interiores lacadas.~~Sostenibilidad y eficiencia~Gracias a su diseño constructivo, aislamiento avanzado y sistemas energéticos de última generación, la promoción obtiene la máxima calificación energética A, reduciendo el consumo y el impacto ambiental.~~Este inmueble de dos habitaciones se distribuye de la siguiente manera:~- Entrada recibidor con armario empotrado~- Salón comedor con cocina abierta~- Zona de lavadero cerrada y baño completo en la misma estancia.~- Habitación doble con armario empotrado~- Suite principal con baño y armarios empotrados.~~Este inmueble esta orientado Norte.~Posibilidad de adquirir una plaza de aparcamiento y trastero en el mismo edificio.~~Inmobiliaria Gali a su disposición #ref:04710/5210
511.000 €
Apartamento 2 habitaciones Venta Andorra la Vella
Centro

Apartamento 2 habitaciones Venta Andorra la Vella

84 m²Tamaño22 Baños
Exclusiva promoción de obra nueva situada a tan solo 500 metros del centro de Andorra la Vella y de su principal eje comercial.~El edificio, de 14 plantas, tiene prevista su finalización para diciembre de 2027 y ofrecerá un entorno moderno, cómodo y funcional con zonas ajardinadas y una pista de pádel.~~Las viviendas se caracterizan por su diseño contemporáneo, la eficiencia energética tipo A y el uso de materiales de primera calidad.~Todas disponen de espacio exterior con prácticos balcones o terrazas, y una cuidada orientación que garantiza luz natural y confort térmico durante todo el año.~~Características principales~Estructura y fachada: sistema de hormigón prefabricado y fachada ventilada con revestimiento cerámico imitación hormigón y madera tecnológica, que aporta elegancia y durabilidad.~Carpintería exterior: aluminio o PVC con rotura de puente térmico y triple acristalamiento, garantizando el mejor aislamiento térmico y acústico.~Climatización: sistema de suelo radiante-refrescante con producción de ACS mediante red FEDA Ecoterm, máxima eficiencia y confort.~Domótica: preinstalación domótica escalable y cortinas opacas motorizadas en salón.~Iluminación LED en cocinas, baños y zonas comunes.~Preinstalación para vehículo eléctrico en plazas de aparcamiento.~~Acabados interiores~Suelo estratificado SPC de Grato y gres porcelánico antideslizante en balcones y terrazas.~Cocinas totalmente equipadas con mobiliario MOBALPA o similar, encimera CERATOP o similar, y electrodomésticos SIEMENS o equivalente.~Baños con mobiliario suspendido, grifería termostática y plato de ducha de resina con mampara.~Puerta de entrada blindada y puertas interiores lacadas.~~Sostenibilidad y eficiencia~Gracias a su diseño constructivo, aislamiento avanzado y sistemas energéticos de última generación, la promoción obtiene la máxima calificación energética A, reduciendo el consumo y el impacto ambiental.~~Este inmueble de dos habitaciones se distribuye de la siguiente manera:~- Entrada recibidor con armario empotrado~- Salón comedor con cocina abierta~- Zona de lavadero cerrada y baño completo en la misma estancia.~- Habitación doble con armario empotrado~- Suite principal con baño y armarios empotrados.~~Este inmueble esta orientado Norte.~Posibilidad de adquirir una plaza de aparcamiento y trastero en el mismo edificio.~~Inmobiliaria Gali a su disposición #ref:04709/5210
500.000 €
Apartamento 2 habitaciones Venta Andorra la Vella
Centro

Apartamento 2 habitaciones Venta Andorra la Vella

84 m²Tamaño22 Baños
Exclusiva promoción de obra nueva situada a tan solo 500 metros del centro de Andorra la Vella y de su principal eje comercial.~El edificio, de 14 plantas, tiene prevista su finalización para diciembre de 2027 y ofrecerá un entorno moderno, cómodo y funcional con zonas ajardinadas y una pista de pádel.~~Las viviendas se caracterizan por su diseño contemporáneo, la eficiencia energética tipo A y el uso de materiales de primera calidad.~Todas disponen de espacio exterior con prácticos balcones o terrazas, y una cuidada orientación que garantiza luz natural y confort térmico durante todo el año.~~Características principales~Estructura y fachada: sistema de hormigón prefabricado y fachada ventilada con revestimiento cerámico imitación hormigón y madera tecnológica, que aporta elegancia y durabilidad.~Carpintería exterior: aluminio o PVC con rotura de puente térmico y triple acristalamiento, garantizando el mejor aislamiento térmico y acústico.~Climatización: sistema de suelo radiante-refrescante con producción de ACS mediante red FEDA Ecoterm, máxima eficiencia y confort.~Domótica: preinstalación domótica escalable y cortinas opacas motorizadas en salón.~Iluminación LED en cocinas, baños y zonas comunes.~Preinstalación para vehículo eléctrico en plazas de aparcamiento.~~Acabados interiores~Suelo estratificado SPC de Grato y gres porcelánico antideslizante en balcones y terrazas.~Cocinas totalmente equipadas con mobiliario MOBALPA o similar, encimera CERATOP o similar, y electrodomésticos SIEMENS o equivalente.~Baños con mobiliario suspendido, grifería termostática y plato de ducha de resina con mampara.~Puerta de entrada blindada y puertas interiores lacadas.~~Sostenibilidad y eficiencia~Gracias a su diseño constructivo, aislamiento avanzado y sistemas energéticos de última generación, la promoción obtiene la máxima calificación energética A, reduciendo el consumo y el impacto ambiental.~~Este inmueble de dos habitaciones se distribuye de la siguiente manera:~- Entrada recibidor con armario empotrado~- Salón comedor con cocina abierta~- Zona de lavadero cerrada y baño completo en la misma estancia.~- Habitación doble con armario empotrado~- Suite principal con baño y armarios empotrados.~~Este inmueble esta orientado Norte.~Posibilidad de adquirir una plaza de aparcamiento y trastero en el mismo edificio.~~Inmobiliaria Gali a su disposición #ref:04711/5210
525.000 €
Apartamento 2 habitaciones Venta Andorra la Vella
Centro

Apartamento 2 habitaciones Venta Andorra la Vella

84 m²Tamaño22 Baños
Exclusiva promoción de obra nueva situada a tan solo 500 metros del centro de Andorra la Vella y de su principal eje comercial.~El edificio, de 14 plantas, tiene prevista su finalización para diciembre de 2027 y ofrecerá un entorno moderno, cómodo y funcional con zonas ajardinadas y una pista de pádel.~~Las viviendas se caracterizan por su diseño contemporáneo, la eficiencia energética tipo A y el uso de materiales de primera calidad.~Todas disponen de espacio exterior con prácticos balcones o terrazas, y una cuidada orientación que garantiza luz natural y confort térmico durante todo el año.~~Características principales~Estructura y fachada: sistema de hormigón prefabricado y fachada ventilada con revestimiento cerámico imitación hormigón y madera tecnológica, que aporta elegancia y durabilidad.~Carpintería exterior: aluminio o PVC con rotura de puente térmico y triple acristalamiento, garantizando el mejor aislamiento térmico y acústico.~Climatización: sistema de suelo radiante-refrescante con producción de ACS mediante red FEDA Ecoterm, máxima eficiencia y confort.~Domótica: preinstalación domótica escalable y cortinas opacas motorizadas en salón.~Iluminación LED en cocinas, baños y zonas comunes.~Preinstalación para vehículo eléctrico en plazas de aparcamiento.~~Acabados interiores~Suelo estratificado SPC de Grato y gres porcelánico antideslizante en balcones y terrazas.~Cocinas totalmente equipadas con mobiliario MOBALPA o similar, encimera CERATOP o similar, y electrodomésticos SIEMENS o equivalente.~Baños con mobiliario suspendido, grifería termostática y plato de ducha de resina con mampara.~Puerta de entrada blindada y puertas interiores lacadas.~~Sostenibilidad y eficiencia~Gracias a su diseño constructivo, aislamiento avanzado y sistemas energéticos de última generación, la promoción obtiene la máxima calificación energética A, reduciendo el consumo y el impacto ambiental.~~Este inmueble de 84 m2 es una segunda planta con un balcon de 4,62 m2 y en orientación Norte.~Dispone de:~-Entrada con armario.~-Salón comedor amplio, cocina equipada.~-Lavadero funcional y baño completo en una estancia.~-1 habitación amplia con armarios empotrados.~-Suite principal con armarios y baño completo~-Salida al balcón desde el salón dando privacidad.~Posibilidad de compra de una plaza de aparcamiento y un trastero.~~Inmobiliaria Gali a su disposición #ref:04720/5210
491.000 €
Apartamento 2 habitaciones Venta Andorra la Vella
Centro

Apartamento 2 habitaciones Venta Andorra la Vella

84 m²Tamaño22 Baños
Exclusiva promoción de obra nueva situada a tan solo 500 metros del centro de Andorra la Vella y de su principal eje comercial.~El edificio, de 14 plantas, tiene prevista su finalización para diciembre de 2027 y ofrecerá un entorno moderno, cómodo y funcional con zonas ajardinadas y una pista de pádel.~~Las viviendas se caracterizan por su diseño contemporáneo, la eficiencia energética tipo A y el uso de materiales de primera calidad.~Todas disponen de espacio exterior con prácticos balcones o terrazas, y una cuidada orientación que garantiza luz natural y confort térmico durante todo el año.~~Características principales~Estructura y fachada: sistema de hormigón prefabricado y fachada ventilada con revestimiento cerámico imitación hormigón y madera tecnológica, que aporta elegancia y durabilidad.~Carpintería exterior: aluminio o PVC con rotura de puente térmico y triple acristalamiento, garantizando el mejor aislamiento térmico y acústico.~Climatización: sistema de suelo radiante-refrescante con producción de ACS mediante red FEDA Ecoterm, máxima eficiencia y confort.~Domótica: preinstalación domótica escalable y cortinas opacas motorizadas en salón.~Iluminación LED en cocinas, baños y zonas comunes.~Preinstalación para vehículo eléctrico en plazas de aparcamiento.~~Acabados interiores~Suelo estratificado SPC de Grato y gres porcelánico antideslizante en balcones y terrazas.~Cocinas totalmente equipadas con mobiliario MOBALPA o similar, encimera CERATOP o similar, y electrodomésticos SIEMENS o equivalente.~Baños con mobiliario suspendido, grifería termostática y plato de ducha de resina con mampara.~Puerta de entrada blindada y puertas interiores lacadas.~~Sostenibilidad y eficiencia~Gracias a su diseño constructivo, aislamiento avanzado y sistemas energéticos de última generación, la promoción obtiene la máxima calificación energética A, reduciendo el consumo y el impacto ambiental.~~Este inmueble de 84 m2 es una segunda planta con un balcon de 4,62 m2 y en orientación Norte.~Dispone de:~-Entrada con armario.~-Salón comedor amplio, cocina equipada.~-Lavadero funcional y baño completo en una estancia.~-1 habitación amplia con armarios empotrados.~-Suite principal con armarios y baño completo~-Salida al balcón desde el salón dando privacidad.~Posibilidad de compra de una plaza de aparcamiento y un trastero.~~Inmobiliaria Gali a su disposición #ref:04721/5210
500.000 €
Apartamento 2 habitaciones Venta Andorra la Vella
Centro

Apartamento 2 habitaciones Venta Andorra la Vella

84 m²Tamaño22 Baños
Exclusiva promoción de obra nueva situada a tan solo 500 metros del centro de Andorra la Vella y de su principal eje comercial.~El edificio, de 14 plantas, tiene prevista su finalización para diciembre de 2027 y ofrecerá un entorno moderno, cómodo y funcional con zonas ajardinadas y una pista de pádel.~~Las viviendas se caracterizan por su diseño contemporáneo, la eficiencia energética tipo A y el uso de materiales de primera calidad.~Todas disponen de espacio exterior con prácticos balcones o terrazas, y una cuidada orientación que garantiza luz natural y confort térmico durante todo el año.~~Características principales~Estructura y fachada: sistema de hormigón prefabricado y fachada ventilada con revestimiento cerámico imitación hormigón y madera tecnológica, que aporta elegancia y durabilidad.~Carpintería exterior: aluminio o PVC con rotura de puente térmico y triple acristalamiento, garantizando el mejor aislamiento térmico y acústico.~Climatización: sistema de suelo radiante-refrescante con producción de ACS mediante red FEDA Ecoterm, máxima eficiencia y confort.~Domótica: preinstalación domótica escalable y cortinas opacas motorizadas en salón.~Iluminación LED en cocinas, baños y zonas comunes.~Preinstalación para vehículo eléctrico en plazas de aparcamiento.~~Acabados interiores~Suelo estratificado SPC de Grato y gres porcelánico antideslizante en balcones y terrazas.~Cocinas totalmente equipadas con mobiliario MOBALPA o similar, encimera CERATOP o similar, y electrodomésticos SIEMENS o equivalente.~Baños con mobiliario suspendido, grifería termostática y plato de ducha de resina con mampara.~Puerta de entrada blindada y puertas interiores lacadas.~~Sostenibilidad y eficiencia~Gracias a su diseño constructivo, aislamiento avanzado y sistemas energéticos de última generación, la promoción obtiene la máxima calificación energética A, reduciendo el consumo y el impacto ambiental.~~Este inmueble de 84 m2 es una segunda planta con un balcon de 4,62 m2 y en orientación Norte.~Dispone de:~-Entrada con armario.~-Salón comedor amplio, cocina equipada.~-Lavadero funcional y baño completo en una estancia.~-1 habitación amplia con armarios empotrados.~-Suite principal con armarios y baño completo~-Salida al balcón desde el salón dando privacidad.~Posibilidad de compra de una plaza de aparcamiento y un trastero.~~Inmobiliaria Gali a su disposición #ref:04723/5210
525.000 €
Apartamento 2 habitaciones Venta Andorra la Vella
Centro

Apartamento 2 habitaciones Venta Andorra la Vella

92 m²Tamaño22 Baños
Exclusiva promoción de obra nueva situada a tan solo 500 metros del centro de Andorra la Vella y de su principal eje comercial.~El edificio, de 14 plantas, tiene prevista su finalización para diciembre de 2027 y ofrecerá un entorno moderno, cómodo y funcional con zonas ajardinadas y una pista de pádel.~~Las viviendas se caracterizan por su diseño contemporáneo, la eficiencia energética tipo A y el uso de materiales de primera calidad.~Todas disponen de espacio exterior con prácticos balcones o terrazas, y una cuidada orientación que garantiza luz natural y confort térmico durante todo el año.~~Características principales~Estructura y fachada: sistema de hormigón prefabricado y fachada ventilada con revestimiento cerámico imitación hormigón y madera tecnológica, que aporta elegancia y durabilidad.~Carpintería exterior: aluminio o PVC con rotura de puente térmico y triple acristalamiento, garantizando el mejor aislamiento térmico y acústico.~Climatización: sistema de suelo radiante-refrescante con producción de ACS mediante red FEDA Ecoterm, máxima eficiencia y confort.~Domótica: preinstalación domótica escalable y cortinas opacas motorizadas en salón.~Iluminación LED en cocinas, baños y zonas comunes.~Preinstalación para vehículo eléctrico en plazas de aparcamiento.~~Acabados interiores~Suelo estratificado SPC de Grato y gres porcelánico antideslizante en balcones y terrazas.~Cocinas totalmente equipadas con mobiliario MOBALPA o similar, encimera CERATOP o similar, y electrodomésticos SIEMENS o equivalente.~Baños con mobiliario suspendido, grifería termostática y plato de ducha de resina con mampara.~Puerta de entrada blindada y puertas interiores lacadas.~~Sostenibilidad y eficiencia~Gracias a su diseño constructivo, aislamiento avanzado y sistemas energéticos de última generación, la promoción obtiene la máxima calificación energética A, reduciendo el consumo y el impacto ambiental.~~Este inmueble de 92 m2 es una primera planta con un balcon de 9,6 m2 y en orientación Oeste, por lo que tiene sol de tarde.~Dispone de:~-Entrada con armario.~-Salón comedor amplio, cocina equipada.~-Lavadero funcional.~-Baño completo.~-1 habitación amplia con armarios empotrados.~-Suite principal con armarios y baño completo~-Salida al balcón desde cualquier estancia.~Posibilidad de compra de una plaza de aparcamiento y un trastero.~~Inmobiliaria Gali a su disposición #ref:04729/5210
493.000 €

Propiedades vistas recientemente

Apartamento 3 habitaciones Venta Andorra la Vella
Centro

Apartamento 3 habitaciones Venta Andorra la Vella

118 m²Tamaño32 Baños
Exclusiva promoción de obra nueva situada a tan solo 500 metros del centro de Andorra la Vella y de su principal eje comercial.~El edificio, de 14 plantas, tiene prevista su finalización para diciembre de 2027 y ofrecerá un entorno moderno, cómodo y funcional con zonas ajardinadas y una pista de pádel.~~Las viviendas se caracterizan por su diseño contemporáneo, la eficiencia energética tipo A y el uso de materiales de primera calidad.~Todas disponen de espacio exterior con prácticos balcones o terrazas, y una cuidada orientación que garantiza luz natural y confort térmico durante todo el año.~~Características principales~Estructura y fachada: sistema de hormigón prefabricado y fachada ventilada con revestimiento cerámico imitación hormigón y madera tecnológica, que aporta elegancia y durabilidad.~Carpintería exterior: aluminio o PVC con rotura de puente térmico y triple acristalamiento, garantizando el mejor aislamiento térmico y acústico.~Climatización: sistema de suelo radiante-refrescante con producción de ACS mediante red FEDA Ecoterm, máxima eficiencia y confort.~Domótica: preinstalación domótica escalable y cortinas opacas motorizadas en salón.~Iluminación LED en cocinas, baños y zonas comunes.~Preinstalación para vehículo eléctrico en plazas de aparcamiento.~~Acabados interiores~Suelo estratificado SPC de Grato y gres porcelánico antideslizante en balcones y terrazas.~Cocinas totalmente equipadas con mobiliario MOBALPA o similar, encimera CERATOP o similar, y electrodomésticos SIEMENS o equivalente.~Baños con mobiliario suspendido, grifería termostática y plato de ducha de resina con mampara.~Puerta de entrada blindada y puertas interiores lacadas.~~Sostenibilidad y eficiencia~Gracias a su diseño constructivo, aislamiento avanzado y sistemas energéticos de última generación, la promoción obtiene la máxima calificación energética A, reduciendo el consumo y el impacto ambiental.~~Este inmueble de 100 m2 es una primera planta con un balcon de 18 m2 y en orientación Sud, por lo que tiene sol todo el día.~Dispone de:~-Entrada con armario.~-Salón comedor amplio, cocina equipada.~-Baño de cortesía.~-Lavadero funcional.~-Baño completo~-2 habitaciones amplias con armarios empotrados.~-Suite principal con armarios y baño completo~-Salida al balcón desde cualquier estancia.~Posibilidad de compra de dos plazas de aparcamiento y un trastero.~~Inmobiliaria Gali a su disposición #ref:04758/5210
741.000 €
Villa contemporánea en Sierra Blanca, Marbella
Milla de Oro

Villa contemporánea en Sierra Blanca, Marbella

779 m²Tamaño55 Baños
Lo primero que cautiva de esta villa excepcional es su ubicación privilegiada. Situada en la ladera de la majestuosa montaña La Concha, dentro de la exclusiva comunidad cerrada de Sierra Blanca en Marbella, la propiedad ofrece un equilibrio perfecto entre tranquilidad, belleza natural y proximidad a los lugares más emblemáticos de la ciudad. A tan solo unos minutos del animado centro de Marbella, el encantador casco antiguo, Puente Romano y el sofisticado Puerto Banús, su emplazamiento es sencillamente ideal. Completamente renovada en 2025, tanto en el interior como en el exterior, la villa se presenta como un hogar completamente nuevo, con un diseño sobresaliente, acabados modernos y una atención meticulosa a los detalles. Esta residencia contemporánea se encuentra en uno de los enclaves más prestigiosos y seguros de Marbella. Sierra Blanca es sinónimo de exclusividad: rodeada de naturaleza, con calles impecables y villas privadas que reflejan refinamiento y discreción. Su posición elevada ofrece espectaculares vistas panorámicas al Mar Mediterráneo, donde cada amanecer y atardecer se convierte en un auténtico espectáculo. La renovación fue concebida para aprovechar al máximo el potencial de la propiedad. La entrada principal, ahora situada en la calle Rossini, mejora tanto la comodidad como la estética. Al llegar, una cascada decorativa y un exuberante jardín con altas palmeras y setos frondosos crean una atmósfera de privacidad y serenidad. El acceso anterior, por la calle Sibelius, también se ha conservado, siendo ideal para el personal, invitados o eventos. El exterior muestra líneas limpias y modernas que se integran armoniosamente con el entorno natural. El salón principal se abre a una amplia terraza cubierta con vistas al mar y acceso directo a la piscina. Justo debajo, un acogedor jacuzzi exterior invita a relajarse bajo el cielo mediterráneo. Los jardines paisajísticos rodean la vivienda con zonas verdes que aportan serenidad y belleza natural. Distribuida en tres niveles, la villa combina confort, estilo y funcionalidad. En la planta principal, un majestuoso vestíbulo con techos altos, vigas de madera y grandes ventanales llena el espacio de luz natural. En este nivel también hay un aseo de invitados, armarios empotrados y un dormitorio con baño en suite, ideal para las visitas. El salón, con su elegante chimenea, se integra perfectamente con el comedor y la cocina moderna de concepto abierto, diseñada tanto para el día a día como para el entretenimiento. La planta superior alberga tres dormitorios, todos con acceso a una espectacular terraza que corona la villa. Desde aquí, las vistas panorámicas de la costa de Marbella y el Mediterráneo son simplemente impresionantes. En los días despejados se pueden divisar Gibraltar, la costa africana, Cádiz y Tarifa: el lugar perfecto para disfrutar de un café por la mañana o una copa de vino al atardecer contemplando la historia eterna de las Columnas de Hércules. El dormitorio principal destaca por su baño privado y una atmósfera que combina lujo y calidez. Todos los baños están equipados con materiales de alta calidad y un diseño contemporáneo y elegante. La planta inferior está dedicada al bienestar y el ocio, con sauna, hammam, gimnasio, bodega y un dormitorio adicional con baño. El garaje, cerrado con una puerta de cristal, permite la entrada de luz natural y crea una sensación de amplitud y sofisticación. Cada detalle de la villa ha sido cuidadosamente pensado para una vida moderna. Entre sus características destacan la calefacción por suelo radiante, aire acondicionado, videoportero, sistema de agua propio y una caldera moderna, garantizando confort y eficiencia. Por un suplemento de 350.000 € + IVA, la villa puede entregarse completamente amueblada, ofreciendo una experiencia llave en mano. Esta propiedad es mucho más que una vivienda: es una declaración de estilo de vida. Una residencia que combina a la perfección una ubicación privilegiada, arquitectura contemporánea y vistas panorámicas al mar, ofreciendo una experiencia de elegancia, privacidad y sofisticación atemporal. #ref:CBSH1203
9.950.000 €
Villa Ulises - Diseño contemporáneo con vistas al mar.
Centro ciudad

Villa Ulises - Diseño contemporáneo con vistas al mar.

439 m²Tamaño1.000 m²Parcela44 Baños
Villa Ulises es una exclusiva residencia de diseño moderno y líneas contemporáneas, situada en la codiciada urbanización Monte Olimpo de Jávea. Su emplazamiento privilegiado ofrece espectaculares vistas panorámicas al mar y a la montaña, a tan solo unos minutos de las playas, tiendas, colegios internacionales y el prestigioso Club de Golf de Jávea. La vivienda se distribuye en dos plantas, y ha sido concebida para maximizar el confort, la luz natural y la conexión con el entorno mediterráneo. En la planta baja, se encuentra un amplio y luminoso salón-comedor de concepto abierto, que se integra con una cocina moderna totalmente equipada y un lavadero contiguo. Un aseo de cortesía complementa esta zona de día. Este nivel también alberga un dormitorio doble en suite, ideal para invitados o como dormitorio principal en planta, con acceso directo a las terrazas exteriores y con vistas al mar. La planta superior está dedicada al descanso. Aquí se sitúa la suite principal, que goza de las mejores vistas de la villa y cuenta con un espacioso baño de diseño abierto. Completan este nivel dos dormitorios adicionales, ambos con armarios empotrados, que comparten un elegante baño y tienen salida directa a la terraza superior. En el exterior, la villa ofrece un entorno diseñado para disfrutar plenamente del estilo de vida mediterráneo: una hermosa piscina, amplias terrazas para relajarse o recibir invitados, y un cuidado jardín de inspiración mediterránea que enmarca la propiedad con elegancia. Además, incluye una cochera con capacidad para dos vehículos. Los interiores han sido pensados para ofrecer una experiencia de vida luminosa, elegante y confortable, con grandes ventanales que conectan el interior con el exterior y una selección de acabados de alta gama. Villa Ulises será construida según los más altos estándares de calidad, utilizando materiales de primera categoría y la última tecnología en eficiencia, sostenibilidad y confort. Una propiedad única, ideal para quienes buscan un hogar sofisticado y funcional en uno de los enclaves más prestigiosos de la Costa Blanca. #ref:CBS545N
1.185.000 €
Viviendas de lujo con vistas panorámicas en un entorno natural único, Istán, Marbella
Istán

Viviendas de lujo con vistas panorámicas en un entorno natural único, Istán, Marbella

Ubicado en el prestigioso Sierra Blanca Country Club, este exclusivo enclave de solo tres villas orientadas al suroeste ofrece una combinación excepcional de vida refinada y belleza natural intacta. Situado en una comunidad cerrada y segura, promete privacidad, elegancia y tranquilidad en una de las zonas más codiciadas de la Costa del Sol. Diseñadas cuidadosamente para aprovechar al máximo su posición elevada, las villas disfrutan de vistas panorámicas ininterrumpidas que se extienden sobre los pinares esmeralda de Sierra Blanca, el brillante mar Mediterráneo y el tranquilo embalse de Istán. La elegancia arquitectónica se une al confort moderno en cada detalle, con espacios interiores luminosos que se abren de forma fluida a amplias terrazas, fusionando interior y exterior. Situada en las colinas sobre Istán, la comunidad está rodeada de un paisaje natural protegido, con vistas al embalse de La Concepción y a las imponentes cumbres de la Sierra de las Nieves, hoy declarada Reserva de la Biosfera por la UNESCO. La zona es un paraíso para la vida silvestre, hogar de especies autóctonas como alcornoques, romero silvestre, águilas reales y cabras montesas. Amantes de la naturaleza y de la aventura encontrarán aquí un sinfín de posibilidades: senderismo, kayak, avistamiento de aves o barranquismo en paisajes fluviales espectaculares. Y a pesar de su entorno sereno y apartado, esta ubicación está perfectamente conectada: a solo 10 minutos de Puente Romano, 15 minutos de Puerto Banús, 20 minutos del centro de Marbella y menos de una hora del Aeropuerto Internacional de Málaga. Más que una vivienda, es un estilo de vida marcado por la serenidad, la sofisticación y el ritmo envolvente de la naturaleza. #ref:CBSH1151
Desde 1.395.000 €
Apartamento 3 habitaciones Venta Andorra la Vella
Centro

Apartamento 3 habitaciones Venta Andorra la Vella

118 m²Tamaño32 Baños
Exclusiva promoción de obra nueva situada a tan solo 500 metros del centro de Andorra la Vella y de su principal eje comercial.~El edificio, de 14 plantas, tiene prevista su finalización para diciembre de 2027 y ofrecerá un entorno moderno, cómodo y funcional con zonas ajardinadas y una pista de pádel.~~Las viviendas se caracterizan por su diseño contemporáneo, la eficiencia energética tipo A y el uso de materiales de primera calidad.~Todas disponen de espacio exterior con prácticos balcones o terrazas, y una cuidada orientación que garantiza luz natural y confort térmico durante todo el año.~~Características principales~Estructura y fachada: sistema de hormigón prefabricado y fachada ventilada con revestimiento cerámico imitación hormigón y madera tecnológica, que aporta elegancia y durabilidad.~Carpintería exterior: aluminio o PVC con rotura de puente térmico y triple acristalamiento, garantizando el mejor aislamiento térmico y acústico.~Climatización: sistema de suelo radiante-refrescante con producción de ACS mediante red FEDA Ecoterm, máxima eficiencia y confort.~Domótica: preinstalación domótica escalable y cortinas opacas motorizadas en salón.~Iluminación LED en cocinas, baños y zonas comunes.~Preinstalación para vehículo eléctrico en plazas de aparcamiento.~~Acabados interiores~Suelo estratificado SPC de Grato y gres porcelánico antideslizante en balcones y terrazas.~Cocinas totalmente equipadas con mobiliario MOBALPA o similar, encimera CERATOP o similar, y electrodomésticos SIEMENS o equivalente.~Baños con mobiliario suspendido, grifería termostática y plato de ducha de resina con mampara.~Puerta de entrada blindada y puertas interiores lacadas.~~Sostenibilidad y eficiencia~Gracias a su diseño constructivo, aislamiento avanzado y sistemas energéticos de última generación, la promoción obtiene la máxima calificación energética A, reduciendo el consumo y el impacto ambiental.~~Este inmueble de 100 m2 es una primera planta con un balcon de 18 m2 y en orientación Sud, por lo que tiene sol todo el día.~Dispone de:~-Entrada con armario.~-Salón comedor amplio, cocina equipada.~-Baño de cortesía.~-Lavadero funcional.~-Baño completo~-2 habitaciones amplias con armarios empotrados.~-Suite principal con armarios y baño completo~-Salida al balcón desde cualquier estancia.~Posibilidad de compra de dos plazas de aparcamiento y un trastero.~~Inmobiliaria Gali a su disposición #ref:04755/5210
721.000 €
Apartamento 2 habitaciones Venta Andorra la Vella
Centro

Apartamento 2 habitaciones Venta Andorra la Vella

84 m²Tamaño22 Baños
Exclusiva promoción de obra nueva situada a tan solo 500 metros del centro de Andorra la Vella y de su principal eje comercial.~El edificio, de 14 plantas, tiene prevista su finalización para diciembre de 2027 y ofrecerá un entorno moderno, cómodo y funcional con zonas ajardinadas y una pista de pádel.~~Las viviendas se caracterizan por su diseño contemporáneo, la eficiencia energética tipo A y el uso de materiales de primera calidad.~Todas disponen de espacio exterior con prácticos balcones o terrazas, y una cuidada orientación que garantiza luz natural y confort térmico durante todo el año.~~Características principales~Estructura y fachada: sistema de hormigón prefabricado y fachada ventilada con revestimiento cerámico imitación hormigón y madera tecnológica, que aporta elegancia y durabilidad.~Carpintería exterior: aluminio o PVC con rotura de puente térmico y triple acristalamiento, garantizando el mejor aislamiento térmico y acústico.~Climatización: sistema de suelo radiante-refrescante con producción de ACS mediante red FEDA Ecoterm, máxima eficiencia y confort.~Domótica: preinstalación domótica escalable y cortinas opacas motorizadas en salón.~Iluminación LED en cocinas, baños y zonas comunes.~Preinstalación para vehículo eléctrico en plazas de aparcamiento.~~Acabados interiores~Suelo estratificado SPC de Grato y gres porcelánico antideslizante en balcones y terrazas.~Cocinas totalmente equipadas con mobiliario MOBALPA o similar, encimera CERATOP o similar, y electrodomésticos SIEMENS o equivalente.~Baños con mobiliario suspendido, grifería termostática y plato de ducha de resina con mampara.~Puerta de entrada blindada y puertas interiores lacadas.~~Sostenibilidad y eficiencia~Gracias a su diseño constructivo, aislamiento avanzado y sistemas energéticos de última generación, la promoción obtiene la máxima calificación energética A, reduciendo el consumo y el impacto ambiental.~~Este inmueble de 84 m2 es una segunda planta con un balcon de 4,62 m2 y en orientación Norte.~Dispone de:~-Entrada con armario.~-Salón comedor amplio, cocina equipada.~-Lavadero funcional y baño completo en una estancia.~-1 habitación amplia con armarios empotrados.~-Suite principal con armarios y baño completo~-Salida al balcón desde el salón dando privacidad.~Posibilidad de compra de una plaza de aparcamiento y un trastero.~~Inmobiliaria Gali a su disposición #ref:04724/5210
540.000 €
Apartamento 3 habitaciones Venta Andorra la Vella
Centro

Apartamento 3 habitaciones Venta Andorra la Vella

118 m²Tamaño32 Baños
Exclusiva promoción de obra nueva situada a tan solo 500 metros del centro de Andorra la Vella y de su principal eje comercial.~El edificio, de 14 plantas, tiene prevista su finalización para diciembre de 2027 y ofrecerá un entorno moderno, cómodo y funcional con zonas ajardinadas y una pista de pádel.~~Las viviendas se caracterizan por su diseño contemporáneo, la eficiencia energética tipo A y el uso de materiales de primera calidad.~Todas disponen de espacio exterior con prácticos balcones o terrazas, y una cuidada orientación que garantiza luz natural y confort térmico durante todo el año.~~Características principales~Estructura y fachada: sistema de hormigón prefabricado y fachada ventilada con revestimiento cerámico imitación hormigón y madera tecnológica, que aporta elegancia y durabilidad.~Carpintería exterior: aluminio o PVC con rotura de puente térmico y triple acristalamiento, garantizando el mejor aislamiento térmico y acústico.~Climatización: sistema de suelo radiante-refrescante con producción de ACS mediante red FEDA Ecoterm, máxima eficiencia y confort.~Domótica: preinstalación domótica escalable y cortinas opacas motorizadas en salón.~Iluminación LED en cocinas, baños y zonas comunes.~Preinstalación para vehículo eléctrico en plazas de aparcamiento.~~Acabados interiores~Suelo estratificado SPC de Grato y gres porcelánico antideslizante en balcones y terrazas.~Cocinas totalmente equipadas con mobiliario MOBALPA o similar, encimera CERATOP o similar, y electrodomésticos SIEMENS o equivalente.~Baños con mobiliario suspendido, grifería termostática y plato de ducha de resina con mampara.~Puerta de entrada blindada y puertas interiores lacadas.~~Sostenibilidad y eficiencia~Gracias a su diseño constructivo, aislamiento avanzado y sistemas energéticos de última generación, la promoción obtiene la máxima calificación energética A, reduciendo el consumo y el impacto ambiental.~~Este inmueble de 100 m2 es una primera planta con un balcon de 18 m2 y en orientación Sud, por lo que tiene sol todo el día.~Dispone de:~-Entrada con armario.~-Salón comedor amplio, cocina equipada.~-Baño de cortesía.~-Lavadero funcional.~-Baño completo~-2 habitaciones amplias con armarios empotrados.~-Suite principal con armarios y baño completo~-Salida al balcón desde cualquier estancia.~Posibilidad de compra de dos plazas de aparcamiento y un trastero.~~Inmobiliaria Gali a su disposición #ref:04752/5210
682.000 €
Espectacular villa romana de lujo en Sierra Blanca, Marbella
Milla de Oro

Espectacular villa romana de lujo en Sierra Blanca, Marbella

1.790 m²Tamaño2.078 m²Parcela710 Baños
Hermosa villa de estilo romano situada en una de las zonas más exclusivas de Marbella: la prestigiosa Urbanización Sierra Blanca. Con impresionantes vistas al mar y la montaña, esta propiedad única en España combina arquitectura clásica con las más altas prestaciones de lujo moderno. La villa cuenta con 1.790 m² útiles distribuidos en estancias amplias y luminosas, sobre una parcela de 2.078 m². Su espectacular piscina exterior de 40 m² con isla central no solo es un elemento distintivo del diseño, sino que ostenta el título de ser la piscina privada más grande de Europa. Además, dispone de piscina interior climatizada, jacuzzi, sauna y una elegante sala de cine privada. Ofrece 7 dormitorios en suite, 10 cuartos de baño, dos bodegas, un majestuoso vestíbulo con ascensor panorámico, así como piedras naturales macizas en toda la construcción que aportan solidez y carácter. La cocina principal, junto a varias cocinas auxiliares, se complementa con un sistema de domótica de última generación, calefacción por suelo radiante, cristales antibalas, sistemas avanzados de seguridad, iluminación personalizable, y mucho más. El garaje tiene capacidad para cinco vehículos, y la propiedad se entrega completamente amueblada con piezas de diseño y mobiliario de superlujo. La villa está prácticamente a estrenar, lista para entrar a vivir. #ref:CBSH1127
23.000.000 €
oportunidad! 2 casas adosadas + solar plano segregable al lado de la estación de Bellaterra
Bellaterra

oportunidad! 2 casas adosadas + solar plano segregable al lado de la estación de Bellaterra

355 m²Tamaño3.000 m²Parcela64 Baños
COLDWELL BANKER COLDWELL BANKER tiene el placer de presentarles esta oportunidad!. Se trata de un solar de 3000m2 que alberga dos casas adosadas independientes, que comparten el mismo acceso a la propiedad y cuentan con entradas propias para cada una. Las dos adosadas son exactamente iguales: En la planta baja se dispone el salón comedor, la cocina y aseo de cortesía. La planta primera cuenta con 3 habitaciones, una de ellas con baño en suite y las otras dos compartiendo un baño completo. En el semisótano se halla la lavandería y gran sala polivalente. Tanto la planta baja como el sótano tienen salidas al exterior, lo mismo que la planta superior, que en la habitación principal dispone de salida a una terraza deliciosa. La única diferencia sustancial entre las dos viviendas es que una de ellas tiene una terraza equipada con acceso desde el salón comedor y la otra adosada tiene acceso directo al jardín desde la planta semisótano. A demás sólo una de ellas tiene ascensor. El solar es muy espacioso, privado, tranquilo y con grandes árboles autóctonos al mas puro estilo de Bellaterra. Un verdadero oasis a 4 minutos andando hasta la zona comercial, la estación de Ferrocarriles y todos los servicios de la Población. Ideal para inversionistas que quieran arrendar las viviendas o bien reformarlas para venderlas, a la vez que podrán segregar el solar para venderlo como el último y más espacioso terreno plano cerca de la Estación. Disponemos del proyecto de parcelación aprobado por el Ayuntamiento. Existe la posibilidad de la división horizontal una vez hecha la segregación registral de la siguiente forma: La propiedad se puede dividir en dos parcelas. La Parcela A. de 1.649,59m2 con edificación existente de vivienda unifamiliar con planta sótano de 112,14m2, planta baja 104,75m2 y planta piso de 104,13m2. Total construido sobre rasante de 321,02m2, repartido a partes iguales entre las dos viviendas adosadas. La Parcela B. de 1.431,42m2 ofrece todo el atractivo residencial que puedas imaginar. Se trata del último terreno disponible y sin construir al lado de la Estación de Bellaterra. Un lujo para los que no quieren depender del coche para acercarte a cualquier servicio. A demás el solar es completamente plano con las ventajas que ello comporta; poder construir la casa de tus sueños en una sola planta, sin necesidad de escaleras. Y por último el solar está repleto de preciosos arboles que te haran sentir realmente en medio de la naturaleza. UBICACIÓN: Bellaterra se encuentra en una zona elevada y soleada, entre las poblaciones de Sant Cugat, Sabadell, Sant Quirze y Cerdanyola. Fiel en sus orígenes, se ha consolidado como zona de residencia por excelencia con una población familiar residente durante todo el año. Separada de la Sierra de Collserola, Bellaterra se orienta al mar por el Sureste y el Montseny por el Nordeste. Su enclave estratégico la sitúa a 12 minutos de Barcelona por la C-58 ya 20 minutos desde la AP-7 y la B-30. Esta conectividad permite acceder a todos los servicios deseables. En menos de 5 minutos estamos en los Hospitales de referencia, Universidades (UAB, UIC y ESADE), colegios Internacionales más prestigiosos (Ágora, Europa School International, Colegio japonés, Thau, Viaró, La Vall), Centros Comerciales (IKEA; Corte Inglés, Cines), Polígonos Industriales (Can Sant Joan, Riu sec,..) y Centros deportivos destacados. Cuenta con los servicios propios de una pequeña población como son una farmacia, oficina bancaria, Iglesia, restaurantes, Club Deportivo, peluquería, tienda para mascotas, gasolineras, entre otros. A demás de 2 Estaciones de Ferrocarriles de la Generalitat. Todo lo necesario para vivir en un entorno natural sin renunciar a la conexión inmediata con las ciudades que la rodean. #ref:CBSC241
1.495.000 €
Villa contemporánea con piscina en la azotea y cine exterior en Nueva Andalucía, Marbella
Nueva Andalucía

Villa contemporánea con piscina en la azotea y cine exterior en Nueva Andalucía, Marbella

612 m²Tamaño45 Baños
Ubicada en una tranquila comunidad cerrada en el corazón de Nueva Andalucía, esta villa pareada de nueva construcción ofrece un estilo de vida moderno en una de las zonas más deseadas de Marbella. Rodeada de jardines comunitarios y a pocos minutos de campos de golf, playas, restaurantes de alta gama y el colegio Aloha, esta propiedad combina serenidad y comodidad. Finalizada en diciembre de 2023, la vivienda cuenta con un total de 612m², incluyendo 372m² interiores, 240m² de terrazas y una parcela privada de 91m². Una escalera privada conecta las cuatro plantas, creando una distribución funcional y fluida que integra el interior y el exterior con un diseño arquitectónico inteligente. Orientada al sur, la villa ofrece vistas panorámicas al mar Mediterráneo, la montaña La Concha y el puerto deportivo de Puerto Banús. Grandes ventanales y puertas correderas de suelo a techo inundan el interior de luz natural y maximizan la conexión con el entorno exterior. La planta principal cuenta con un salón-comedor de planta abierta con acceso a una amplia terraza, perfecta para relajarse o recibir invitados. La cocina minimalista, equipada con electrodomésticos Gaggenau de alta gama, combina diseño moderno y funcionalidad. La casa dispone de cuatro dormitorios y cinco baños, tres de ellos en suite. Tres dormitorios se encuentran en la planta superior y el cuarto en la planta baja, ideal como suite de invitados, oficina o gimnasio. El interior se completa con suelos de roble, tonos neutros y baños de mármol Porcelanosa para un ambiente elegante y sereno. Una de las características más destacadas es la terraza privada en la azotea con piscina tipo plunge y un cine exterior totalmente equipado, ideal para disfrutar de los atardeceres de Marbella o veladas bajo las estrellas. Incluye tres plazas de garaje subterráneas con acceso directo a la vivienda. Los residentes también disfrutan de una gran piscina comunitaria y jardines bien cuidados. Con colegios internacionales, tiendas, restaurantes y el estilo de vida vibrante de Puerto Banús a pocos minutos, esta propiedad es perfecta para vivir todo el año o como una lujosa casa de vacaciones. #ref:CBSH781
5.500.000 €
Coldwell Banker Andorra
Na Maria Pla, 20. Local 1
AD500, Andorra La Vella
De 9:00 a 19:00 h.
Newsletter

Encuentra tu hogar Coldwell Banker® en el extranjero

Visita nuestras páginas web internacionales y encuentra tu propiedad ideal en los destinos más exclusivos

Utilizamos cookies propias y de terceros para hacer funcionar de manera segura nuestra página web y personalizar su contenido. Igualmente, utilizamos cookies para medir y obtener datos de la navegación que realiza y para ajustar la publicidad a sus gustos y preferencias. Pulse el botón "Aceptar todas" para confirmar que ha leído y aceptado la información presentada. Para administrar o deshabilitar estas cookies haga click en "Configuración". Puede obtener más información en nuestra política de cookies.
Modificar cookies
Técnicas y funcionales Siempre activas
Este sitio web utiliza Cookies propias para recopilar información con la finalidad de mejorar nuestros servicios. Si continua navegando, supone la aceptación de la instalación de las mismas. El usuario tiene la posibilidad de configurar su navegador pudiendo, si así lo desea, impedir que sean instaladas en su disco duro, aunque deberá tener en cuenta que dicha acción podrá ocasionar dificultades de navegación de la página web.
Analíticas y personalización
Permiten realizar el seguimiento y análisis del comportamiento de los usuarios de este sitio web. La información recogida mediante este tipo de cookies se utiliza en la medición de la actividad de la web para la elaboración de perfiles de navegación de los usuarios con el fin de introducir mejoras en función del análisis de los datos de uso que hacen los usuarios del servicio. Permiten guardar la información de preferencia del usuario para mejorar la calidad de nuestros servicios y para ofrecer una mejor experiencia a través de productos recomendados.
Marketing y publicidad
Estas cookies son utilizadas para almacenar información sobre las preferencias y elecciones personales del usuario a través de la observación continuada de sus hábitos de navegación. Gracias a ellas, podemos conocer los hábitos de navegación en el sitio web y mostrar publicidad relacionada con el perfil de navegación del usuario.