Apartamento 2 habitaciones Venta Andorra la Vella
#ref:04720/5210
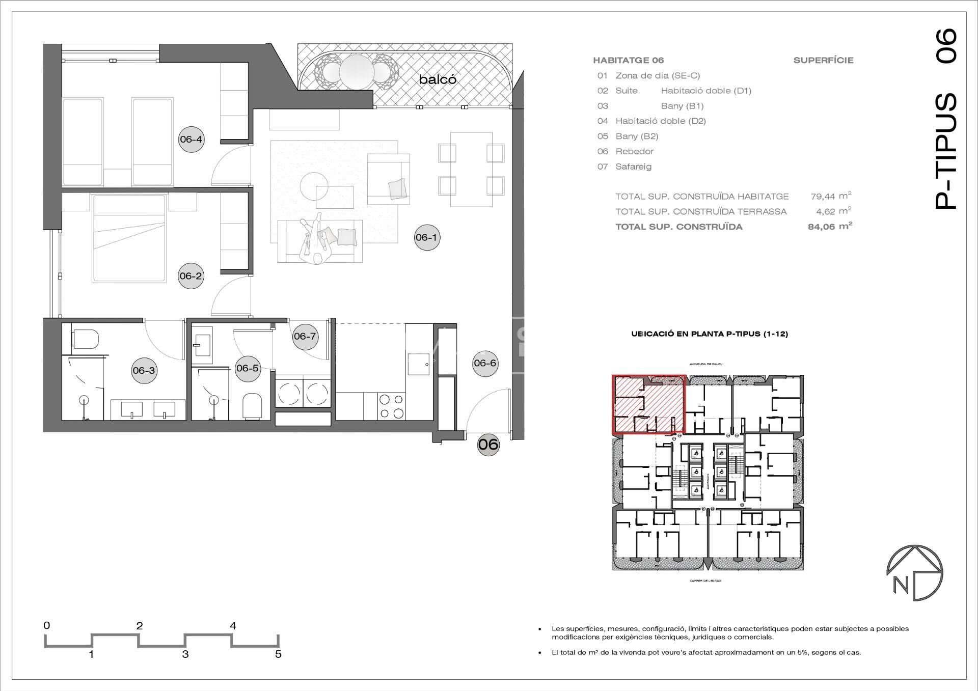
Detalles de la propiedad
- En trámite
Acerca de Andorra la Vella
Andorra la Vella es la capital del Principado de Andorra, ubicada en las montañas orientales de los Pirineos entre Francia y España.
Andorra la Vella está situada en la región de Andorra, un pequeño país sin salida al mar conocido por sus impresionantes paisajes montañosos. Está enclavada en el corazón de los Pirineos, ofreciendo un entorno pintoresco con vistas impresionantes.
Una de las principales ventajas de Andorra la Vella es su ubicación estratégica. Sirve como puerta de entrada entre Francia y España, lo que la hace fácilmente accesible desde las principales ciudades de ambos países. El estatus de paraíso fiscal de la principado también atrae a empresas y visitantes que buscan condiciones económicas favorables.
Andorra la Vella ofrece una alta calidad de vida con aire limpio, bajos índices de criminalidad y una atmósfera tranquila. La ciudad es conocida por su excelente sistema de salud, educación de calidad y servicios públicos eficientes. Los residentes se benefician de un fuerte sentido de comunidad y un entorno seguro para las familias.
A pesar de su tamaño reducido, Andorra la Vella ofrece una gran cantidad de actividades tanto para residentes como para visitantes. Las montañas circundantes ofrecen amplias oportunidades para actividades al aire libre como senderismo, esquí y ciclismo de montaña. Además, la ciudad cuenta con modernos centros comerciales, eventos culturales y una animada vida nocturna. El complejo termal Caldea cercano ofrece experiencias de relajación y bienestar, convirtiéndolo en un destino popular durante todo el año.
El mercado inmobiliario de Andorra la Vella se caracteriza por una mezcla de tradicionales chalets de montaña y modernos apartamentos. El mercado atrae tanto a locales como a compradores internacionales que buscan una combinación única de belleza natural, ventajas económicas y alto nivel de vida. Las propiedades van desde acogedoras casas de montaña hasta lujosas villas con impresionantes vistas a la montaña, adaptándose a diferentes preferencias y estilos de vida.
Andorra la Vella combina el encanto de un entorno montañoso con las comodidades de una ciudad moderna, ofreciendo a residentes y visitantes una combinación única de belleza natural, ventajas económicas y un alto nivel de vida.























