Piso exterior reformado en Malasaña, Madrid
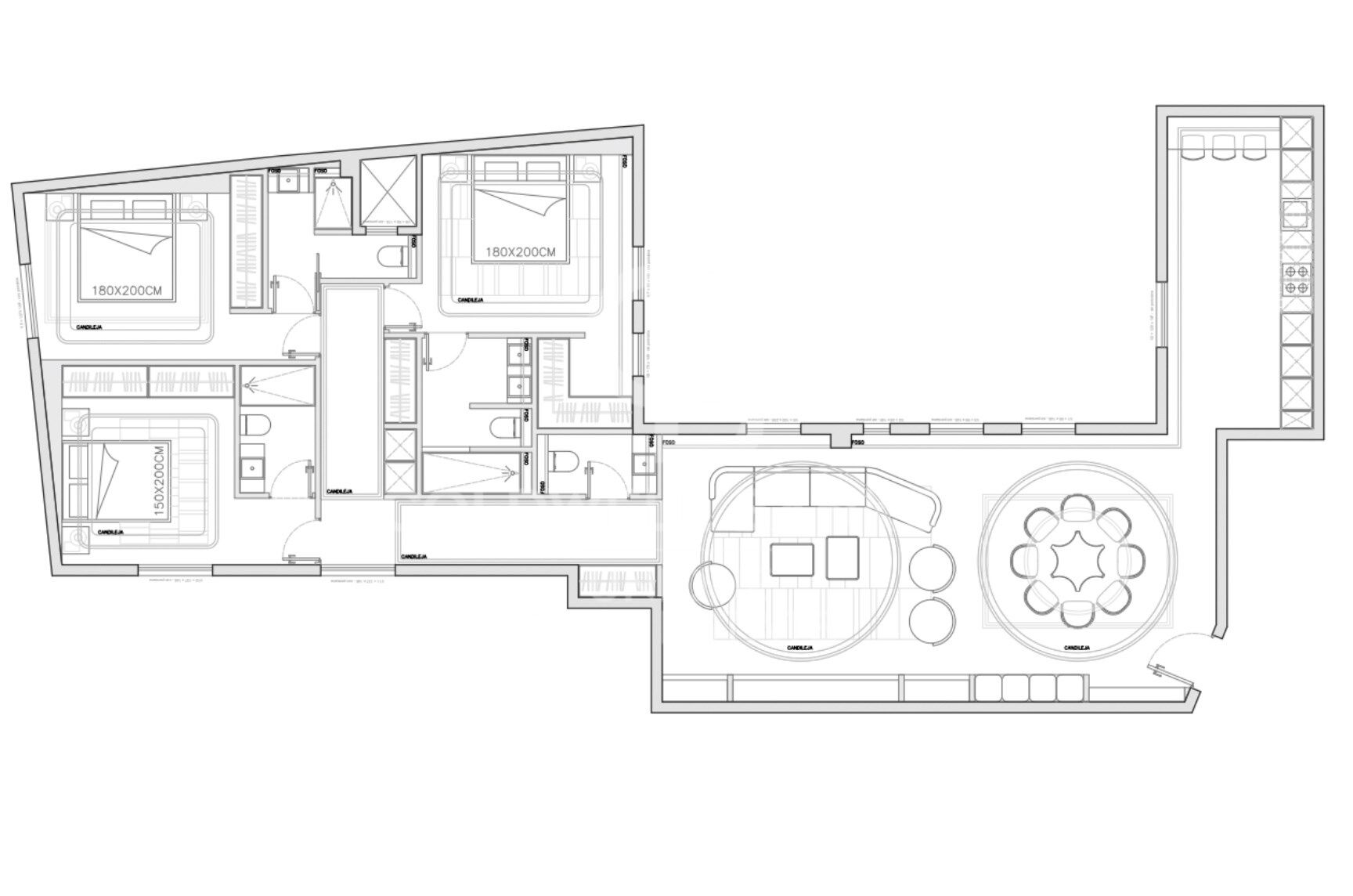
La vivienda, con 176 m² construidos, se sitúa en una segunda planta y destaca por su excelente distribución y abundante luz natural, creando un ambiente acogedor y sofisticado en cada estancia.
El inmueble dispone de tres amplias habitaciones, diseñadas para ofrecer el máximo confort, así como tres baños completos y un aseo de cortesía, todos ellos con acabados actuales y de calidad. La reforma ha sabido combinar a la perfección estilo y funcionalidad, dando lugar a espacios modernos, elegantes y perfectamente adaptados a las necesidades de la vida contemporánea.
Ubicado en una finca con servicio de portería, este piso garantiza comodidad y seguridad, convirtiéndose en una opción ideal tanto para residencia habitual como para inversión.
Su privilegiada localización en Malasaña permite disfrutar de una amplia oferta cultural, gastronómica y de ocio, así como de excelentes conexiones con el resto de la ciudad, haciendo de esta propiedad una oportunidad única en el centro de Madrid.
#ref:CBUQ1210
Detalles de la propiedad
Características de la propiedad
- En trámite
Acerca de Universidad - Malasaña
El barrio de Universidad – Malasaña, situado en el distrito Centro de la Comunidad de Madrid, es una de las zonas más auténticas, alternativas y con mayor personalidad de la capital. Su ubicación privilegiada entre Gran Vía, San Bernardo y la calle Fuencarral, junto a su ambiente joven y cultural, lo convierten en una opción ideal para quienes buscan vida urbana, creatividad y buena calidad de vida.
Conocido por su historia ligada a la Movida Madrileña, hoy Malasaña ofrece una gran variedad de actividades culturales y de ocio: tiendas vintage, bares de autor, teatros independientes y arte urbano en cada esquina. En el mercado inmobiliario, predominan los pisos con encanto, rehabilitados y de gran valor arquitectónico, muy demandados por jóvenes profesionales, creativos e inversores.



























































