Donde el Diseño se Encuentra con la Luz del Mediterráneo
tamaño
278 m²
parcela
1.058 m²
precio
395.000 €
Arquitectura mediterránea con esencia contemporánea
En el corazón de Vall de Sol, Jávea, nace este exclusivo proyecto residencial donde diseño, funcionalidad y entorno natural conviven en armonía. Una propuesta única que combina materiales nobles, líneas limpias y espacios bañados por luz natural.
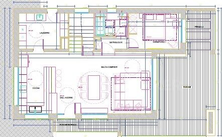
Con una superficie construida de 278,69 m², la vivienda se distribuye en tres niveles que optimizan la amplitud y el confort:
Planta baja (110,64 m²)
Zona de día con salón-comedor de concepto abierto y cocina integrada, todo conectado con la terraza principal y la piscina. Tres dormitorios (uno en suite) y dos baños completos.
Planta sótano (94,92 m²)
Espacio multifuncional con sala diáfana, lavadero, zona técnica y garaje cerrado de 27,56 m².
Planta cubierta (73,13 m²)
Solárium privado, ideal para disfrutar del clima mediterráneo y las vistas abiertas.
Zonas exteriores
Piscina privada de 24,50 m²
Terraza principal de 38,40 m²
Jardines con paisajismo natural
Características destacadas
Proyecto de interiorismo integral con acabados en piedra natural, madera y microcemento
Cocina de diseño equipada con electrodomésticos integrados
Climatización por aerotermia y sistema de ventilación eficiente
Amplios ventanales que integran interior y exterior
Iluminación ambiental y materiales de alta calidad
Licencia de obra aprobada
Inicio de construcción inmediato
Entrega estimada: consultar disponibilidad actual
XABIA - Vall de Sol es más que una vivienda: es un estilo de vida. Ideal para quienes valoran la tranquilidad, el diseño y una ubicación privilegiada en la Costa Blanca.
#ref:CBS493N
En el corazón de Vall de Sol, Jávea, nace este exclusivo proyecto residencial donde diseño, funcionalidad y entorno natural conviven en armonía. Una propuesta única que combina materiales nobles, líneas limpias y espacios bañados por luz natural.
Con una superficie construida de 278,69 m², la vivienda se distribuye en tres niveles que optimizan la amplitud y el confort:
Planta baja (110,64 m²)
Zona de día con salón-comedor de concepto abierto y cocina integrada, todo conectado con la terraza principal y la piscina. Tres dormitorios (uno en suite) y dos baños completos.
Planta sótano (94,92 m²)
Espacio multifuncional con sala diáfana, lavadero, zona técnica y garaje cerrado de 27,56 m².
Planta cubierta (73,13 m²)
Solárium privado, ideal para disfrutar del clima mediterráneo y las vistas abiertas.
Zonas exteriores
Piscina privada de 24,50 m²
Terraza principal de 38,40 m²
Jardines con paisajismo natural
Características destacadas
Proyecto de interiorismo integral con acabados en piedra natural, madera y microcemento
Cocina de diseño equipada con electrodomésticos integrados
Climatización por aerotermia y sistema de ventilación eficiente
Amplios ventanales que integran interior y exterior
Iluminación ambiental y materiales de alta calidad
Licencia de obra aprobada
Inicio de construcción inmediato
Entrega estimada: consultar disponibilidad actual
XABIA - Vall de Sol es más que una vivienda: es un estilo de vida. Ideal para quienes valoran la tranquilidad, el diseño y una ubicación privilegiada en la Costa Blanca.
#ref:CBS493N
Detalles de la propiedad
zona
Costa Blanca
área
Alicante
localización
Jávea / Xàbia
distrito
Cap Martí - El Tossalet - Pinomar
Tipo de inmueble
terreno
venta
395.000 €
Referencia
CBS493N
Superficie
233 m2
Superficie construida
278 m2
Certificación energética
-
A
92-100 -
B
81-91 -
C
69-80 -
D
55-68 -
E
39-54 -
F
21-38 -
G
1-20
Acerca de Jávea / Xàbia
Jávea es una localidad costera situada en la provincia de Alicante, en la Comunidad Valenciana, España. Se encuentra en la costa norte de la provincia, en la comarca de la Marina Alta. Jávea es conocida por sus playas, su puerto deportivo y su casco antiguo con edificios históricos. También es un destino turístico popular en verano debido a su clima cálido y su ambiente mediterráneo.

























































