Appartement à rénover dans un emplacement premium à côté de la Plaça Francesc Macià
Ce bien, situé en étage élevé, se distingue par sa double orientation et son balcon avec une vue agréable sur l'Avinguda Josep Tarradellas, ce qui lui apporte beaucoup de lumière naturelle tout au long de la journée.
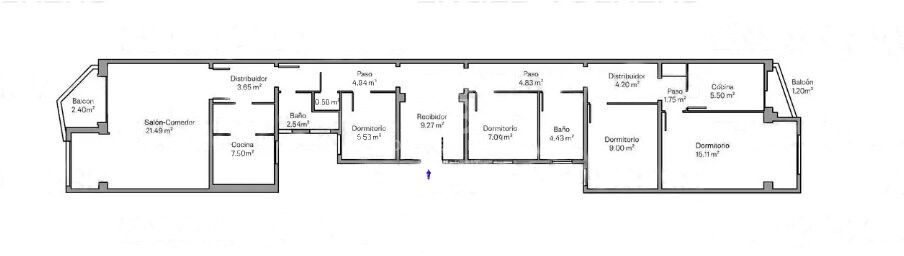
Actuellement, l'appartement se compose de 6 chambres (4 doubles et 2 simples), une cuisine indépendante et 2 salles de bain complètes. Le salon principal donne directement sur le balcon, offrant un espace agréable pour profiter de l'extérieur. La distribution sépare clairement les zones de jour et de nuit, avec des pièces orientées à la fois vers l'avant et l'arrière de l'immeuble.
Cet appartement à rénover est idéal tant pour les familles souhaitant créer leur propre logement dans un emplacement imbattable que pour les investisseurs à la recherche d'un bien à fort potentiel de valorisation grâce à ses multiples possibilités de redistribution.
Emplacement exceptionnel : La Nova Esquerra de l'Eixample est un quartier résidentiel consolidé avec tous les services nécessaires : hôpitaux (comme le Sagrat Cor), centres commerciaux comme L'Illa, commerces de proximité, écoles publiques et privées, institutions culturelles et sportives, ainsi qu'un large éventail de restaurants.
Les connexions avec les transports publics sont excellentes, avec des arrêts de métro (L5), de bus et de tram à proximité.
Si vous cherchez un appartement à rénover à votre goût dans le centre de Barcelone, cette propriété est une option idéale pour tirer le meilleur parti de son grand potentiel. Contactez-nous pour plus d'informations et pour organiser une visite.
#ref:CBE01154
Détails de la propriété
Caractéristiques de l'établissement
-
A
92-100 -
B
81-91 -
C
69-80 -
D
55-68 -
E
39-54 -
F
21-38 -
G
1-20
à propos de Dreta de l'Eixample
La gemme éblouissante de la Dreta de l'Eixample, Barcelone, rayonne d'un charme spécial qui captive ceux qui s'aventurent dans ses rues empreintes d'histoire et de modernité. Cette zone, située au cœur de la ville, offre une expérience unique qui combine l'élégance classique avec une scène contemporaine vibrante.
Les origines de la Dreta de l'Eixample sont entrelacées avec l'expansion urbaine de Barcelone au XIXe siècle, et depuis lors, elle a évolué pour devenir un creuset de styles architecturaux qui reflètent sa riche héritage. Des bâtiments emblématiques tels que la Casa de les Punxes et la Casa Calvet témoignent du talent des architectes qui ont laissé leur empreinte dans cette partie de la ville.
La Dreta de l'Eixample n'est pas seulement une vitrine architecturale, elle abrite également une pulsation culturelle vibrante. Des galeries d'art contemporain, des boutiques de design et des cafés charmants bordent ses rues, créant une atmosphère cosmopolite qui invite à explorer chaque coin.




















































