Terreno urbano apto para casa unifamiliar en venta en Font del Mont
parcela
536 m²
precio
410.000 €
Magnífica parcela de 536 m², orientada al sudeste, ideal para la construcción de una vivienda unifamiliar.
Ubicada en un entorno privilegiado, en plena naturaleza dentro del Parque de Collserola, esta propiedad ofrece tranquilidad absoluta sin renunciar a la cercanía de la ciudad. Disfruta de bonitas vistas despejadas al parque y de una excelente orientación que garantiza luz natural durante todo el día.
La parcela se encuentra próxima a algunos de los mejores colegios de Barcelona y cuenta con fácil acceso a la Ronda de Dalt, lo que facilita una excelente conexión con el resto de la ciudad.
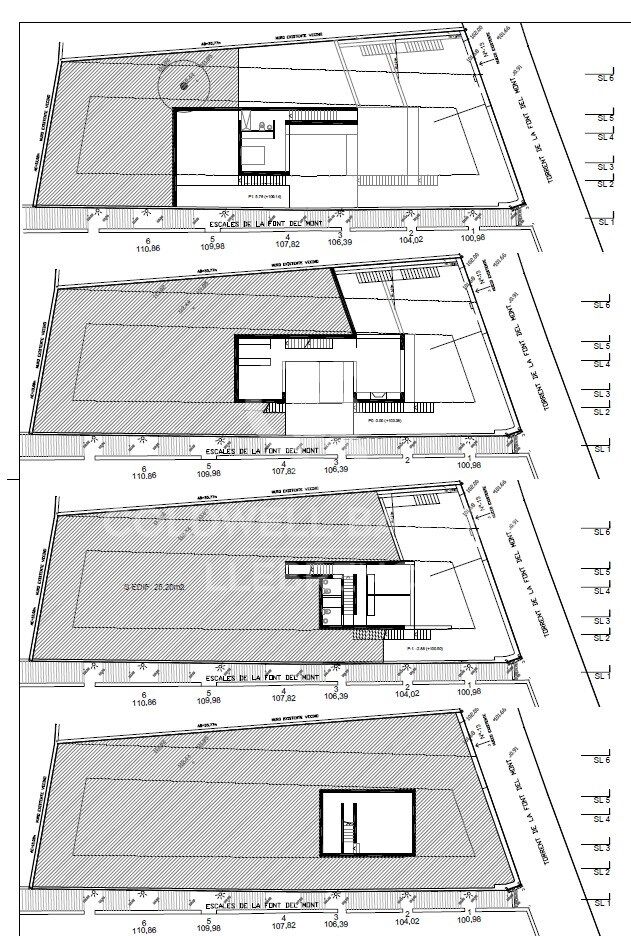
Se incluye un proyecto de construcción para una vivienda de aproximadamente 210 m², distribuida en varias plantas, lo que permite optimizar el espacio y adaptarlo a diferentes necesidades.
Además, está bien comunicada mediante transporte público, a pocos minutos del apeadero del funicular de Vallvidrera (FGC - Ctra. de les Aigües), con conexión directa al centro de Barcelona en tan solo 20 minutos.
Una oportunidad única para construir la casa de tus sueños en un entorno natural incomparable, a un paso de la ciudad.
#ref:CB2111LL
Ubicada en un entorno privilegiado, en plena naturaleza dentro del Parque de Collserola, esta propiedad ofrece tranquilidad absoluta sin renunciar a la cercanía de la ciudad. Disfruta de bonitas vistas despejadas al parque y de una excelente orientación que garantiza luz natural durante todo el día.
La parcela se encuentra próxima a algunos de los mejores colegios de Barcelona y cuenta con fácil acceso a la Ronda de Dalt, lo que facilita una excelente conexión con el resto de la ciudad.
Se incluye un proyecto de construcción para una vivienda de aproximadamente 210 m², distribuida en varias plantas, lo que permite optimizar el espacio y adaptarlo a diferentes necesidades.
Además, está bien comunicada mediante transporte público, a pocos minutos del apeadero del funicular de Vallvidrera (FGC - Ctra. de les Aigües), con conexión directa al centro de Barcelona en tan solo 20 minutos.
Una oportunidad única para construir la casa de tus sueños en un entorno natural incomparable, a un paso de la ciudad.
#ref:CB2111LL
Detalles de la propiedad
zona
Barcelona provincia
área
Barcelona ciudad
localización
Barcelona
distrito
Sant Gervasi- Galvany
Tipo de inmueble
terreno
venta
410.000 €
Referencia
CB2111LL
Certificación energética
- En trámite
Acerca de Sant Gervasi - Galvany
Sant Gervasi-Galvany, un tesoro escondido en el corazón de Barcelona, se destaca por su rica herencia cultural y la vida vibrante que ofrece a sus residentes. Este distrito residencial ha logrado una fusión armoniosa entre la elegancia histórica y la modernidad, convirtiéndose en un lugar codiciado para aquellos que buscan una experiencia de vida sofisticada y equilibrada.
Con amplias avenidas y calles arboladas, Sant Gervasi-Galvany brinda un entorno sereno y agradable. Desde modernos apartamentos hasta majestuosas casas señoriales, el mercado inmobiliario ofrece opciones diversas para diferentes estilos de vida y preferencias.
















