Piso con terraza a reformar en calle Santaló, Barcelona
tamaño
214 m²
Habitaciones
5
Baños
3
terraza
precio
1.300.000 €
Piso totalmente a reformar(las fotos son renders), con gran potencial y una distribución excepcionalmente cuadrada, situado en una de las zonas más valoradas de Sant Gervasi - Galvany, en calle Santaló.
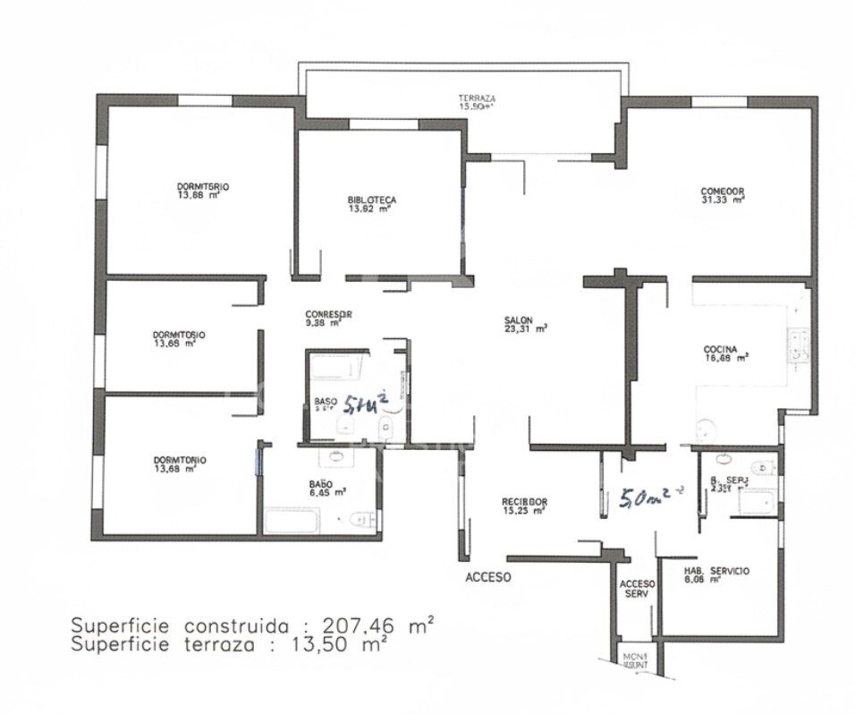
La vivienda cuenta con una superficie construida aproximada de 214 m², lo que permite múltiples opciones de redistribución y un proyecto de reforma a medida. Gracias a su planta amplia y bien proporcionada, prácticamente sin pasillos largos, cada metro se aprovecha al máximo, facilitando la creación de espacios amplios, funcionales y luminosos.
Actualmente la distribución ofrece varias estancias de buen tamaño, zona de día claramente diferenciada de la zona de noche, cocina independiente, varios baños y una terraza de aproximadamente 13,5 m², ideal para disfrutar del exterior en pleno corazón de la ciudad. La configuración permite plantear un gran salón-comedor, una cocina abierta o independiente, varios dormitorios dobles y una cómoda suite principal, adaptándose a diferentes estilos de vida.
La vivienda se encuentra en una finca cuidada, con buen estado de conservación y vecindario tranquilo, un valor añadido para quienes buscan calidad de vida y privacidad.
Ubicación inmejorable: rodeada de todo tipo de servicios, comercios de proximidad, mercados, colegios, centros médicos, restauración y perfectamente comunicada mediante transporte público. Un barrio consolidado, residencial y muy demandado, que combina vida de barrio con cercanía al centro de Barcelona.
Una oportunidad única para crear una vivienda exclusiva en una de las mejores zonas de la ciudad.
El precio de venta no incluye impuestos ni gastos derivados de la compraventa que, conforme a la normativa vigente, corresponden al comprador: (i) en viviendas de segunda mano, el Impuesto sobre Transmisiones Patrimoniales (ITP) según tipo aplicable en la Comunidad Autónoma; (ii) en viviendas de obra nueva, el IVA y el Impuesto sobre Actos Jurídicos Documentados (AJD) según normativa vigente; (iii) aranceles notariales y registrales; y (iv) gastos de gestoría en caso de contratarse. Disponibilidad a acordar. La oferta está sujeta a cambios de precio o retirada del mercado sin previo aviso. Los datos expuestos, incluidas las superficies, tienen carácter meramente orientativo. Los honorarios de intermediación inmobiliaria serán asumidos por la parte correspondiente según el encargo suscrito. Se facilitará a toda persona interesada información detallada y personalizada antes de la entrega de cualquier cantidad a cuenta, conforme a la normativa estatal y autonómica aplicable.
#ref:CBES2834
La vivienda cuenta con una superficie construida aproximada de 214 m², lo que permite múltiples opciones de redistribución y un proyecto de reforma a medida. Gracias a su planta amplia y bien proporcionada, prácticamente sin pasillos largos, cada metro se aprovecha al máximo, facilitando la creación de espacios amplios, funcionales y luminosos.
Actualmente la distribución ofrece varias estancias de buen tamaño, zona de día claramente diferenciada de la zona de noche, cocina independiente, varios baños y una terraza de aproximadamente 13,5 m², ideal para disfrutar del exterior en pleno corazón de la ciudad. La configuración permite plantear un gran salón-comedor, una cocina abierta o independiente, varios dormitorios dobles y una cómoda suite principal, adaptándose a diferentes estilos de vida.
La vivienda se encuentra en una finca cuidada, con buen estado de conservación y vecindario tranquilo, un valor añadido para quienes buscan calidad de vida y privacidad.
Ubicación inmejorable: rodeada de todo tipo de servicios, comercios de proximidad, mercados, colegios, centros médicos, restauración y perfectamente comunicada mediante transporte público. Un barrio consolidado, residencial y muy demandado, que combina vida de barrio con cercanía al centro de Barcelona.
Una oportunidad única para crear una vivienda exclusiva en una de las mejores zonas de la ciudad.
El precio de venta no incluye impuestos ni gastos derivados de la compraventa que, conforme a la normativa vigente, corresponden al comprador: (i) en viviendas de segunda mano, el Impuesto sobre Transmisiones Patrimoniales (ITP) según tipo aplicable en la Comunidad Autónoma; (ii) en viviendas de obra nueva, el IVA y el Impuesto sobre Actos Jurídicos Documentados (AJD) según normativa vigente; (iii) aranceles notariales y registrales; y (iv) gastos de gestoría en caso de contratarse. Disponibilidad a acordar. La oferta está sujeta a cambios de precio o retirada del mercado sin previo aviso. Los datos expuestos, incluidas las superficies, tienen carácter meramente orientativo. Los honorarios de intermediación inmobiliaria serán asumidos por la parte correspondiente según el encargo suscrito. Se facilitará a toda persona interesada información detallada y personalizada antes de la entrega de cualquier cantidad a cuenta, conforme a la normativa estatal y autonómica aplicable.
#ref:CBES2834
Detalles de la propiedad
zona
Barcelona provincia
área
Barcelona ciudad
localización
Barcelona
distrito
Sant Gervasi- Galvany
Tipo de inmueble
piso
venta
1.300.000 €
Referencia
CBES2834
Habitaciones
5
Baños
3
Superficie construida
214 m2
Estado/conservación
para renovar
Características de la propiedad
ascensor
terraza
Certificación energética
- En trámite
Acerca de Sant Gervasi - Galvany
Sant Gervasi-Galvany, un tesoro escondido en el corazón de Barcelona, se destaca por su rica herencia cultural y la vida vibrante que ofrece a sus residentes. Este distrito residencial ha logrado una fusión armoniosa entre la elegancia histórica y la modernidad, convirtiéndose en un lugar codiciado para aquellos que buscan una experiencia de vida sofisticada y equilibrada.
Con amplias avenidas y calles arboladas, Sant Gervasi-Galvany brinda un entorno sereno y agradable. Desde modernos apartamentos hasta majestuosas casas señoriales, el mercado inmobiliario ofrece opciones diversas para diferentes estilos de vida y preferencias.










































