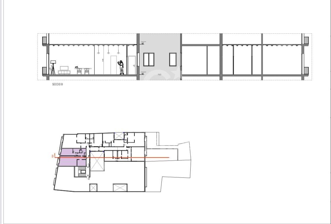
Oportunidad de inversión: 5 unidades catastrales con proyecto de reforma en finca regia en Las Ramblas de Barcelona
¿Buscas una inversión única en el corazón de Barcelona? Esta espectacular propiedad de 281m² en finca regia se encuentra en plena Rambla, una de las zonas más emblemáticas y turísticas de la ciudad. Ya cuenta con proyecto de reforma aprobado y segregación en 5 unidades catastrales, ideal para inversión inmobiliaria, alquiler turístico o residencial.
Ubicada a pocos pasos del Gran Teatre del Liceu, la Plaza Reial, el Mercado de la Boquería y el Port Vell, ofrece una ubicación estratégica con alto potencial de rentabilidad. No dejes pasar esta oportunidad en una de las calles con mayor demanda de Barcelona.
#ref:VCBES2709
Detalles de la propiedad
Características de la propiedad
- En trámite
Acerca de Barri Gòtic
El Barri Gòtic de Barcelona es el corazón histórico de la ciudad, ubicado en el centro de Barcelona, en la región de Cataluña. Este emblemático barrio es conocido por sus calles estrechas, plazas con encanto, y monumentos de gran valor histórico, como la Catedral de Barcelona y el Palau de la Generalitat. Vivir en el Barri Gòtic significa disfrutar de una alta calidad de vida, con acceso a una rica oferta cultural, gastronomía de nivel mundial y una ubicación privilegiada cerca de las playas y el puerto.
La zona ofrece una gran variedad de actividades culturales, como museos, galerías de arte, teatros y festivales, además de una vida social vibrante. En el mercado inmobiliario, el Barri Gòtic destaca por su oferta de pisos históricos reformados, apartamentos de lujo y edificios con mucho carácter, lo que hace que la demanda sea muy alta debido a su ubicación única.




































