Duplex au design unique à côté du marché central
Si vous êtes à la recherche d'une maison différente, avec du caractère et du design au cur de Valence, Coldwell Banker Excellence Real Estate vous présente en exclusivité ce duplex, une propriété unique située à El Pilar, à seulement cinq minutes à pied du marché central et du centre historique.
Cette propriété combine des lignes contemporaines, de la fonctionnalité et un style urbain très soigné.
Caractéristiques principales :
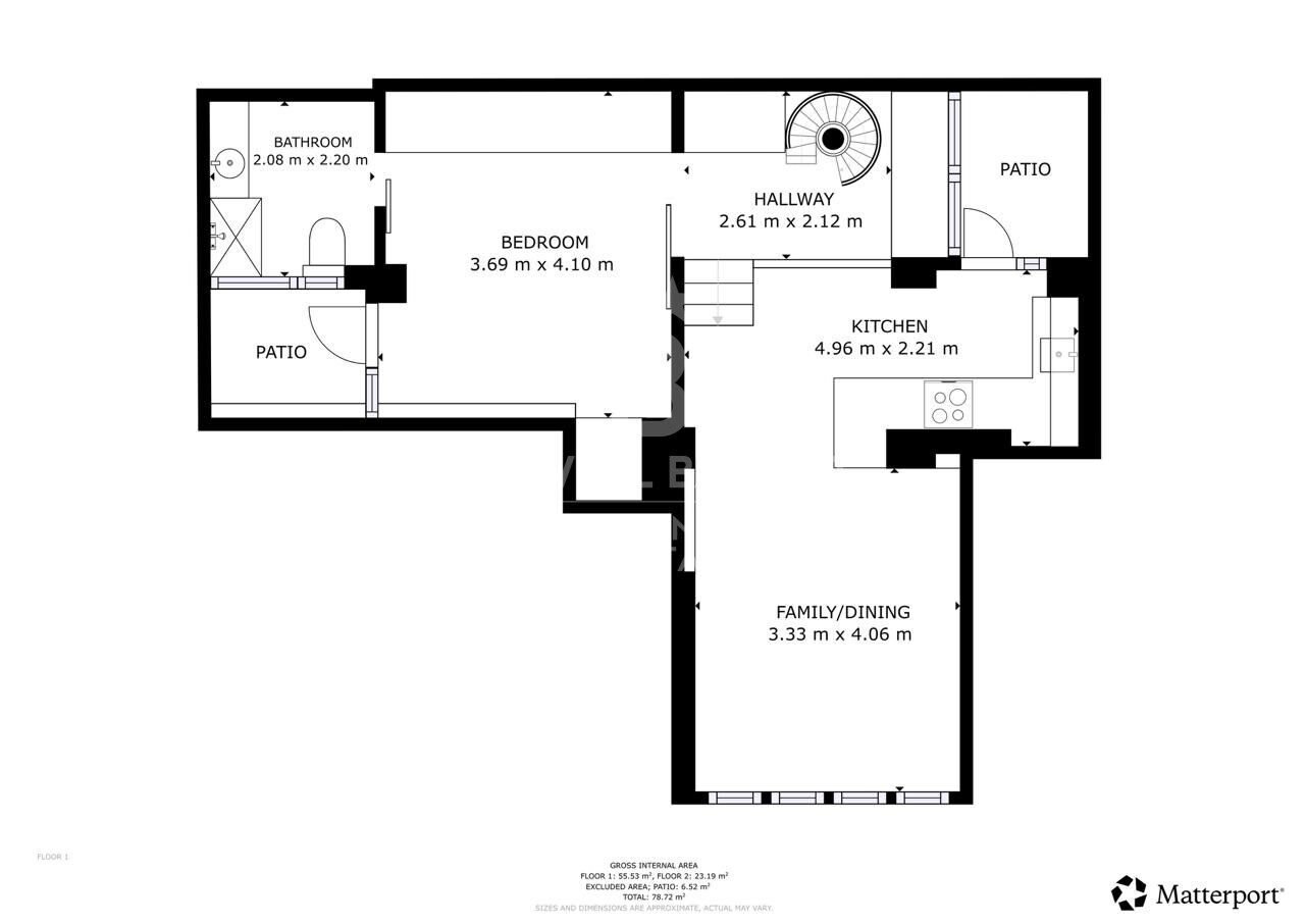
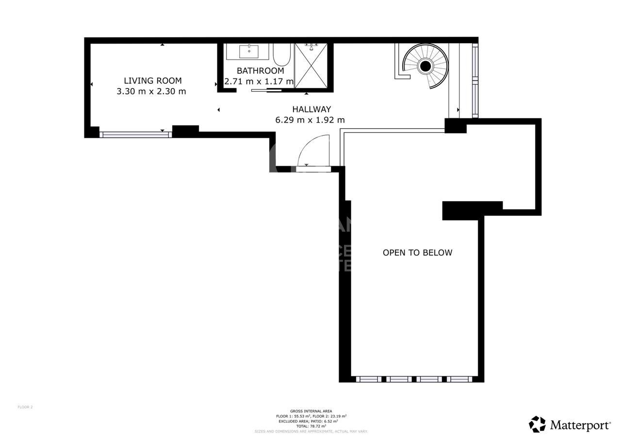
- Maison de type duplex à mezzanine basse, avec une distribution pratique et moderne.
- Surface construite de 95m2
- Étage supérieur : espace polyvalent idéal comme chambre ou bureau, salle de bain complète avec douche et armoires encastrées.
- Rez-de-chaussée : chambre principale avec salle de bain attenante, placards, spacieux salon-salle à manger avec une grande hauteur sous plafond qui procure une sensation exceptionnelle d'espace, et cuisine équipée d'appareils électroménagers
-Rénovation complète du design avec des matériaux de haute qualité et une esthétique élégante et intemporelle.
- Propriété vendue non meublée, avec la possibilité de négocier le mobilier actuel.
- Radiateurs électriques.
-Climatisation.
- Construit : 1910. Immeuble en bon état, dans une rue tranquille et avec un accès facile à tous les services.
Emplacement privilégié :
Situé dans le quartier d'El Pilar, l'un des quartiers les plus authentiques et les plus recherchés du centre de Valence, ce duplex vous permet de profiter de la vie urbaine avec tout à portée de main : marchés, restaurants, transports en commun, écoles et espaces culturels.
Une option idéale pour ceux qui recherchent une maison avec de la personnalité, du confort et un excellent emplacement au cur de la ville.
Appelez-nous et venez le visiter !
#CBEX25104
#ref:CBEX25104
Détails de la propriété
Caractéristiques de l'établissement
-
A
92-100 -
B
81-91 -
C
69-80 -
D
55-68 -
E
39-54 -
F
21-38 -
G
1-20
à propos de Valencia
Valencia, située sur la côte est de l'Espagne, est une ville qui combine parfaitement histoire, culture, modernité et un style de vie méditerranéen unique. Avec son climat tempéré, ses plages de sable doré et une riche offre culturelle, Valencia attire aussi bien les résidents locaux que les internationaux.
Depuis son impressionnant centre historique, avec ses ruelles étroites pavées et ses monuments historiques tels que la cathédrale de Valence et la Lonja de la Seda, jusqu'à la modernité de la Cité des Arts et des Sciences, Valencia offre une large gamme d'options pour tous les goûts.
Les quartiers de Valencia sont divers et chacun a son propre charme. Du quartier animé de Carmen, avec son ambiance bohème et sa vie nocturne animée, à l'exclusif quartier de Ciutat Vella, avec ses élégantes boutiques et restaurants branchés, il y en a pour tous les goûts.
L'offre immobilière de Valencia est également variée, avec des options allant d'appartements modernes au cœur de la ville à de charmantes maisons de ville dans les quartiers résidentiels pittoresques. Que vous recherchiez une propriété en bord de mer sur la plage de Malvarrosa ou un appartement avec vue sur la rivière Turia, Valencia a quelque chose pour tous les goûts et budgets.
De plus, Valencia offre une excellente qualité de vie, avec une large gamme de services, parcs, espaces verts et une gastronomie délicieuse comprenant des plats traditionnels comme la paella et une incroyable variété de tapas.
Avec une infrastructure de transport bien développée comprenant métro, bus et vélos en libre-service, se déplacer dans la ville est facile et pratique.
Que vous recherchiez votre première maison, une propriété de vacances ou un investissement immobilier, Valencia offre une opportunité unique de profiter de ce que la vie méditerranéenne a de mieux à offrir. Trouvez votre chez-vous à Valencia et commencez à profiter de tout ce que cette ville a à offrir !

















































