Appartement extérieur à rénover avec terrasse à Bernabéu, Madrid
taille
589 m²
parking
prix
5.000.000 €
Coldwell Banker Unique présente cette propriété exclusive située en plein cur de Chamartín, dans le quartier prisé de Bernabéu, sur l'emblématique Paseo de la Castellana, idéalement située entre la Plaza de Lima et Nuevos Ministerios.
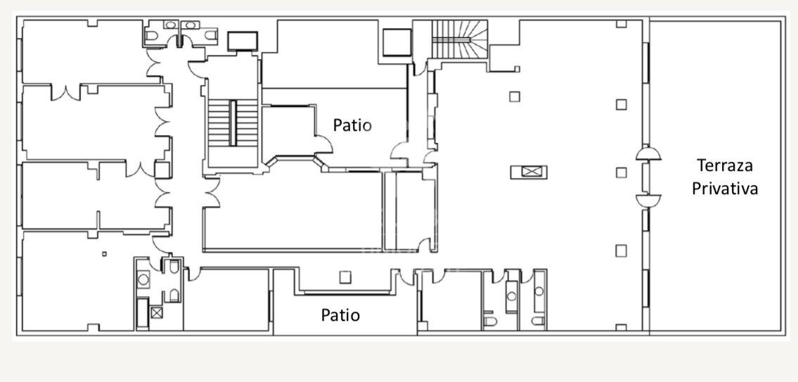
Le bien occupe l'intégralité du premier étage de l'immeuble et offre une superficie totale de 589 m², dont 450 m² de surface habitable, 125 m² de terrasse privative spectaculaire et 14 m² de patios couverts communs.
Une configuration exceptionnelle qui associe de vastes espaces intérieurs à un précieux espace extérieur sur l'une des artères les plus emblématiques de Madrid.
Une place de parking et un débarras dans le même immeuble sont inclus dans le prix de vente, apportant confort et fonctionnalité à une propriété de cette envergure.
Actuellement, le bien se présente comme une véritable page blanche, offrant d'infinies possibilités de redistribution et de conception. Son volume et sa structure permettent de développer un projet entièrement personnalisé, adapté aux besoins et au style de vie du futur propriétaire, qu'il s'agisse d'une grande résidence familiale, d'un logement de représentation ou d'une combinaison d'espaces privés et de réception haut de gamme.
Les images présentées sont des rendus d'un projet de rénovation illustrant le potentiel du bien, tandis que les plans montrent à la fois l'état actuel et une proposition de réaménagement, permettant de visualiser clairement l'ampleur et les opportunités qu'offre cette propriété unique.
#ref:CBUQ1307
Le bien occupe l'intégralité du premier étage de l'immeuble et offre une superficie totale de 589 m², dont 450 m² de surface habitable, 125 m² de terrasse privative spectaculaire et 14 m² de patios couverts communs.
Une configuration exceptionnelle qui associe de vastes espaces intérieurs à un précieux espace extérieur sur l'une des artères les plus emblématiques de Madrid.
Une place de parking et un débarras dans le même immeuble sont inclus dans le prix de vente, apportant confort et fonctionnalité à une propriété de cette envergure.
Actuellement, le bien se présente comme une véritable page blanche, offrant d'infinies possibilités de redistribution et de conception. Son volume et sa structure permettent de développer un projet entièrement personnalisé, adapté aux besoins et au style de vie du futur propriétaire, qu'il s'agisse d'une grande résidence familiale, d'un logement de représentation ou d'une combinaison d'espaces privés et de réception haut de gamme.
Les images présentées sont des rendus d'un projet de rénovation illustrant le potentiel du bien, tandis que les plans montrent à la fois l'état actuel et une proposition de réaménagement, permettant de visualiser clairement l'ampleur et les opportunités qu'offre cette propriété unique.
#ref:CBUQ1307
Détails de la propriété
région
Madrid provincia
zone
Madrid ciudad
localité
Madrid
district
Hispanoamérica - Bernabéu
Type de propriété
appartement
vente
5.000.000 €
Référence
CBUQ1307
Surface construite
589 m2
État/conservation
à rénover
Caractéristiques de l'établissement
cave
ascenseur
parking
Certificat énergétique
- En attente
à propos de Madrid
Madrid, la capitale vibrante de l'Espagne, est une ville qui pulse d'énergie et de richesse culturelle. De l'emblématique Puerta del Sol au majestueux Palais Royal, Madrid offre un mélange de charme historique et de vitalité moderne. Avec des musées de classe mondiale tels que le Prado et des quartiers animés comme Malasaña, la ville captive aussi bien les résidents que les visiteurs.














