Magnifique appartement à rénover dans le meilleur quartier de Castellana, Madrid
taille
241 m²
Chambres
4
Salles de bain
4
prix
2.960.000 €
Propriété exclusive à rénover au cur du quartier de Salamanca - 241 m² avec un potentiel de design exceptionnel
Coldwell Banker Unique vous présente cette magnifique résidence située entre les emblématiques rues Serrano et Hermanos Bécquer, dans l'un des quartiers les plus prisés de Salamanca, au sein du prestigieux secteur de Castellana. À proximité immédiate d'El Viso, entourée d'hôtels de luxe, de restaurants raffinés et de boutiques haut de gamme, cette propriété est une opportunité unique d'investissement ou de création de la maison de vos rêves.
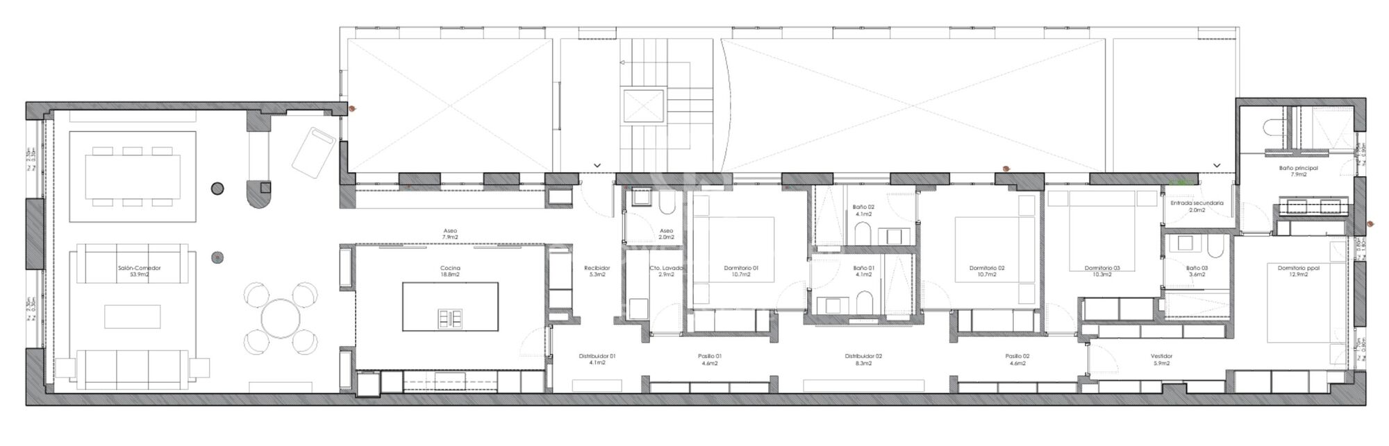
Située dans un élégant immeuble classique, cette propriété de 241 m² (selon le cadastre) offre de hauts plafonds de trois mètres et une orientation sud qui inonde les pièces de lumière naturelle toute la journée. L'absence de murs porteurs permet une totale liberté d'aménagement.
Le projet de rénovation, conçu par le cabinet SO Arquitectura, propose une distribution raffinée et fonctionnelle avec trois grandes chambres doubles, chacune avec salle de bain privative, ainsi qu'une chambre de service avec sa propre salle de bain. L'espace de vie se conçoit comme un lieu ouvert, lumineux et accueillant, parfait pour la vie quotidienne et les moments en famille. La cuisine, soigneusement pensée, peut être ouverte sur le salon ou rester indépendante. Le salon-salle à manger comprend un coin lecture cosy, idéal pour se détendre.
La distribution s'organise autour d'un impressionnant hall éclairé par une coupole, ajoutant du caractère et de l'élégance. La chambre principale dispose d'un grand dressing et d'une salle de bain avec douche et baignoire. Les chambres secondaires partagent une grande salle d'eau avec espaces séparés. Une buanderie indépendante complète l'ensemble.
Les matériaux et finitions ont été sélectionnés avec soin pour assurer une harmonie esthétique et fonctionnelle, fidèle à la philosophie de Sophiq, qui allie élégance, artisanat et luxe contemporain. Outre son emplacement idéal, à deux pas du musée Lázaro Galdiano et de la rue Serrano, ce bien offre un potentiel exceptionnel pour devenir une véritable pièce d'architecture sur mesure.
Un investissement sûr et une opportunité rare dans l'un des quartiers les plus convoités de Madrid. Contactez-nous pour plus d'informations et venez découvrir ce bien unique.
#ref:CBUQ629
Coldwell Banker Unique vous présente cette magnifique résidence située entre les emblématiques rues Serrano et Hermanos Bécquer, dans l'un des quartiers les plus prisés de Salamanca, au sein du prestigieux secteur de Castellana. À proximité immédiate d'El Viso, entourée d'hôtels de luxe, de restaurants raffinés et de boutiques haut de gamme, cette propriété est une opportunité unique d'investissement ou de création de la maison de vos rêves.
Située dans un élégant immeuble classique, cette propriété de 241 m² (selon le cadastre) offre de hauts plafonds de trois mètres et une orientation sud qui inonde les pièces de lumière naturelle toute la journée. L'absence de murs porteurs permet une totale liberté d'aménagement.
Le projet de rénovation, conçu par le cabinet SO Arquitectura, propose une distribution raffinée et fonctionnelle avec trois grandes chambres doubles, chacune avec salle de bain privative, ainsi qu'une chambre de service avec sa propre salle de bain. L'espace de vie se conçoit comme un lieu ouvert, lumineux et accueillant, parfait pour la vie quotidienne et les moments en famille. La cuisine, soigneusement pensée, peut être ouverte sur le salon ou rester indépendante. Le salon-salle à manger comprend un coin lecture cosy, idéal pour se détendre.
La distribution s'organise autour d'un impressionnant hall éclairé par une coupole, ajoutant du caractère et de l'élégance. La chambre principale dispose d'un grand dressing et d'une salle de bain avec douche et baignoire. Les chambres secondaires partagent une grande salle d'eau avec espaces séparés. Une buanderie indépendante complète l'ensemble.
Les matériaux et finitions ont été sélectionnés avec soin pour assurer une harmonie esthétique et fonctionnelle, fidèle à la philosophie de Sophiq, qui allie élégance, artisanat et luxe contemporain. Outre son emplacement idéal, à deux pas du musée Lázaro Galdiano et de la rue Serrano, ce bien offre un potentiel exceptionnel pour devenir une véritable pièce d'architecture sur mesure.
Un investissement sûr et une opportunité rare dans l'un des quartiers les plus convoités de Madrid. Contactez-nous pour plus d'informations et venez découvrir ce bien unique.
#ref:CBUQ629
Détails de la propriété
région
Madrid provincia
zone
Madrid ciudad
localité
Madrid
district
Castellana
Type de propriété
appartement
vente
2.960.000 €
Référence
CBUQ629
Chambres
4
Salles de bain
4
Surface construite
241 m2
État/conservation
à rénover
Caractéristiques de l'établissement
ascenseur
Certificat énergétique
- En attente
à propos de Castellana
Paseo de la Castellana : Un Quartier Emblématique de Madrid
Paseo de la Castellana est un quartier distingué de Madrid, caractérisé par son éclat architectural, sa situation centrale et son style de vie exclusif. Cette zone, nichée au cœur de la capitale espagnole, offre un mélange exceptionnel de commodités urbaines et de sophistication.
Style de Vie
Vivre dans Paseo de la Castellana est synonyme d'élégance et de commodité. Avec une architecture majestueuse et une vie urbaine vibrante, ce quartier offre une expérience de vie luxueuse et cosmopolite. Les résidents bénéficient d'une large gamme de services de haute qualité tels que des restaurants gastronomiques, des boutiques exclusives, des théâtres, des musées et une vie nocturne excitante.





































