Terrain avec permis de construire
Détails du projet :
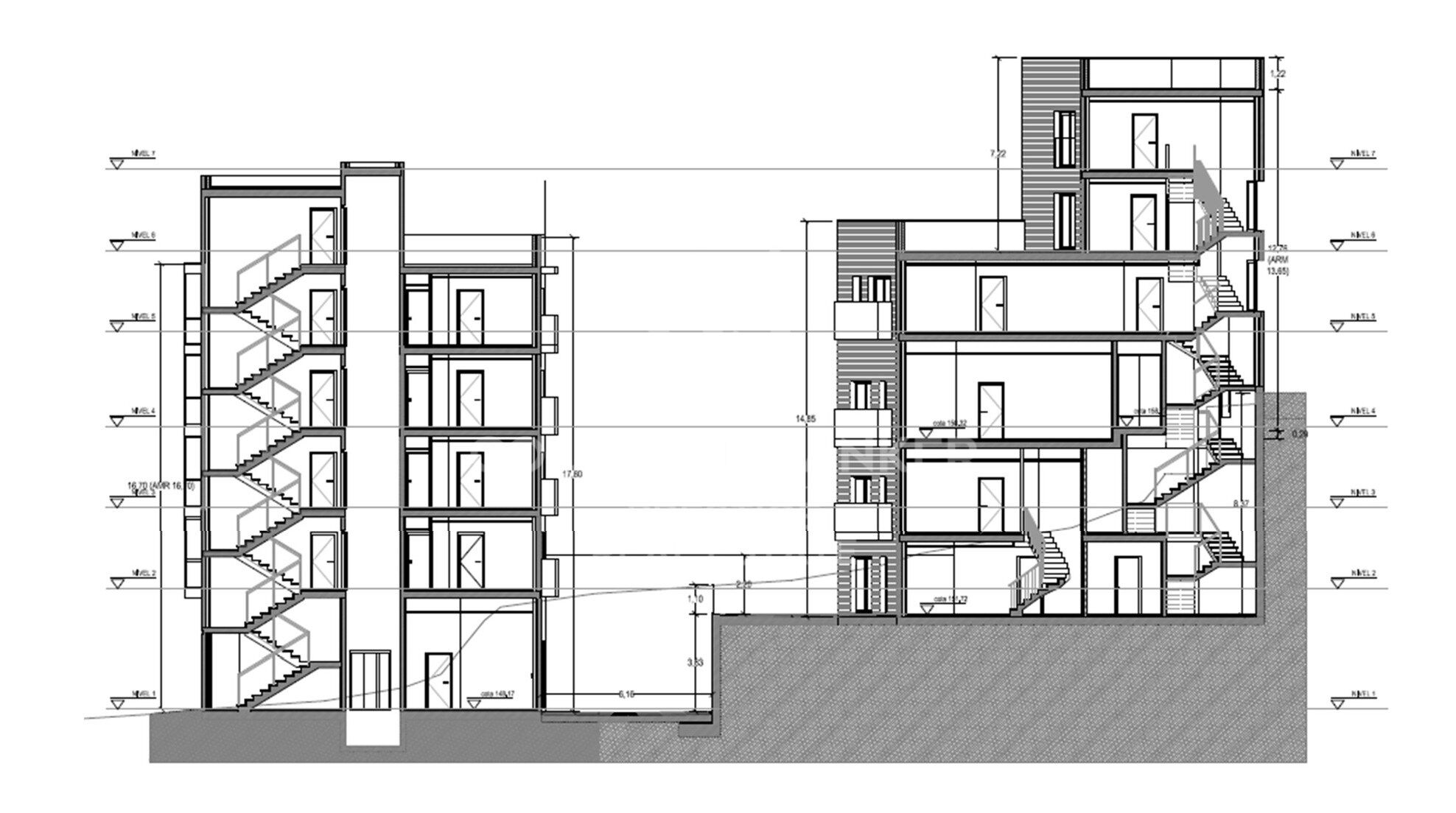
Bâtiment 1 :
Surface totale construite : 413 m²
Distribution:
Rez-de-chaussée (rez-de-chaussée) - Duplex avec jardin : 99 m² + jardin de 32,5 m²
Étages 1, 2 et 3 - Étages standard : 57 m² chacun
Bâtiment 2 :
Surface totale construite : 363 m²
Distribution:
Duplex avec jardin : 74 m² + 32 m² de jardin
Rez-de-chaussée supplémentaire : 48 m²
Triplex avec terrasses : 127 m² + terrasses de 31 m²
Faits saillants:
Maisons en duplex et triplex avec espaces extérieurs privatifs (jardins et terrasses)
Projet axé sur le confort, idéal pour les familles ou les maisons haut de gamme
Emplacement idéal pour le développement résidentiel
#ref:CBES2625
Détails de la propriété
-
A
92-100 -
B
81-91 -
C
69-80 -
D
55-68 -
E
39-54 -
F
21-38 -
G
1-20
à propos de La Teixonera
Le quartier de La Teixonera est une excellente option pour ceux qui souhaitent acheter un appartement à Barcelone dans un environnement calme et bien desservi. Situé dans le district de Horta-Guinardó, il offre une atmosphère résidentielle avec des prix plus accessibles que dans d'autres quartiers.
Investir dans l’immobilier à La Teixonera représente une opportunité intéressante. Vous y trouverez des appartements abordables à Barcelone ainsi que des logements rénovés avec vue, idéaux pour les familles ou pour un investissement locatif.
La proximité du Parc de Collserola permet de profiter de la nature, de sentiers de randonnée et d’un cadre de vie agréable. Le quartier est également bien desservi par les transports en commun.
Avec ses commerces, écoles et services, La Teixonera est idéale pour vivre à Barcelone avec qualité de vie et pour réaliser un investissement immobilier rentable à Barcelone.










