- Espagne
- Costa Blanca
- Alicante
- Xaló
Appartement confortable avec de grands espaces et un emplacement privilégié à Xaló
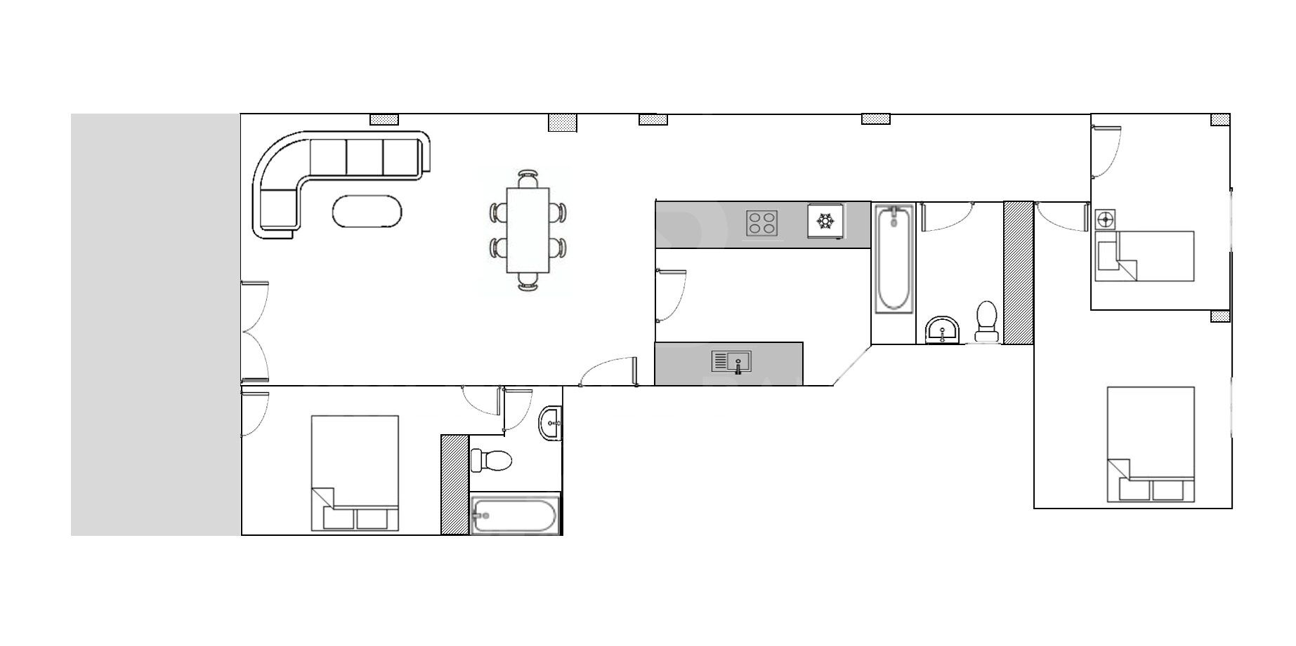
Le salon-salle à manger lumineux est le cur de la maison, un endroit parfait pour se reposer et partager des moments inoubliables en famille et entre amis. De là, il y a un accès à une terrasse de 12 m² orientée au sud, qui vous invite à profiter du soleil toute l'année, idéale pour les petits-déjeuners en plein air ou les dîners relaxants.
La cuisine, pratique et bien distribuée, s'intègre harmonieusement au reste de la maison. Les chambres offrent une atmosphère paisible et intimité, assurant une nuit de sommeil réparatrice. Les deux salles de bains, au design fonctionnel, complètent le confort de cette propriété.
De plus, l'appartement dispose d'un garage privé à l'intérieur de l'immeuble, qui offre sécurité et confort, ainsi que d'un débarras spacieux pour un stockage supplémentaire.
Le bâtiment dispose d'une grande terrasse ensoleillée sur le toit, un espace parfait pour contempler les environs et profiter de la paix qu'offre la région.
Cette maison allie espace, confort et un emplacement privilégié. À quelques pas de là, vous trouverez des boutiques locales, des cafés confortables, des restaurants et le marché hebdomadaire animé. Une occasion unique de découvrir l'essence authentique de la Costa Blanca dans un environnement plein de vie et de tradition.
#ref:CBS618N
Détails de la propriété
Caractéristiques de l'établissement
-
A
92-100 -
B
81-91 -
C
69-80 -
D
55-68 -
E
39-54 -
F
21-38 -
G
1-20
à propos de Xaló
Xaló est un joli village situé dans la Vallée de Pop, au cœur de la Marina Alta (Alicante), à proximité de la Costa Blanca. Entouré de montagnes et de vignes, Xaló est idéal pour ceux qui recherchent la tranquillité, l'authenticité et des opportunités d’investissement immobilier en milieu rural.
Sa localisation est stratégique : à seulement 20 minutes des plages de Calpe et Moraira, bien relié par la route aux communes voisines.
La qualité de vie à Xaló est remarquable : climat méditerranéen, air pur, ambiance détendue et familiale, et une communauté accueillante composée de locaux et de résidents étrangers.
Le marché immobilier à Xaló est très varié : maisons de village, villas avec vue, propriétés rurales et logements pour le tourisme. Une destination montante pour les acheteurs nationaux et internationaux.













































