Wonderful duplex premises for sale in Republica Argentina Avenue
taille
354 m²
Salles de bain
3
terrasse
prix
780.000 €
Cet impressionnant et spacieux local, situé dans le charmant quartier du Putxet, est implanté au niveau de la rue et réparti sur trois étages, offrant une grande polyvalence pour différents types de services et d'activités commerciales.
Le rez-de-chaussée dispose de deux accès indépendants, chacun avec son propre hall d'entrée et espace de réception. À ce niveau se trouvent également trois pièces actuellement utilisées comme loges, des toilettes, ainsi qu'une salle de réunion lumineuse avec cuisine, accompagnée d'une vaste salle polyvalente.
L'étage supérieur est actuellement aménagé en espace de bureaux ouvert avec une salle de réunion fermée, ainsi qu'une salle de bain avec douche.
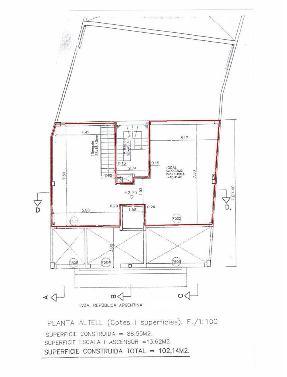
Au niveau inférieur (-1), on trouve une pièce aménagée en studio d'enregistrement, deux salles de travail avec accès à une terrasse intérieure, des toilettes et une petite zone de réception.
Le bien dispose de sols en parquet et est équipé de la climatisation afin de garantir un environnement confortable et agréable.
Le prix de vente n'inclut pas les impôts ni les frais liés à la transaction qui, conformément à la réglementation en vigueur, sont à la charge de l'acheteur : (i) pour les locaux commerciaux d'occasion, l'Impôt sur les Transmissions Patrimoniales (ITP) selon le taux applicable dans la Communauté autonome concernée ; (ii) pour les locaux commerciaux neufs, la TVA et le Droit de Timbre (AJD) conformément à la réglementation en vigueur ; (iii) les frais de notaire et d'enregistrement ; et (iv) les frais de gestion le cas échéant. Disponibilité à convenir. L'offre est susceptible de modification de prix ou de retrait du marché sans préavis. Les informations fournies, y compris les superficies, sont données à titre indicatif. Les honoraires d'intermédiation immobilière seront à la charge de la partie correspondante selon le mandat signé. Des informations détaillées et personnalisées seront fournies à toute personne intéressée avant le versement de toute somme à titre d'acompte, conformément à la réglementation nationale et régionale applicable.
#ref:CB3198LL
Le rez-de-chaussée dispose de deux accès indépendants, chacun avec son propre hall d'entrée et espace de réception. À ce niveau se trouvent également trois pièces actuellement utilisées comme loges, des toilettes, ainsi qu'une salle de réunion lumineuse avec cuisine, accompagnée d'une vaste salle polyvalente.
L'étage supérieur est actuellement aménagé en espace de bureaux ouvert avec une salle de réunion fermée, ainsi qu'une salle de bain avec douche.
Au niveau inférieur (-1), on trouve une pièce aménagée en studio d'enregistrement, deux salles de travail avec accès à une terrasse intérieure, des toilettes et une petite zone de réception.
Le bien dispose de sols en parquet et est équipé de la climatisation afin de garantir un environnement confortable et agréable.
Le prix de vente n'inclut pas les impôts ni les frais liés à la transaction qui, conformément à la réglementation en vigueur, sont à la charge de l'acheteur : (i) pour les locaux commerciaux d'occasion, l'Impôt sur les Transmissions Patrimoniales (ITP) selon le taux applicable dans la Communauté autonome concernée ; (ii) pour les locaux commerciaux neufs, la TVA et le Droit de Timbre (AJD) conformément à la réglementation en vigueur ; (iii) les frais de notaire et d'enregistrement ; et (iv) les frais de gestion le cas échéant. Disponibilité à convenir. L'offre est susceptible de modification de prix ou de retrait du marché sans préavis. Les informations fournies, y compris les superficies, sont données à titre indicatif. Les honoraires d'intermédiation immobilière seront à la charge de la partie correspondante selon le mandat signé. Des informations détaillées et personnalisées seront fournies à toute personne intéressée avant le versement de toute somme à titre d'acompte, conformément à la réglementation nationale et régionale applicable.
#ref:CB3198LL
Détails de la propriété
région
Barcelona provincia
zone
Barcelona ciudad
localité
Barcelona
district
Vila de Gràcia
Type de propriété
local commerciel
vente
780.000 €
Référence
CB3198LL
Salles de bain
3
Surface
314 m2
Surface construite
354 m2
Caractéristiques de l'établissement
téléphone
terrasse
Certificat énergétique
-
A
92-100 -
B
81-91 -
C
69-80 -
D
55-68 -
E
39-54 -
F
21-38 -
G
1-20
à propos de Vila de Gràcia
Vila de Gràcia, un coin bohème et charmant au nord du centre historique de Barcelone, se distingue par son ambiance créative et son esprit communautaire unique. Ce quartier, qui était autrefois un village indépendant, conserve son caractère distinctif et se présente comme un microcosme vivant.












































































