Flat 5 Pièces Acheter Barcelona
taille
122 m²
Chambres
4
Salles de bain
3
prix
750.000 €
Coldwell Banker Prestige présente ce bien exclusif de 122 m², situé dans l'un des quartiers les plus prisés de la Zona Alta de Barcelone, à la confluence des rues Ganduxer et Bori i Fontestà. Cet emplacement de choix se distingue par son cadre résidentiel calme et bien desservi, à proximité d'écoles internationales, de commerces de proximité, de services et d'espaces verts.
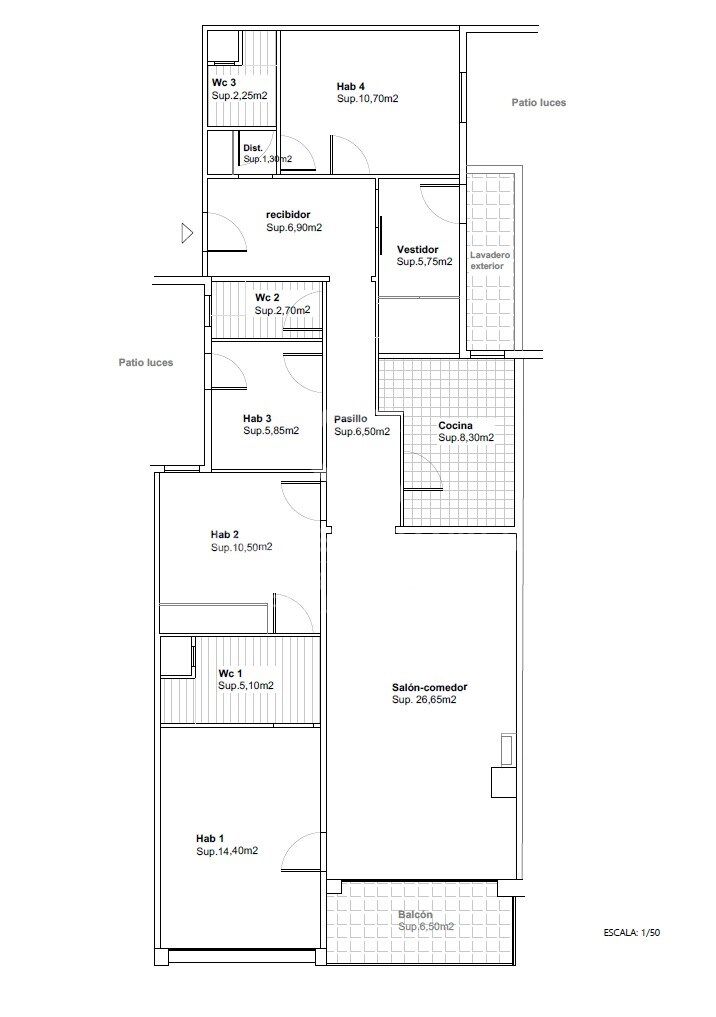
Situé au premier étage (deuxième réel), l'appartement se compose de cinq chambres et deux salles de bains, dont une chambre extérieure avec salle de bains privative, idéale comme suite parentale grâce à sa luminosité et son intimité. Le bien bénéficie de hauts plafonds et d'une distribution fonctionnelle, offrant de nombreuses possibilités de rénovation pour s'adapter à différents modes de vie.
Parquet, chauffage individuel et grandes fenêtres apportant une belle lumière naturelle complètent l'ensemble. L'immeuble dispose d'un service de conciergerie, garantissant un confort et une sécurité supplémentaires.
Une excellente opportunité, tant pour les familles en quête de confort et de localisation, que pour les investisseurs à la recherche d'un bien à fort potentiel dans un quartier consolidé de la ville.
Ne manquez pas cette opportunité unique.
Pour plus d'informations ou pour organiser une visite, contactez-nous.
#ref:VCBES2650
Situé au premier étage (deuxième réel), l'appartement se compose de cinq chambres et deux salles de bains, dont une chambre extérieure avec salle de bains privative, idéale comme suite parentale grâce à sa luminosité et son intimité. Le bien bénéficie de hauts plafonds et d'une distribution fonctionnelle, offrant de nombreuses possibilités de rénovation pour s'adapter à différents modes de vie.
Parquet, chauffage individuel et grandes fenêtres apportant une belle lumière naturelle complètent l'ensemble. L'immeuble dispose d'un service de conciergerie, garantissant un confort et une sécurité supplémentaires.
Une excellente opportunité, tant pour les familles en quête de confort et de localisation, que pour les investisseurs à la recherche d'un bien à fort potentiel dans un quartier consolidé de la ville.
Ne manquez pas cette opportunité unique.
Pour plus d'informations ou pour organiser une visite, contactez-nous.
#ref:VCBES2650
Détails de la propriété
région
Barcelona provincia
zone
Barcelona ciudad
localité
Barcelona
district
Sant Gervasi- Galvany
Type de propriété
appartement
vente
750.000 €
Référence
VCBES2650
Chambres
4
Salles de bain
3
Surface
110 m2
Surface construite
122 m2
État/conservation
à rénover
Caractéristiques de l'établissement
ascenseur
Certificat énergétique
- En attente
à propos de Sant Gervasi - Galvany
Sant Gervasi-Galvany, un trésor caché au cœur de Barcelone, se distingue par son riche patrimoine culturel et la vie vibrante qu'il offre à ses résidents. Ce quartier résidentiel a réussi une fusion harmonieuse entre l'élégance historique et la modernité, devenant un lieu prisé pour ceux qui recherchent une expérience de vie sophistiquée et équilibrée.
Avec ses larges avenues et ses rues bordées d'arbres, Sant Gervasi-Galvany offre un environnement serein et agréable. Des appartements modernes aux majestueuses maisons de maître, le marché immobilier propose des options diverses pour différents modes de vie et préférences.
































